Bildegalleri

Flott hjørnekontor med utsikt mot Tinghuset
Oslo sentrum ved Tinghuset - Lyse, innflyttingsklare kontorer fra 137 til 380 kvm.
Nøkkelinfo
- Areal
- 137 - 380 m²
- Etasje
- 2.
- Overtakelse
- Etter avtale
Type lokale
Fasiliteter
Om eiendommen
C. J. Hambros plass 5 ligger sentralt i Oslo sentrum vis a vis Tinghuset. Her er det umiddelbar nærhet til offentlig kommunikasjon som gjør det enkelt komme seg til kontoret for både ansatte og besøkende. Det er kun 5 minutters gange til Nationaltheatret stasjon med alt av offentlig kommunikasjon samt trikkeholdeplass rett utenfor kontordøren.
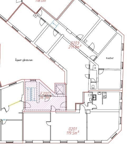
Arealnr 201 og 203 er på til sammen 331,4 kvm netto og 380,5 kvm brutto. Lokalene kan leies samlet eller hver for seg.
- Arealnr 0201 er på 119,5 netto kvm / 137,2 brutto kvm
- Arealnr 0203 er på 211,9 netto kvm / 243,3 brutto kvm
Kontorlokalet består av kontorer i ulike størrelser, møterom, kjøkken med spiseplass, tekjøkken og sosiale soner. Lokalet har store vinduer med utsikt ut mot C.J. Hambros plass og Tinghuset.
Eiendommen har presentabelt inngangsparti og heis. Det siste året har eiendommen blant annet fått en fasadeoppussing, nye vinduer og nytt ventilasjonsanlegg,
Ta kontakt for hyggelig prat og hvilke muligheter vi kan tilby.
Visning
Ta kontakt for å avtale visning.
THON HOLDING AS
Stig Christiansen
Nærområdet
Annonseinformasjon
| FINN-kode | 435553232 |
|---|---|
| Sist endret | 11. nov. 2025 15:13 |
| Referanse | Eline Høyte Tofte |
Annonsene kan være mangelfulle i forhold til lovpålagt opplysningsplikt. Før bindende avtale inngås oppfordres interessenter til å innhente komplett informasjon fra meglerforetaket, selger eller utleier.













