Bildegalleri

Flotte og fleksible næringslokaler til leie midt i Harstad sentrum!
Nøkkelinfo
- Areal
- 333 - 669 m²
- Etasje
- 1.
- Overtakelse
- Fortløpende
Type lokale
Om eiendommen
Tovet 2 har en svært sentral beliggenhet midt i Harstad sentrum. Her får du kort vei til butikker, kontorer, serveringssteder og offentlig kommunikasjon – med enkel adkomst både for kunder og ansatte.
Beskrivelse:
Lokalene går over to plan – gateplan og underetasje – og byr på gode, fleksible løsninger som kan tilpasses én eller flere leietakere. Med store vindusflater og god synlighet fra gateplan har lokalene et stort potensial og passer for flere forskjellige typer virksomheter.
I bygget finner du allerede solide leietakere, blant annet ingeniørbedriften Hinnstein AS, Oris Dental og Torvet fysikalske som holder til i moderne kontorlokaler i samme bygg.
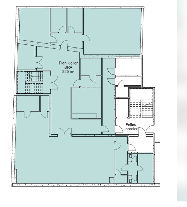
Areal:
Totalt areal: ca. 156 til 970 m² BTA (kan tilpasses etter behov)
Arealet er hentet fra plantegninger og fordeler seg slik:
Torvet 2:
Plan 01: 333 kvm BTA
Kjeller: 351kvm BTA
Det er i tillegg noe fellesareal, se plantegninger for ytterligere informasjon.
Fasiliteter:
Gateplan med god eksponering
Fleksibel planløsning
Gode parkeringsmuligheter i nærheten. Nytt parkeringshus i Hvedingkvartalet 50 meter fra lokalene.
Kort avstand til sentrumstilbud og offentlig transport
Standard:
Lokalene fremstår som lyse og trivelige med gode tilpasningsmuligheter etter leietakers behov.
Overtakelse:
Etter avtale.
Kontakt:
For mer informasjon eller for å avtale visning, ta kontakt for en uforpliktende prat om mulighetene i Torvet 2.
Matrikkelinformasjon
EIE eiendomsmegling Harstad
Nærområdet
Annonsene kan være mangelfulle i forhold til lovpålagt opplysningsplikt. Før bindende avtale inngås oppfordres interessenter til å innhente komplett informasjon fra meglerforetaket, selger eller utleier.




















