Bildegalleri

Hovedinngang (Bygg i7)
Ullandhaug/Innovasjonsparken - Unikt kontorlokale i toppetasje med utsikt mot Hafrsfjord
Nøkkelinfo
- Areal
- 551 - 986 m²
- Etasje
- 4.
- Kontorplasser
- 50
- Overtakelse
- Etter avtale
Type lokale
Fasiliteter
Om eiendommen
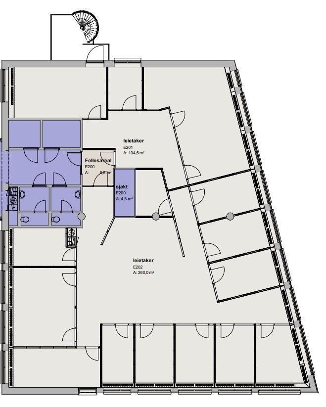
Lokalene i 2. etasje er 551 m2 BTA og lokalene i 4. etasje er 986 m2 BTA. Lokalene i 4. etasje kan deles i to.
Lokalene er fleksible og kan tilpasses den enkeltes leietaker ønsker og behov.
Kort vei til felles fasiliteter som resepsjon, kaffebar, møteromsavdeling, personalrestauranter, trimrom m.m.
Parkering i lukket anlegg i underetasje, samt utendørsparkering for ansatte og gjester.
En del av noe større
Mangfoldet gir en ekstra dimensjon til livet i Innovasjonspark Stavanger. Her arbeider alle typer virksomheter side om side, både bedrifter, offentlige aktører og forsknings- og undervisningsmiljø. Man møter både likesinnede og potensielle samarbeidspartnere – det blir det god energi av. Å være lokalisert i innovasjonsparken gir merverdi i form av nettverk, tilgang på fagmiljøer og verdiøkende aktiviteter.
Beliggenhet
Regionens beste beliggenhet
Beliggenheten er ideell; gunstig plassert på Ullandhaug – midt mellom bysentrum, friområder, næringsområder og Universitetet i Stavanger. Her kan du være med å sikre din bedrift sin naturlige plass i et kunnskapsintensivt og spennende miljø. Det er enkelt å komme til og fra både med bil og kollektivt. Det er god parkeringsdekning på området.
Adkomst
Matrikkelinformasjon
Visning
Ta kontakt for å avtale visning.Nyttige lenker

Innovasjonspark Stavanger
Nærområdet
Annonsene kan være mangelfulle i forhold til lovpålagt opplysningsplikt. Før bindende avtale inngås oppfordres interessenter til å innhente komplett informasjon fra meglerforetaket, selger eller utleier.















