Bildegalleri

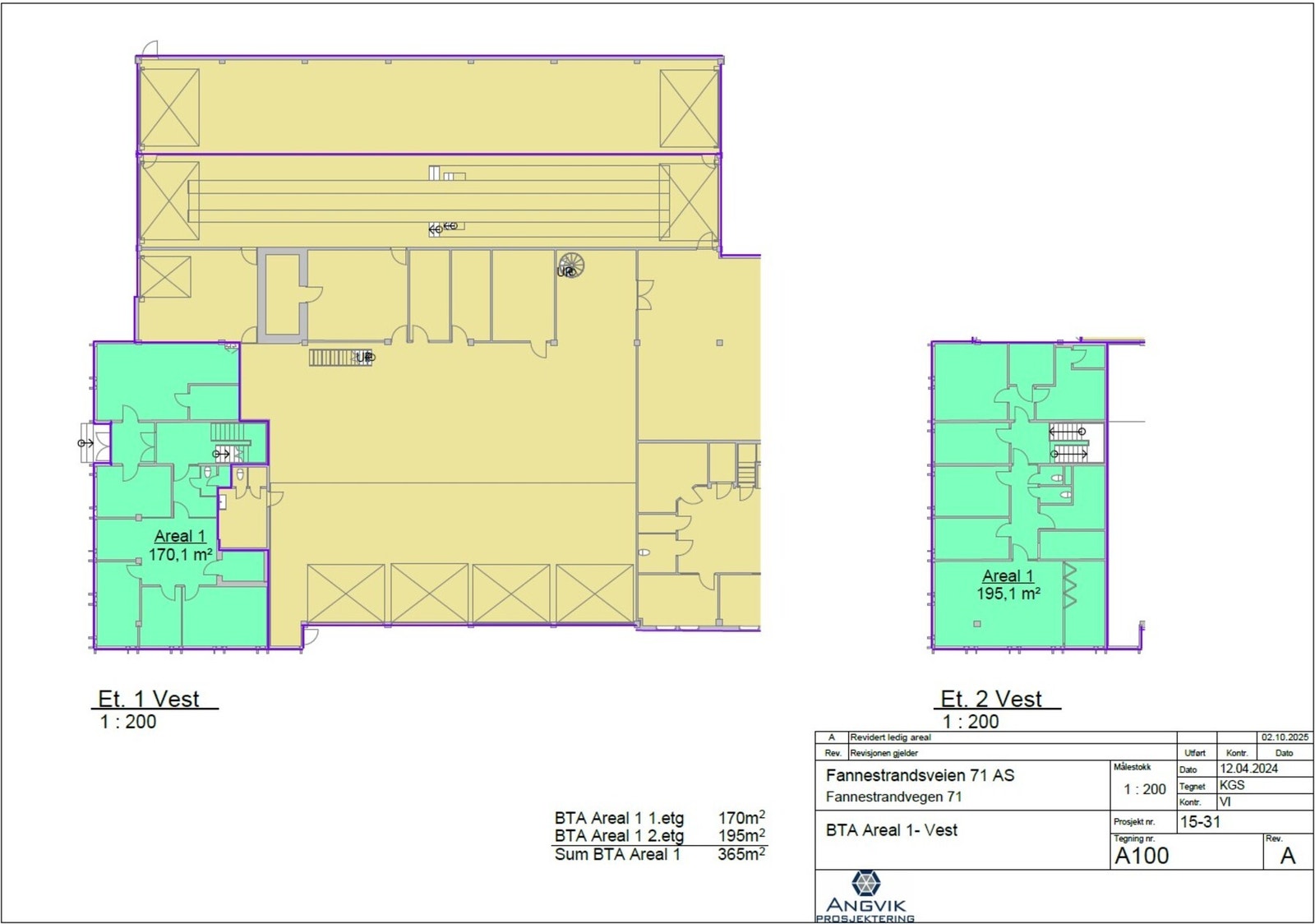
Kontorlokaler i Fannestrandvegen 71 - totalt 365 m² ledig
Nøkkelinfo
- Areal
- 365 m²
- Tomt
- Eiet
Type lokale
Kontor
Innhold
I 1. etasje er det ledig 170,1 m² BTA med kontor og noe lager, samt kontor og fellesarealer i 2. etasje som er på 195,1 m² BTA.
Lokalene kan tilpasses og deles opp i fleksible enheter etter leietakers behov, noe som gir stor grad av skreddersøm. Lokalene kan enkelt deles inn i flere mindre celle kontor eller brukes som de er utformet i dag.
Beskaffenhet
Stor tomt med gode eksponerings muligheter og godt med parkeringsplasser.
Beliggenhet
Fannestrandvegen 71 er et kombinasjons bygg med gode eksponerings muligheter mot innfartsvegen E39 til og fra Molde.
Matrikkelinformasjon
Kommunenr: 1506
Gårdsnr: 26
Bruksnr: 260
Kommunenr: 1506
Gårdsnr: 26
Bruksnr: 12
Kommunenr: 1506
Gårdsnr: 26
Bruksnr: 467
NB: Knappen for å vise hele beskrivelsen har kun en visuell effekt.
NB: Knappen for å vise hele beskrivelsen har kun en visuell effekt.
Nyttige lenker
Norion Næringsmegling
Norion
Nærområdet
Annonseinformasjon
| FINN-kode | 434745271 |
|---|---|
| Sist endret | 30. okt. 2025 12:32 |
| Referanse | 10250222 |
Annonsene kan være mangelfulle i forhold til lovpålagt opplysningsplikt. Før bindende avtale inngås oppfordres interessenter til å innhente komplett informasjon fra meglerforetaket, selger eller utleier.


































