Bildegalleri

Oslo Sentrum - Rimelige kontorlokaler med svært sentral beliggenhet ved regjeringskvartalet klart for innflytting
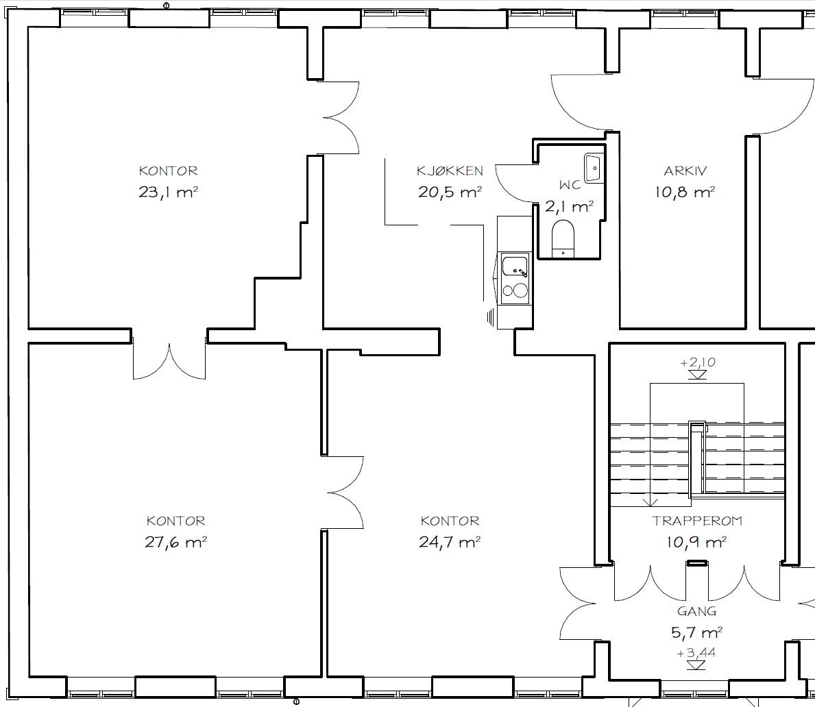
Nøkkelinfo
- Areal
- 130 m²
- Etasje
- 2.
- Byggeår
- 1840
Type lokale
Kontor
Om eiendommen
Lyst og romslig kontorlokale i 4.etg sentralt i Oslo. Lokalene har ok standard og er klare for innflytting.
Bygget har ikke heis. Dette er kontorer for deg som ønsker rimelige kontorlokaler i nærhet av offentlig kommunikasjon og regjeringskvartalet.
Garasje/P-plass kan leies i parkeringskjeller i Akersgata 73E.
Ta kontakt ved interesse.
Bygget har ikke heis. Dette er kontorer for deg som ønsker rimelige kontorlokaler i nærhet av offentlig kommunikasjon og regjeringskvartalet.
Garasje/P-plass kan leies i parkeringskjeller i Akersgata 73E.
Ta kontakt ved interesse.
Matrikkelinformasjon
Kommunenr: 301
Gårdsnr: 208
Bruksnr: 21
NB: Knappen for å vise hele beskrivelsen har kun en visuell effekt.
NB: Knappen for å vise hele beskrivelsen har kun en visuell effekt.
Visning
Ta kontakt for å avtale visning.Merkantilbygg AS
Nærområdet
Annonseinformasjon
| FINN-kode | 434618618 |
|---|---|
| Sist endret | 29. okt. 2025 15:14 |
| Referanse | Akersgata 73B |
Annonsene kan være mangelfulle i forhold til lovpålagt opplysningsplikt. Før bindende avtale inngås oppfordres interessenter til å innhente komplett informasjon fra meglerforetaket, selger eller utleier.















