Bildegalleri

Kvalvikodden - Lager, kontor, spiserom, garderobe og stor tomt til leie
Nøkkelinfo
- Areal
- 330 - 511 m²
- Bruttoareal
- 330 m²
- Tomt
- Eiet
Type lokale
Adresse
Kvalvikodden
8012 Bodø
Matrikkel
Gnr. 32 bnr. 28 i Bodø kommune
Fasiliteter
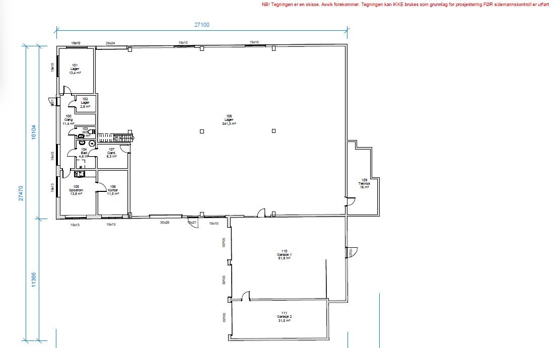
På Kvalvikodden finner du en stor tomt med tilhørende lokaler som blant annet består av lager med mesanin. I tillegg består eiendommen av kontor, spiserom, garderobe, gang, et mindre lager samt et romsligere lager.
Innhold
Bygget består av følgende:
Lager med messanin.
Muligheter for kontor, spiserom, garderobe, bad/wc.
Oppvarming
Elektrisk oppvarming. Fordeles med brøk i forhold til leid areal
Parkering / Garasje
Parkering på egen tomt.
Ledig
Ledig etter avtale.
Leieperiode
Utleier er åpen for forslag.
Partenes oppsigelsesadgang
Avhenger av leieperiode.
Diverse
Kontakt megler for ytterligere informasjon/ visning.
Lov om hvitvasking
I henhold til lov om hvitvasking og terrorfinansiering har megler plikt til å gjennomføre kontrolltiltak ovenfor kunder. Dette innebærer å bekrefte kunders identitet på bakgrunn av fremvist gyldig legitimasjon. Videre innebærer det å få bekreftet identiteten til eventuelle reelle rettighetshavere, og å innhente opplysninger om kundeforholdets formål.
Kjøpers innbetaling skal foretas fra norsk bank/finansinstitusjon.
Selgers oppgjør vil skje til konto i norsk bank/finansinstitusjon.
Dersom megler får mistanke om brudd på hvitvaskingsreglementet i forbindelse med en eiendomshandel, og han ikke klarer å få avkreftet denne mistanke, har han plikt til å rapportere dette til Økokrim. Melding sendes Økokrim uten at partene varsles. Megler kan i enkelte tilfeller også ha plikt til å stanse gjennomføring av handelen.
Matrikkelinformasjon
Visning
Ta kontakt for å avtale visning.Nyttige lenker
NordMegler AS
Nærområdet
Annonsene kan være mangelfulle i forhold til lovpålagt opplysningsplikt. Før bindende avtale inngås oppfordres interessenter til å innhente komplett informasjon fra meglerforetaket, selger eller utleier.





