Bildegalleri

Sentrale kontorlokaler - fra 5000,- eks mva pr mnd!
Nøkkelinfo
- Areal
- 25 - 150 m²
Type lokale
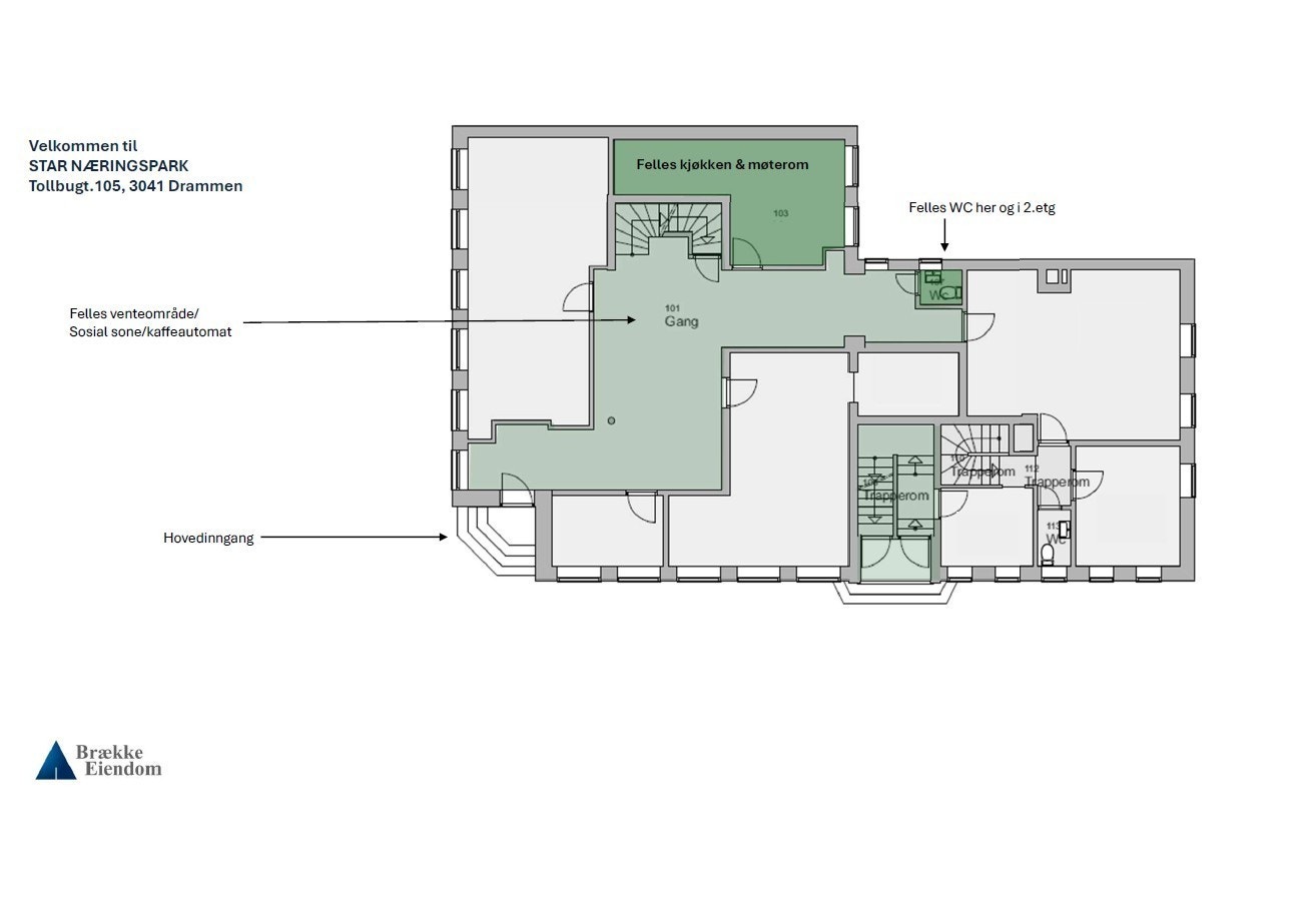
Om eiendommen
Vi tilbyr trivelige og fleksible kontorlokaler i et hyggelig kontorfellesskap –
midt på Strømsø i Drammen.
Her kan du leie alt fra et lite kontor til større arealer,
med leiepris mellom 5 000 og 25 000 kroner per måned, avhengig av størrelse og behov.
Alt er inkludert – felleskostnader, strøm og oppvarming –
for en enkel og forutsigbar hverdag for deg som leietaker!
Beliggenhet
Eiendommen ligger svært sentralt på Strømsø, med enkel adkomst både med bil og kollektivtransport.
- Kort vei til Drammen sentrum og av-/påkjøring til E18 (Oslo/Kristiansand)
- Buss-stopp rett utenfor døren
- Kun et steinkast fra Drammen togstasjon
Innhold
Bygget ligger i et etablert og rolig næringsområde med hyggelige naboer som Fresvik Produkt, Clean Service og Telekom.
Et ideelt sted for bedrifter som ønsker et sentralt, men rolig arbeidsmiljø.
Visning
Nyttige lenker
Brække Eiendom AS
Nærområdet
Annonseinformasjon
| FINN-kode | 434237174 |
|---|---|
| Sist endret | 03. nov. 2025 11:31 |
| Referanse | Ledig T105 |
Annonsene kan være mangelfulle i forhold til lovpålagt opplysningsplikt. Før bindende avtale inngås oppfordres interessenter til å innhente komplett informasjon fra meglerforetaket, selger eller utleier.







