Bildegalleri

De ledige lokalene er plassert i byggets 2. etg med utsikt ut mot det hyggelige Gullhaug Torg.
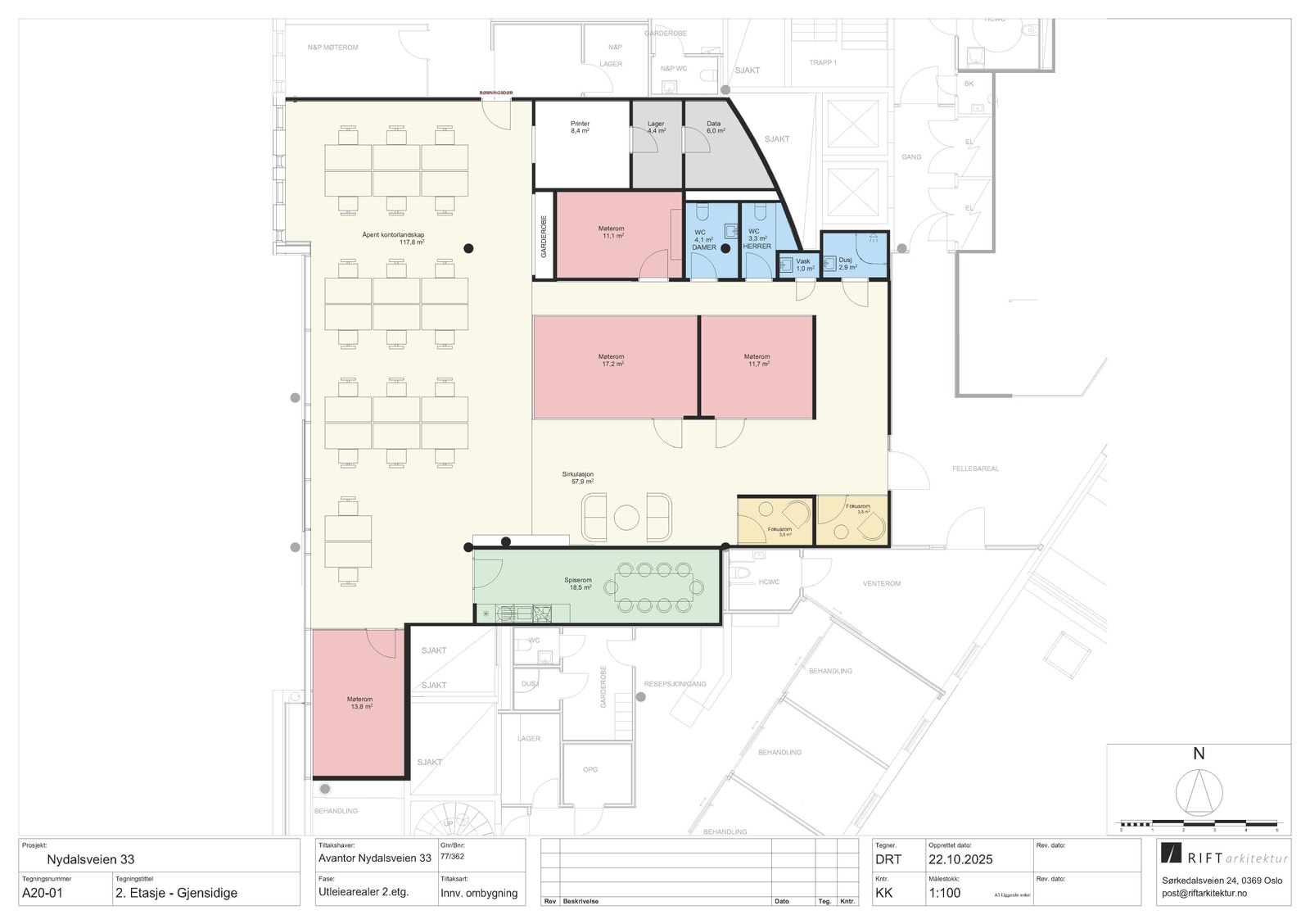
Kontorlokaler i hjertet av Nydalen moderne, sentralt og lett tilgjengelig
Nøkkelinfo
- Areal
- 420 m²
- Etasje
- 2.
- Byggeår
- 2003
- Renovert år
- 2016
- Overtakelse
- Etter avtale
Type lokale
Fasiliteter
Om eiendommen
Kontorlokaler i hjertet av Nydalen – moderne, sentralt og lett tilgjengelig
Velkommen til Torgbygget – et pulserende og profesjonelt kontorhus midt i Nydalen! Her får du mer enn bare kontorplasser – du får et attraktivt arbeidsmiljø med alt du trenger rett utenfor døren.
Torgbygget ligger rett ved Nydalen T-banestasjon og et av Oslos viktigste knutepunkter for kollektivtransport, med T-bane, buss og sykkelveier som gjør det enkelt å komme seg til og fra jobben – uansett hvor du bor i byen. For dem som kjører, tilbyr bygget også gode parkeringsmuligheter i kjeller og nærliggende parkeringshus.
Området byr på et rikt utvalg av restauranter, kafeer, treningssentre og butikker som skaper en levende hverdag både i og utenfor arbeidstiden. Her finner du alt fra hurtig lunsj og kaffemøter til middager og afterwork i hyggelige omgivelser ved Akerselva.
Disse lokalene vil pusses opp i samarbeid med ny kunde, og de store vindusflatene gir godt dagslys, og et unikt og luftig preg for arbeidstakere her.
Fasiliteter for en kontorbruker i Torgbygget:
I bygget har du felles disj- og garderobefasiliteter, samt rikelig med sykkelparkering i garasje. Du kan benytte kantinene i nabobyggene Vertikal Nydalen, eller i Nydalsveien 28. I disse byggene kan du også benytte konferanseutleie og møteromsutleie.
Med kontorer i dette bygget er du tett på alt du trenger i din kontorhverdag, servicebehov og kollektivtransport/parkering.
Velkommen.
Fordeler med Torgbygget:
- Meget sentral beliggenhet midt i Nydalen
- T-bane og kollektivknutepunkt rett utenfor døren
- Parkering tilgjengelig for leietakere og besøkende
- Kort vei til butikker, restauranter, treningssentre og servicetilbud
- Moderne lokaler som kan tilpasses etter behov
- Aktivt næringsmiljø i et av Oslos mest spennende byområder
Visning
Ta kontakt for å avtale visning.Nyttige lenker
Avantor AS
Nærområdet
Annonsene kan være mangelfulle i forhold til lovpålagt opplysningsplikt. Før bindende avtale inngås oppfordres interessenter til å innhente komplett informasjon fra meglerforetaket, selger eller utleier.











