Bildegalleri

308812_DJI_0887.jpg
Sentrumsnært kontor villa, ca 300 kvm og sidebygg, ca 270 kvm med flott utsikt over byen med bilvennlig tilkomst.
Nøkkelinfo
- Tomt
- Eiet
Type lokale
Fasiliteter
Beskrivelse
Buskerud næringsmegling AS har fått i oppdrag av utleie av eiendommen Bergstien 28 og 30.
Frittliggende eiendom i attraktive Bragernesåsen med flott utsikten over byen. Eldre veletablert område med blandet bebyggelse, mellom bolig og næring. Eiendommen ligger i ytterkant av gamle Drammen Sykehusanlegget. Eiendommen er godt tilgjengelig, og med enkel bil tilkomst.
Sentrumsnær beliggenhet med gangavstand til Torvet med et variert servicetilbud. God kollektiv forbindelse.
Tomt; 2.365 kvm.
Eiendommen har opparbeidet uteareal med parkeringsplasser, og dobbel garasje.
God parkeringsdekning med ca 12-14 parkeringsplasser.
Eiendommen består av to bygninger. Klassisk villa innredet til næringsrelatert virksomhet med kontorer og sosiale rom. Sidebygg på ett plan med direkte adkomst.
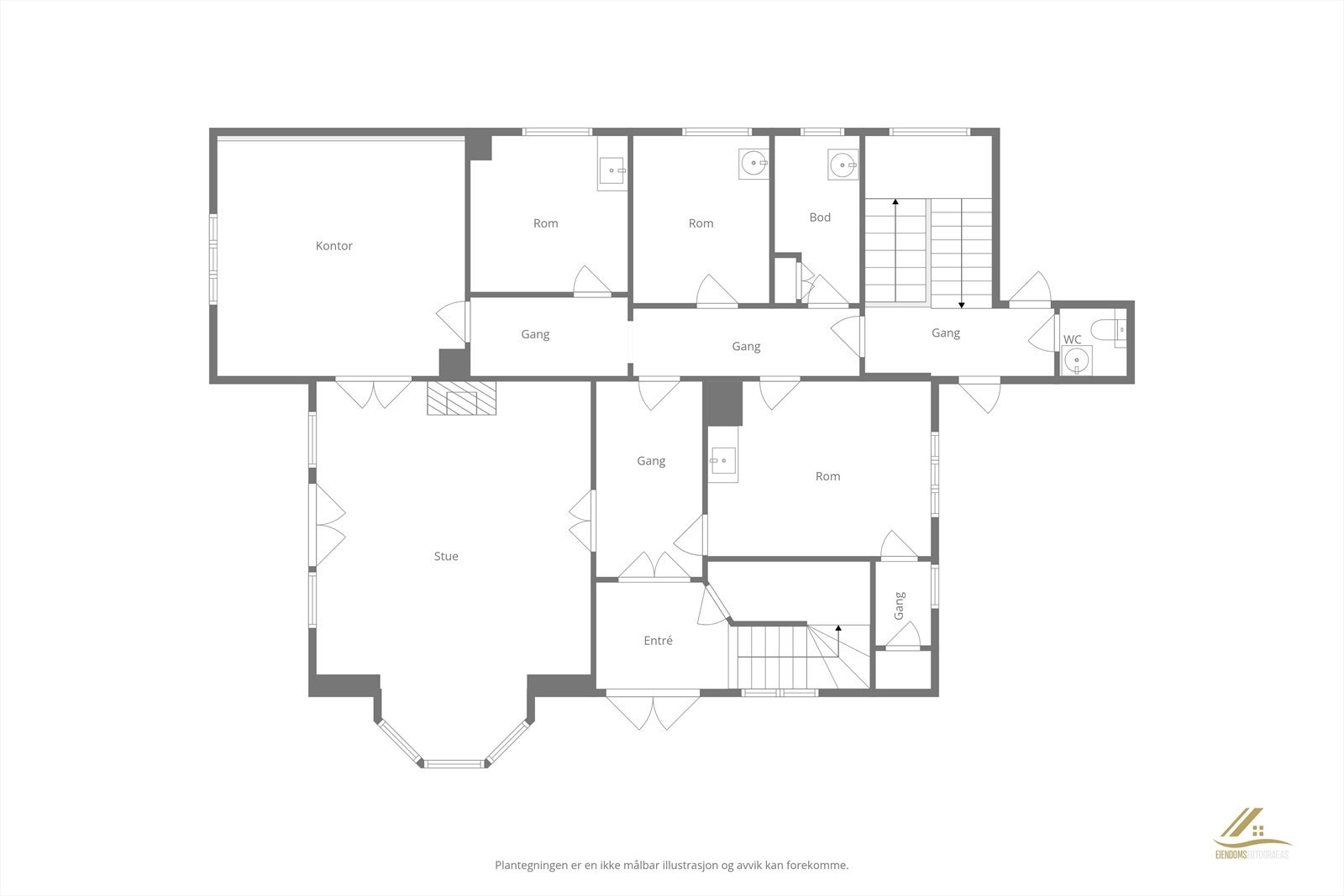
Bergstien 28.
Klassisk villa innredet til kontor og adm, fordelt på 2 innredet etasjer, og kjeller.
Bygget innehar verneklasse B.
Ca. 300 kvm.
Hovedetasjen er ca 175 kvm, og har en funksjonell planløsning. Inneholder, entre, 3-5 kontorer, møte/spiserom, garderobe- og wc sone. Sideutgang.
2. etasje er ca 130 kvm, og har 3 store kontorer, spise-møterom og wc sone.
Innredet kjeller.
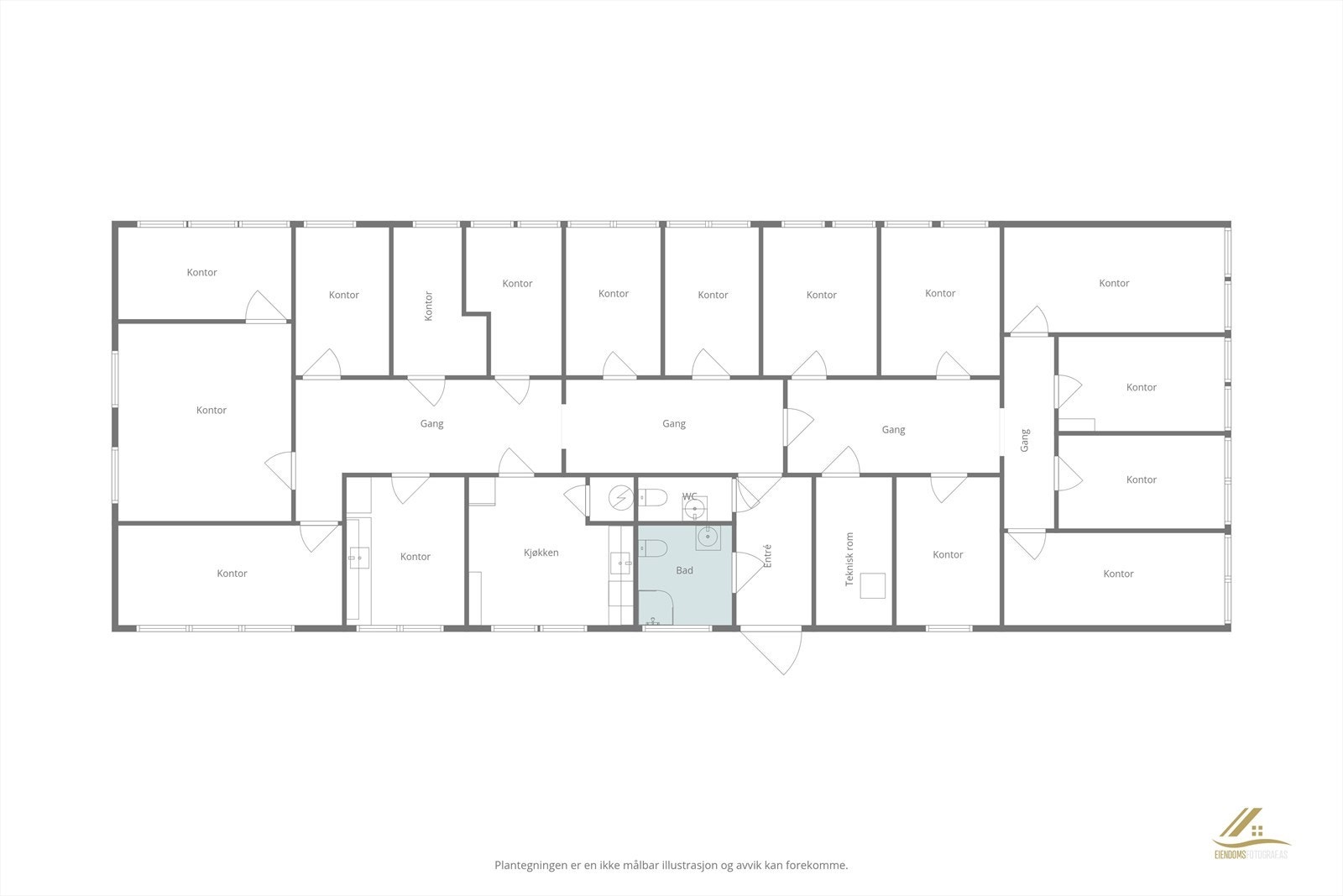
Bergstien 30.
Frittliggende og effektiv bygning på ett plan med direkte adkomst.
Ca. 270 kvm.
Innredet med cellekontorstruktur i dag, og sosiale rom. Inneholder 16 stk kontorer, møte- og spiserom, og wc sone.
Bygningen kan avdeles i ulike størrelse opp mot den enkeltes arealbehov.
Eiendommen bør appellere til deg som ønsker sentrumsnære lokaler med gangavstand inn til Torvet, samtidig som det er biltilgjengelig.
Velkommen til visning av Bergstien 28 og 30!
Matrikkelinformasjon
Visning
Ta kontakt for å avtale visning.Buskerud Næringsmegling AS
Nærområdet
Annonseinformasjon
| FINN-kode | 433408174 |
|---|---|
| Sist endret | 22. okt. 2025 12:30 |
| Referanse | BUNM1.2555 |
Annonsene kan være mangelfulle i forhold til lovpålagt opplysningsplikt. Før bindende avtale inngås oppfordres interessenter til å innhente komplett informasjon fra meglerforetaket, selger eller utleier.


























