Bildegalleri

Skjebergveien-169-11.jpg
Butikklokale og lagerlokaler. Stor parkeringsplass og enkel adkomst. Varemottak med ramper. Flott eksponering.
Nøkkelinfo
- Areal
- 50 - 1 260 m²
- Bruttoareal
- 700 m²
- Tomteareal
- 2 473 m² (eiet)
- Etasje
- 1.
- Byggeår
- 1953
- Energimerking
- B - Rød
Type lokale
Fasiliteter
Arealspesifikasjon
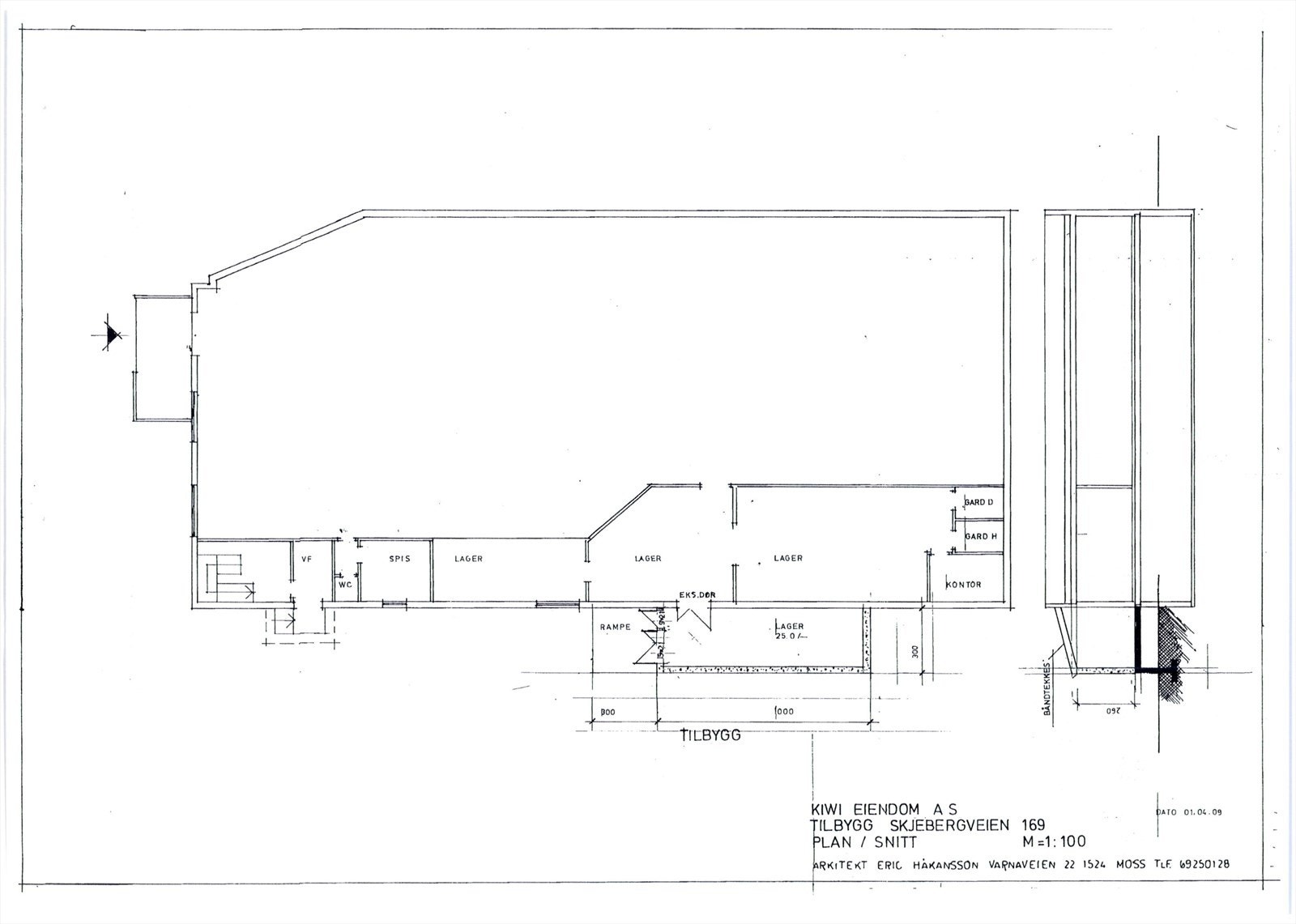
1. etg: 50 kvm Lagereksempel 1
1. etg: 100 kvm Butikkeksempel 1
1. etg: 100 kvm Lagereksempel 2
1. etg: 200 kvm Butikkeksempel 2
1. etg: 250 kvm Lagereksempel 3
1. etg: 560 kvm Storbutikk
| Kort om eiendommen
Næringslokale med stor parkeringsplass og enkel adkomst. Varemottak med ramper. Flott eksponering.
| Bebyggelse
Tomten er bebygget med en forretningsgård (Skjebergveien 169A) og en boligdel (Skjebergveien 169B).
| Eiendommens potensiale
Lokalene passer til spesialforretninger som bad/VVS, elektro, hus, hjem og hage, hobby fritid eller som base for håndverksbedrifter med behov for lager, showrom og kontor. I tillegg passende for de som har behov for mindre lagerlokaler. Kjøreskole og lager for netthandel kan også passe godt i lokalene.
| Innhold
I front butikklokale fra 200 til 700 kvm. I bakkant lager fra 50 til 500 kvm
| Beliggenhet
Eiendommen ligger på Sandbakken, like ved Sandbakken skole og boligområdene på Klavestadhaugen i Sarpsborg. Det har inntil februar 2025 vært Kiwi butikk i lokalene og at bygget/lokalene derfor er godt kjent.
12 minutter kjøretur fra Sarpsborg sentrum
God eksponering mot Fylkesvei 118, da det er 3 fasader som vender mot veien.
Ligger ved innkjøring til Sandbakken Barne- og ungdomsskole som er Sarpsborg's største, mye levering/henting på morgen og ettermiddag.
Umiddelbar nærhet til idrettsanlegg og flerbrukshall (Sandbakkenhallen ligger rett ved siden av skolen), trafikk særlig på ettermiddag/kveld.
"Bygger'n" byggevaremarked ligger på andre siden av veien.
Stor bussholdeplass få meter fra eiendommen.
Sykkelsti mellom Sarpsborg og Skjeberg går parallelt med Fv118 forbi eiendommen, her er det mange gående, jogging, sykling.
| Adkomst
Fra E6 ved Aarum > Kjør 3,0 km mot øst på Sarpsborgveien/Rv22 > I rundkjøringen: Ta 1. avkjøring ut på Skjebergveien/Rv22 > Kjør gjennom 1 rundkjøring og fortsett 700 m > Fortsett rett frem ut på Skjebergveien/Rv22 > Fortsett å følge Rv22 500 m > I rundkjøringen: Ta 1. avkjøring ut på Fv118 og følg den 600 m > Fortsett 2,3 km rett frem ut på Skjebergveien/Fv118 > Hold til høyre 180 n > Stedet du skal til, er på høyre hånd > Skjebergveien 169.
| Parkering
Det er rikelig med asfalterte og oppmerkede parkeringsplasser på egen grunn.
| Regulering
Reguleringsplan: Detaljregulering for Sandbakken skole- og idrettsområde
Godkjent 13.06.2013. Formål: Bolig/Forretning.
Kfr megler for kopi av reguleringsplan og bestemmelse.
I tillegg omfattes eiendommen av "Kommuneplanens arealdel 2024-2036, Sarpsborg. Vedtatt 10.10.2024
Reguleringsbestemmelsene § 5.7 Bolig/Forretning (B/F)
a) Området tillates benyttet til bolig og forretning med tilhørende kontor- og lagerarealer. Boliger
tillates ikke i første etasje.
b)Maks. BYA = 60 %. Gesimshøyde skal ikke overstige 7,5 m og mønehøyde skal ikke overstige 9,0 m over gjennomsnittlig ferdig planert terreng.
c)Samlet forretningsareal med tilhørende kontor, lager osv. skal ikke overskride 850 m2 BRA.
d)Det skal opparbeides min. 1 biloppstillingsplass pr. boenhet og 1 biloppstillingsplass pr.100 m2 BRA forretning.
| Standard
Eiendommen og lokalene anses å være i normalt god stand.
Av spesielle kvaliteter kan vi nevne
Dobbel automatiske skyvedører inn til butikklokalene
Direkte innkjøring til parkeringsplass fra Fv118 (Skjebergveien)
| Beskrivelse av tomt
Tomten består av tre bruksnummer, samlet tomteareal er 2.473,2 m2. Tomten er bebygget med en forretningsgård (Skjebergveien 169A) og en boligdel (Skjebergveien 169B). Tomten rundt bygningen er asfaltert og benyttes til parkering og kjøreveier.
| Oppvarming
Bygningen har elektrisk oppvarming.
| Budgivning
Budgiver oppfordres til å benytte vedlagte budskjema. Budgiver er innforstått med at Selger når som helst kan avslå eller akseptere et hvilket som helst bud uten nærmere begrunnelse. Likeledes er bud bindende når det er kommet til Selgers kunnskap. Handelen er juridisk bindende for begge parter dersom budet aksepteres innen akseptfristen. Meglers kontraktsmal vil ligge til grunn for avtalen.
| Offentlig kommunikasjon
200 m til bussholdeplass: Sandbakken skole
Transporttype: Buss
Ruter: 12: Sandbakken - Kalnes
131: Sarpsborg-Kalaveien-Kvastebyen
153: Sarpsborgskolene
156: Sandbakken skole
633: Moss-Sarpsborg-Halden
| Lovanvendelse
Ved utleie vil meglers leiekontrakt bli benyttet. Husleielovens vil bare i begrenset utstrekning kunne påberopes av Leietaker. Kontakt vårt kontor for nærmere opplysninger og gjennomlesing av avtalen.
Utleier forbeholder seg her bl.a. retten til å kunne registrere utleievirksomheten i merverdiregisteret.
Eml. §§ 4-4, 6-2, 6-7, 6-10, 7-1 og 8-8 fravikes ved dette oppdraget.
Lov om hvitvasking
Eiendomsmeglere er underlagt lov om hvitvasking. Dette innebærer at oppdragsansvarlig har plikt til å melde fra til Økokrim om eventuelle mistenkelige transaksjoner.
Matrikkelinformasjon
Visning
Ta kontakt for å avtale visning.Metra Næringsmegling AS
Nærområdet
Annonseinformasjon
| FINN-kode | 433201794 |
|---|---|
| Sist endret | 21. okt. 2025 08:17 |
| Referanse | MTRA1.2518 |
Annonsene kan være mangelfulle i forhold til lovpålagt opplysningsplikt. Før bindende avtale inngås oppfordres interessenter til å innhente komplett informasjon fra meglerforetaket, selger eller utleier.













