Bildegalleri

LEDIG LOKALE PERFEKT FOR VERKSTED ELLER BILPLEIE
Nøkkelinfo
- Areal
- 250 - 430 m²
- Etasje
- 1.
- Overtakelse
- 01.10.2025
Type lokale
Fasiliteter
Om eiendommen
Om eiendommen
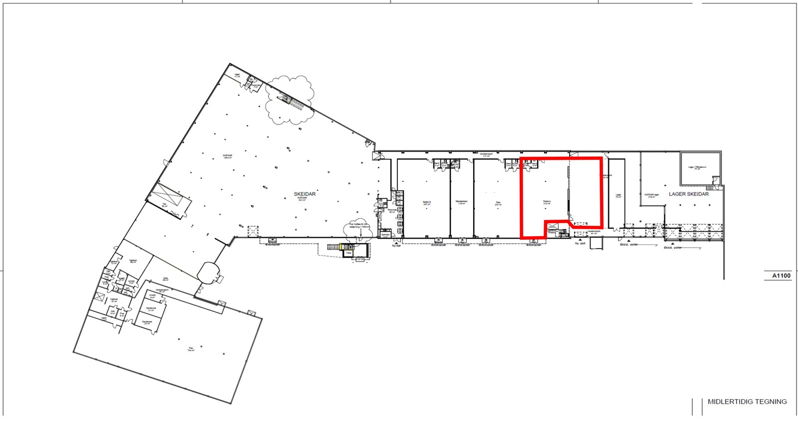
Ledige lokaler omgående I Amsrudvegen 2-4/Hunndalen. Lokalene har kjøreport, vaskehall, kontor og wc. Tiltalende beliggenhet på bakkeplan.
Handelsparken Amsrudvegen 2-4 er godt etablert og kjent i Gjøvik igjennom flere tiår og huser i dag leietakere som Skeidar, Right Price Tiles og Skyland Trampolinepark. Amsrudvegen 2-4 ligger sentralt i forhold til Gjøvik og riksvei 4.
Om lokalene:
- Totalt ca. 430 bta
- Kjøreport
- Vaskehall
- Kontordel
- WC
- Godt med parkeringsdekning.
- God beliggenhet med bilrelatert virksomheter i Hunndalen
Beliggenhet
Adkomst
Standard
Amsrudvegen 2 er i vekst. Eiendommen huser i dag Skeidar, Right Price Tiles, Skyland Trampolinepark og Mjøskjøkken.
Lokalene er perfekte for bilrelatert virksomhet som for eksempel verksted eller bilpleie. I front er det store vindusflater med direkte tilgang fra bakkeplan. Lokalene disponerer egne toaletter og garderobe. Eiendommen har rikelig med parkeringsplasser for besøkende til de ulike butikkene. Det er gode lagermuligheter på eiendommen.
Lokalene kan selvfølgelig tilpasses etter ønske fra leietaker.
Innhold
Visning
Ta kontakt for å avtale visning.
ENATA EIENDOM AS
Nærområdet
Annonsene kan være mangelfulle i forhold til lovpålagt opplysningsplikt. Før bindende avtale inngås oppfordres interessenter til å innhente komplett informasjon fra meglerforetaket, selger eller utleier.


