Bildegalleri

Forus - Kombinasjonsbygg med sentral beliggenhet
Nøkkelinfo
- Areal
- 500 - 1 600 m²
- Tomt
- Eiet
Type lokale
Kombinasjonslokaler
Fasiliteter
Bredbåndstilknytning
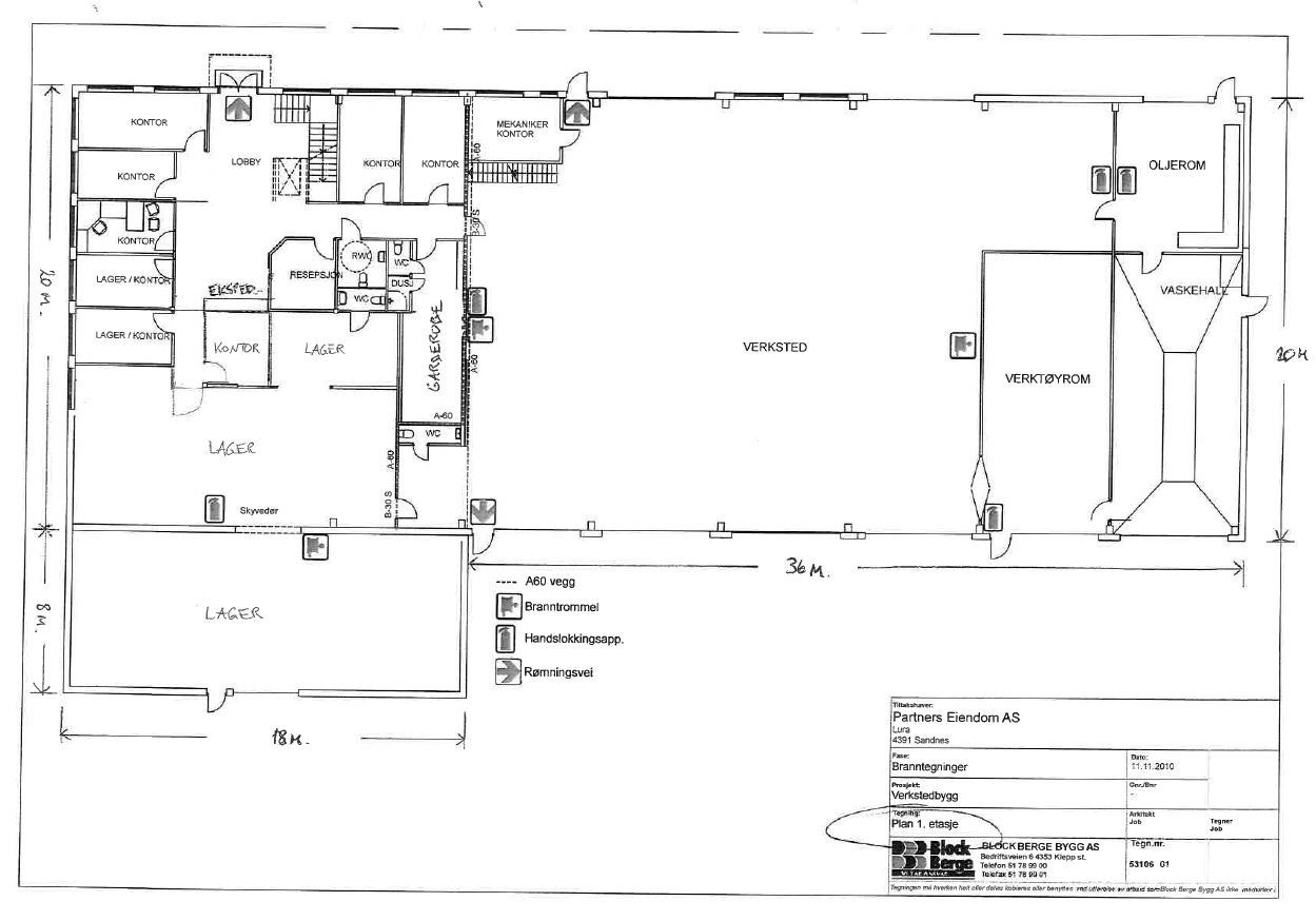
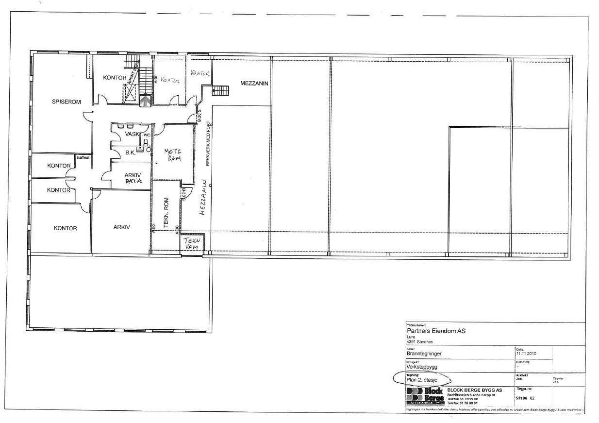
Arealspesifikasjon
1. etg: 1100 kvm Verksted/Lager/Kontor
2. etg: 500 kvm Kontor
Kort om eiendommen
Kombinasjonsbygg med sentral beliggenhet.
Bygget utgjør totalt ca. 1.600 kvm medregnet 15 kontorer, møterom, kantine, garderober, resepsjon mv.
Verskstedhaller med god takhøyde (Ca. 720 + 145 kvm), oljeutskiller, vaskehall, traverskrane, garderober.
Store porter med 5 meters bredde for gjennomkjøring på begge sider av bygget.
Stort utelagringsområde med svært gode muligheter for påbygg, evnt rubberhaller.
Matrikkelinformasjon
Kommunenr: 1108
Gårdsnr: 69
Bruksnr: 2553
NB: Knappen for å vise hele beskrivelsen har kun en visuell effekt.
NB: Knappen for å vise hele beskrivelsen har kun en visuell effekt.
Visning
Ta kontakt for å avtale visning.Newsec
THE FULL SERVICE PROPERTY HOUSE
Nærområdet
Annonseinformasjon
| FINN-kode | 433066172 |
|---|---|
| Sist endret | 20. okt. 2025 11:37 |
| Referanse | NWSC2.2410 |
Annonsene kan være mangelfulle i forhold til lovpålagt opplysningsplikt. Før bindende avtale inngås oppfordres interessenter til å innhente komplett informasjon fra meglerforetaket, selger eller utleier.










































