Bildegalleri

Fellesareal
Kvadraturen - Nyoppusset toppetasje - Kontorplasser til leie i kreativt miljø
Nøkkelinfo
- Areal
- 23 - 382 m²
- Etasje
- 6.
- Byggeår
- 1898
- Renovert år
- 2023
- Overtakelse
- 01.08.25
Type lokale
Fasiliteter
Om eiendommen
ASAS arkitektur flyttet inn i nyoppussede lokaler i april 2023.
Vi søker nye leietakere til vårt hyggelige kontor i kirkegata. Vi er åpne for en miks av fag og folk, både etablerte og nyetablerte! Vi ønsker å danne et sosialt og tverrfaglig kreativt miljø.
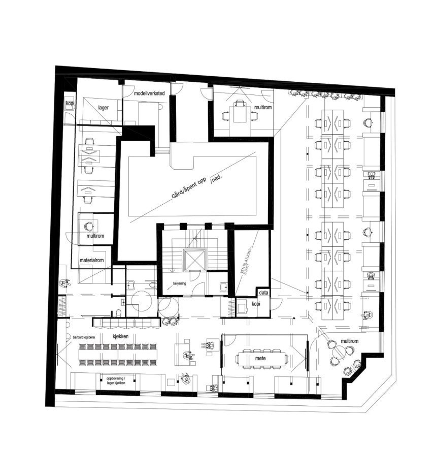
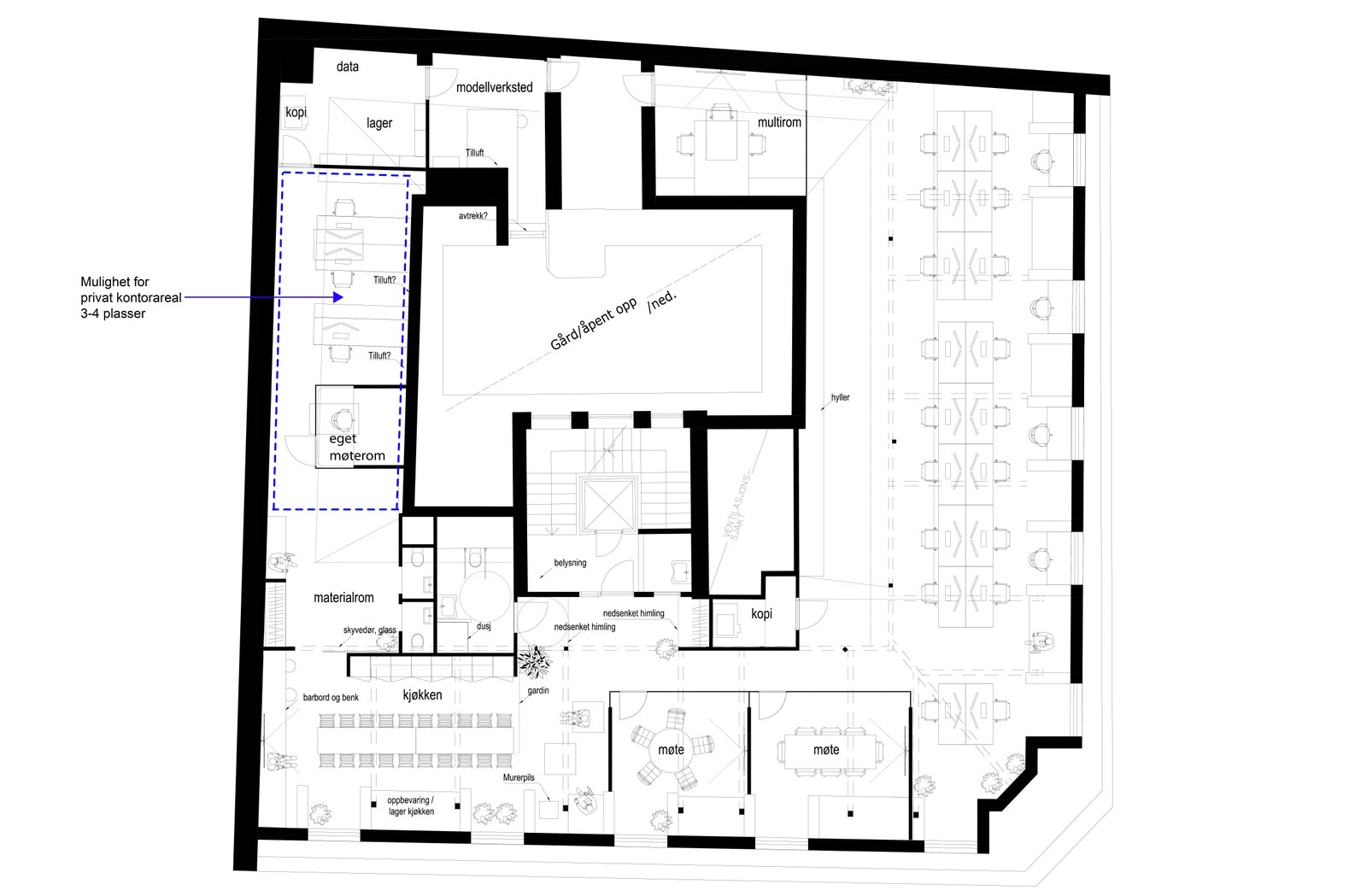
Vi har per i dag 6 ledige plasser. Disse kan leies enkeltvis eller samlet som et eget avgrenset område (se alternativ planløsning). Det er også mulig å disponere et eget møterom. Plassene inngår idag som del av en stor og lys tegnesal, men vi er fleksible dersom det er ønskelig med et mer privat område, og kan gjøre mindre tilpasninger etter behov. ASAS benytter selv 12 plasser i kontorlandskapet. Vi oppforder alle som er interesserte til å ta kontakt, så kan vi ta en samtale for å diskutere pris og vilkår for leie. Pris per plass fra 4.800,- per mnd.
I toppetasjen av det ærverdige 1898-bygget har vi god takhøyde, karakteristiske lysinnslipp og en stor plan med god variasjon av arbeidsplasser. Det er ellers en miks av møterom, multirom, material-bar med dagslyslampe og utstyr, konsentrasjonssoner, satellittplasser og modellrom som man vil få tilgang til. Bygget har en flott fasade og et svært representativt inngangsparti ved siden av en te-salongen A.C Perchs på gateplan.
Lokalene ligger i Kvadraturen og har adresse Kirkegata 5. Kontoret ligger i 6. etasje og i gangavstand fra Oslo S, Nationaltheatret og Nesoddbåtene. Bygget har gode, trygge sykkelparkeringsfasiliteter samt et karakteristisk trapperom med heis.
Utleien på etasjen er tilrettelagt med flotte fellesfasiliteter som kjøkken, møterom, spiserom, garderobe/wc, kopirom og internettilgang. Toalettfasilitetene har dusj. Med i leieprisen er tilgang til møblerte arbeidsplasser med stol og hev/senk pult. Det er også planlagt en oppgradering av bakgården med forbedret sykkelparkering og sykkelvask.
Kontorlokalet i 6 etg. har et gulvareal på 382m2. Samlet brutto gulvareal på kontorlokalene, inklusive gårdens fellesarealer er 464 kvm.
Dersom ditt kontor kunne passet inn sammen med oss, hører vi gjerne fra deg!
Vi inviterer gjerne til en uformell befaring.
Ledig fortløpende.
Beliggenhet
Adkomst
Sentrum/ Kvadraturen.
I nærhet til offentlig transport -Stortinget T-bane, buss og trikk i Tollbugata, kort gangavstand til Oslo S. Parkering i nærliggende offentlig p-hus.
Visning
Asas Arkitektur AS
Nærområdet
Annonsene kan være mangelfulle i forhold til lovpålagt opplysningsplikt. Før bindende avtale inngås oppfordres interessenter til å innhente komplett informasjon fra meglerforetaket, selger eller utleier.

































