Bildegalleri

Lager i kombinasjonsbygg til leie
NYDAL Lagerlokale til leie i kombinasjonsbygg, med mulighet for kontor
Nøkkelinfo
- Areal
- 100 - 200 m²
- Tomteareal
- 4 071 m²
- Byggeår
- 1982
- Renovert år
- 2017
- Energimerking
- C - Lysegrønn
- Overtakelse
- 01.11.2025
Type lokale
Fasiliteter
Om eiendommen
Bygningen har tre plan:
Kjelleretasjen benyttes til lager og noe produksjon. (ledig lager)
Hovedplan inneholder servicedel, møterom, kontorer og produksjonslokaler. (fullt utleid)
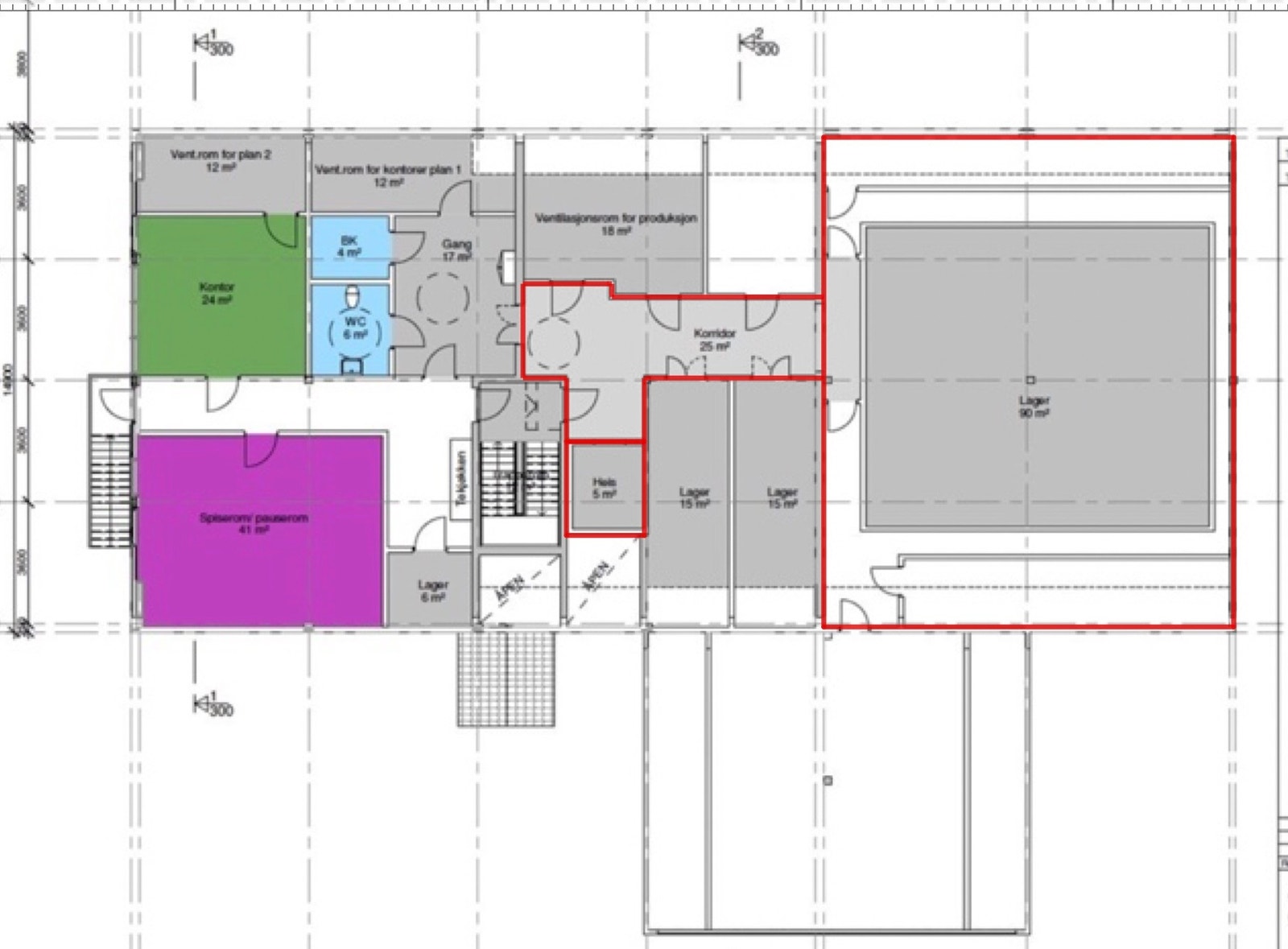
2. etasje er delvis innredet med kontorer, møterom og lager, samt enkelte boder og tekniske rom. (ledig lager/kontor)
Eiendommen ligger på en romslig tomt på over 4 dekar, som grenser direkte til E6 ved avkjøringen til Nydal. Området er preget av variert næringsvirksomhet og har god tilgjengelighet både for person- og varetransport.
LEDIGE AREALER TIL LEIE:
KJELLER:
Lager på ca. 100 m2:
Oppvarmet lagerlokale med muligheter for å sette inn kjøreport på ca. 3x3 meter, som gir enkel adkomst til asfatert uteområde.
Takhøyde på 3,30 - 3,50 meter.
Gulv, vegger, tak og søyler i betong, gulvet er belagt med epoxy.
HOVEDETASJE:
Fullt utleid
2. ETASJE:
Lager/produksjonslokalerpå ca. 90 m2.
Lageret har epoxygulv.
Videre er det opplegg for vann og sluk i gulv.
Kontorer
1-2 kontorplasser er ledig.
I tilknytning til kontorplasser er det minikjøkken og toalett.
Beliggenhet
Eiendommen ligger i Nydal næringsområde i Ringsaker kommune, ca. 10 minutter fra Hamar sentrum. Beliggenheten gir svært god profilering mot E6 med enkel adkomst til hovedveinettet. Området er etablert med flere næringsvirksomheter og har et attraktivt logistisk utgangspunkt for både lokal og regional virksomhet.
Adkomst
Standard
Matrikkelinformasjon
Visning
Ta kontakt for å avtale visning.Nærområdet
Annonsene kan være mangelfulle i forhold til lovpålagt opplysningsplikt. Før bindende avtale inngås oppfordres interessenter til å innhente komplett informasjon fra meglerforetaket, selger eller utleier.
















