Bildegalleri

Ledig areal midt i byen!
Nøkkelinfo
- Areal
- 250 - 1 400 m²
- Tomt
- Eiet
- Energimerking
- B
Type lokale
Ledig areal midt i byen!
I Olav Tryggvassons gate 15 startet R. Kjeldsberg AS sin virksomhet i 1856, og eiendommen er fortsatt i selskapets eie. Bygget har en like sentral beliggenhet i dag som for nærmere 170 år siden. Olav Tryggvassons gate 17 eies i fellesskap av R. Kjeldsberg AS og Kværnø Sko AS, og i første etasje driver Kværnø sko sin virksomhet.
Nå er det på tide å revitalisere andre etasje i eiendommene, og vi er på utkikk etter virksomheter som er opptatt av en sentral beliggenhet i Midtbyen og med et yrende byliv på gateplan.
Lokalene vil få oppgradert teknisk standard og tilpasses dagens krav til funksjonalitet og komfort, samtidig som byggenes opprinnelige kvaliteter ivaretas. Dette gir et arbeidsmiljø med særpreg - midt i sentrum, med kort vei til kollektivtransport, serveringssteder og øvrige byfunksjoner.
Det er beregnet en byggetid på ca. 12-14 måneder fra oppstart.
Andre leietakere i bygget er Rema 1000, Interoptik, Kvernø Sko.
Beliggenhet:
Prosjektet Olav Tryggvasons gate 15/17 ligger midt i Trondheim sentrum, med kort gangavstand til kollektivtransport, butikker, serveringssteder og viktige byfunksjoner.
Eiendommene har en sentral og synlig plassering i bybildet, med fasade ut mot Olav Tryggvasons gate - en av Trondheims mest trafikkerte og kjente gater.
Her er det lett tilgjengelighet både for ansatte og besøkende, med bussholdeplasser og parkeringshus i umiddelbar nærhet.
Samtidig er det kort vei til jernbanestasjonen, som gir enkel tilgang for pendlere og tilreisende.
Nærområdet byr på et bredt utvalg av kaféer, restauranter og butikker innen få minutters gange.
Det er også nærhet til offentlige tjenester og byens kulturtilbud.
Beliggenheten gjør Olav Tryggvasons gate 15/17 til et naturlig valg for virksomheter som ønsker å være synlige, tilgjengelige og tett på Trondheims urbane liv.
Ledig areal:
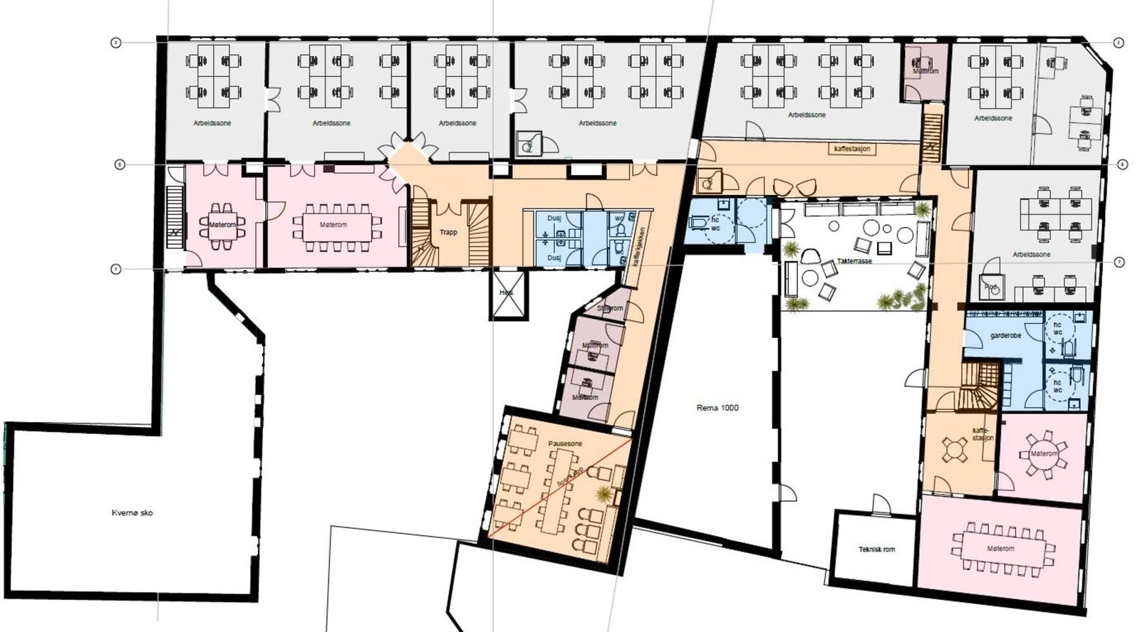
I 2. etasje i eiendommene tilbys fleksible og moderne lokaler på totalt ca. 1400 kvm.
Arealet kan enkelt deles opp, og det er mulig å leie fra ca. 250 kvm - perfekt for både små og større aktører.
Lokalene kan utformes med en inspirerende miks av åpne arbeidsplasser, møterom, multirom/stillerom og sosiale soner som fremmer trivsel og samarbeid.
Her får du muligheten til å skreddersy løsningen etter din bedrifts behov og kultur.
Vi ser ikke kun etter tradisjonelle kontorbrukere - konseptet passer også for kreative miljøer, teknologibedrifter, helserelaterte tjenester eller andre virksomheter som ønsker fleksible og funksjonelle lokaler i et attraktivt område.
Om utleier:
R. Kjeldsberg har gjennom generasjoner vært kjent for et langsiktig eierskap, samt vilje og evne til nytenkning. Fra kolonialhandel og kaffeforedling, til by- og stedsutvikling, har selskapet utviklet seg i takt med byen. R. Kjeldsberg sine verdier er : Tenk nytt, Sett spor og Bry deg, og de ønsker at verdiene vises i deres prosjekter, og i hvordan de oppleves av sine leietakere.
Etter snart 170 år er R. Kjeldsberg AS fremdeles eid av familien Kjeldsberg.
Ole Petter Bjørseth er administrerende direktør og Cathrine Ertsås Johansen er utleiesjef.
Matrikkelinformasjon
Nyttige lenker
Norion Næringsmegling
Nærområdet
Annonseinformasjon
| FINN-kode | 432349890 |
|---|---|
| Sist endret | 24. okt. 2025 09:47 |
| Referanse | 10250220 |
Annonsene kan være mangelfulle i forhold til lovpålagt opplysningsplikt. Før bindende avtale inngås oppfordres interessenter til å innhente komplett informasjon fra meglerforetaket, selger eller utleier.







