Bildegalleri

Mosseveien 112
Praktiske og velholdte kontorer ved E6 i Råde. Mulighet for leie av utelagringsplass.
Nøkkelinfo
- Areal
- 81 m²
- Bruttoareal
- 81 m²
- Tomteareal
- 39 510 m² (eiet)
- Etasje
- 3.
- Byggeår
- 2002
- Overtakelse
- Lokalene er ledige og rask overtakelse kan påregnes.
Type lokale
Fasiliteter
Arealspesifikasjon
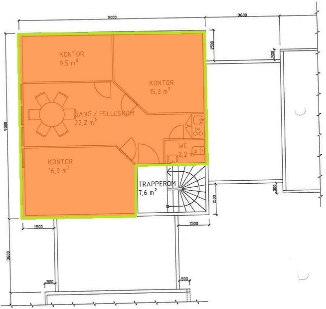
2. etg: 81 kvm Lokale 1
| Kort om eiendommen
Fine kontorlokaler med en sosial og praktisk rominndeling leies ut. Gode muligheter for rask overtagelse.
- Lokalene er ligger i 2. etg.
- Passer fra 3 til 5 ansatte.
- Godt inneklima.
- Støydempende vinduer.
- Kjempeeksponering mot E6.
- To reklameskilt mot E6 er tiltatt.
- Parkering inkl. i leien.
| Innhold
Lokalene ligger i 2. etg. i bygget langs E6, og inneholder velholdte kontorer i lys utførelse med tilknyttet fiberbredbånd.
Utstyrt med en enkel kjøkkeninnredning, som inneholder kjøleskap, oppvaskmaskin, kokeplater og oppbevaring. Lokalet har også et toalett i samme etasje.
Det er også mulighet for noe utelagring dersom det er interessant, mot et leietillegg.
| Beliggenhet
Eiendommen er landlig beliggende i Råde kommune, med E6 som nærmeste nabo og Rygge Lufthavn i umiddelbar nærhet.
| Adkomst
Med bil bruker du 5 minutter fra avkjøring av E6, enten du kjører nordover (Jonstenkrysset) eller sydover (Halmstadkrysset). Eiendommen ligger godt synlig ovenfor veien, når man kjører på Mosseveien der man følger skiltningen til "Løkenholtet".
| Parkering
Inkludert i leien er også biloppstillingsplasser på felles parkeringsplass.
| Diverse
Eiendommen eies av Råde Graveservice Eiendom AS, som også benytter store deler av eiendommen selv.
| Standard
Lokalene er pusset opp i 2014, og fremstår velholdte. Det er brukt lydisolerende elementer, som vinduer og tak i bygget for å skape gode arbeidsforhold.
| Oppvarming
Elektrisk oppvarming. Lokalene har fastmonterte elektriske varmeovner i alle rom, samt varmekabler i flislagt gulv.
| Ventilasjon
Det er balansert ventilasjon med varmegjenvinner i lokalene.
| Energimerking
Energimerking foreligger ikke.
Ytterligere opplysninger om energimerking finner du på www.energimerking.no
| Lovanvendelse
Ved utleie vil meglers leiekontrakt bli benyttet. Husleielovens vil bare i begrenset utstrekning kunne påberopes av Leietaker. Kontakt vårt kontor for nærmere opplysninger og gjennomlesing av avtalen.
Utleier forbeholder seg her bl.a. retten til å kunne registrere utleievirksomheten i merverdiregisteret.
Eml. §§ 4-4, 6-2, 6-7, 6-10, 7-1 og 8-8 fravikes ved dette oppdraget.
Lov om hvitvasking
Eiendomsmeglere er underlagt lov om hvitvasking. Dette innebærer at oppdragsansvarlig har plikt til å melde fra til Økokrim om eventuelle mistenkelige transaksjoner.
| Hvitvaskingsloven
Eiendomsmeglere er underlagt lov om hvitvasking og er forpliktet til å rapportere til Økokrim om mistenkelige transaksjoner. Lov om hvitvasking innehar også strenge regler om kontroll av legitimasjon fra alle parter i handelen, herunder, selger, kjøper og fullmektiger for disse.
Matrikkelinformasjon
Visning
Ta kontakt for å avtale visning.Metra Næringsmegling AS
Nærområdet
Annonseinformasjon
| FINN-kode | 432059620 |
|---|---|
| Sist endret | 28. okt. 2025 14:55 |
| Referanse | MTRA1.2299 |
Annonsene kan være mangelfulle i forhold til lovpålagt opplysningsplikt. Før bindende avtale inngås oppfordres interessenter til å innhente komplett informasjon fra meglerforetaket, selger eller utleier.














