Bildegalleri

Lager og kombinasjonslokaler til leie | Sentral beliggenhet på Alnabru Breivoll | 1000 - 1500 kvm
Nøkkelinfo
- Areal
- 1 000 - 1 700 m²
- Etasje
- 1.
Type lokale
Kontor
Butikk/Handel
Produksjon/Industri
Lager/Logistikk
Kombinasjonslokaler
Verksted
Andre
Fasiliteter
Garasje/P-plass
Kjøreport
Om eiendommen
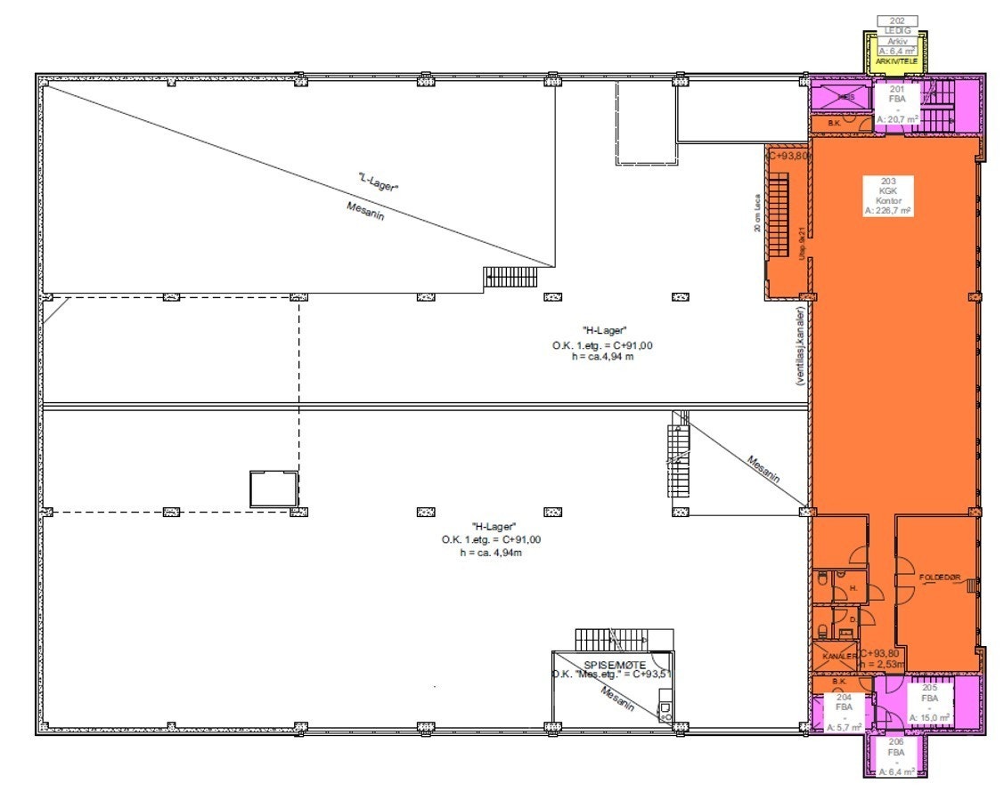
I Strømsveien 177, med svært sentral beliggenhet nær E6 og Alnabru, tilbys nå fleksible lagerlokaler på ca. 1000 - 1500 kvm for leie. Lokalet egner seg godt for lager, logistikk eller lett produksjon, og har god tilgjengelighet både for varetransport. I tilknytning til lagerlokalene er det to likestore etasjer på tilsammen på ca 575 kvm som egner seg godt som kontor, showroom, eller proffutsalg.
Nøkkelinformasjon:
Størrelse: Lager ca. 1 000 - 1 500 kvm | Kontor 275 - 1000 kvm
God takhøyde på 5 meter i lager
Tilgang via store kjøreporter
Enkel adkomst til E6 og Ring 3
Gode parkeringsmuligheter
Lokalet er ledig for overtakelse etter nærmere avtale. Dette er en sjelden mulighet for aktører som ønsker arealeffektive lokaler med sentral beliggenhet i Oslo øst.
Ta kontakt for mer informasjon eller visning.
Nøkkelinformasjon:
Størrelse: Lager ca. 1 000 - 1 500 kvm | Kontor 275 - 1000 kvm
God takhøyde på 5 meter i lager
Tilgang via store kjøreporter
Enkel adkomst til E6 og Ring 3
Gode parkeringsmuligheter
Lokalet er ledig for overtakelse etter nærmere avtale. Dette er en sjelden mulighet for aktører som ønsker arealeffektive lokaler med sentral beliggenhet i Oslo øst.
Ta kontakt for mer informasjon eller visning.
Beliggenhet
Strømsveien 177 har en svært sentral beliggenhet på Alnabru, med umiddelbar nærhet til hovedferdselsårene E6 og Ring 3. Dette gir enkel adkomst til hele Stor-Oslo og resten av Østlandet som er ideelt for virksomheter med behov for effektiv logistikk og transport.
Det er bussholdeplass kun et par minutters gange fra eiendommen, som gir god kollektivdekning for ansatte og besøkende.
Det er bussholdeplass kun et par minutters gange fra eiendommen, som gir god kollektivdekning for ansatte og besøkende.
NB: Knappen for å vise hele beskrivelsen har kun en visuell effekt.
NB: Knappen for å vise hele beskrivelsen har kun en visuell effekt.
Visning
Ta kontakt for å avtale visning.ORO
Velkommen til ORO!
Nærområdet
Annonseinformasjon
| FINN-kode | 431889467 |
|---|---|
| Sist endret | 13. okt. 2025 12:31 |
| Referanse | Strømsveien 177 |
Annonsene kan være mangelfulle i forhold til lovpålagt opplysningsplikt. Før bindende avtale inngås oppfordres interessenter til å innhente komplett informasjon fra meglerforetaket, selger eller utleier.





