Bildegalleri

Vestre Vanemvei 37 - slik kan bygget bli.jpg
Skreddersydd næringsbygg ved Mosseporten - tilpasses leietakers behov.
Nøkkelinfo
- Areal
- 1 138 m²
- Bruttoareal
- 1 138 m²
- Tomteareal
- 5 147 m² (eiet)
- Byggeår
- 2024
- Overtakelse
- Det planlegges for en byggetid på ca. 9 mnd. etter at avtale er inngått og rammetillatelse foreligger. Området er regulert og prosjektet kan rammesøkes direkte.
Type lokale
Fasiliteter
| Kort om eiendommen
Eiendommen ligger på første byggetrinn i det nye næringsområdet. I nabolaget ligger Europris sitt sentrallager, Moss Havn Dryport og det store logistikkbygget til JAS Worldwide Norway AS. Totalt vil alle byggetrinnene inneholde ca. 610 da næringstomter. Primært for langsiktig utleie. Kjøp av ferdig bygg kan også diskuteres.
| Bebyggelse
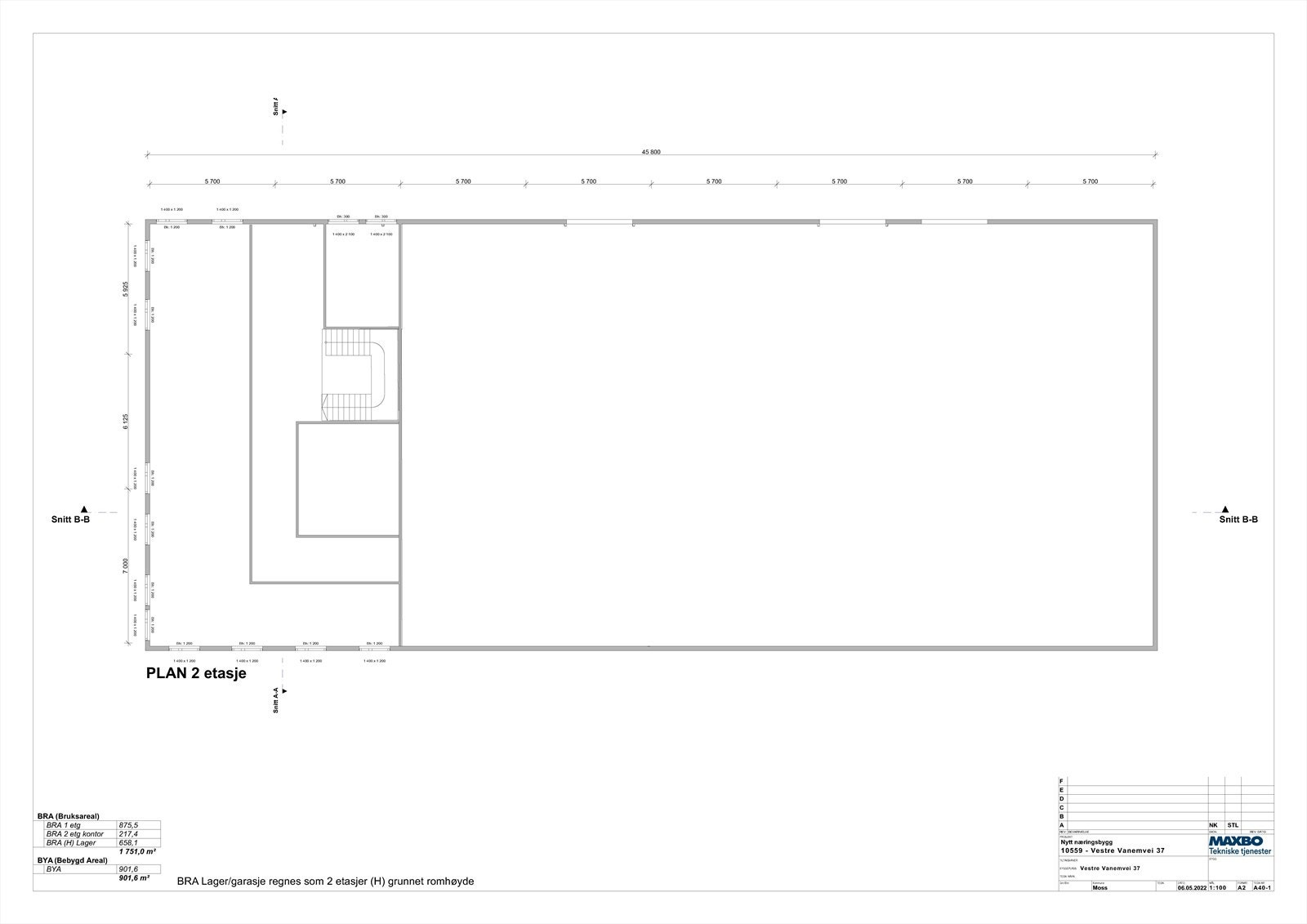
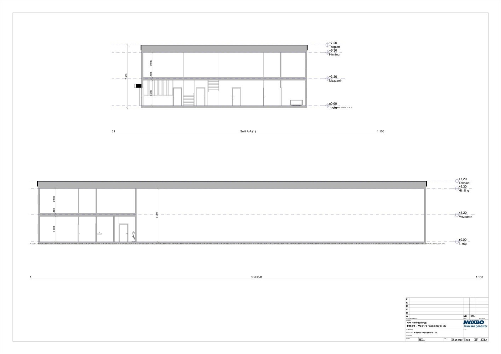
Prosjektert næringsbygg som kan tilpasses leietakers behov. Bygget er prosjektert med med isolert og armert betongplate på mark. Grunnen består av komprimert sprengsteinfylling. Bæresystem (søyler og dragere) i stål, og med fasader i isolerte sandwich-elementer i stål. Isolerte leddporter med motordrift. Takverk av korrugerte stålplater som er utvendig isolert og tekker med PVC-folie eller papp. Innvendige, varme taknedløp og infiltrering av takvann i grunnen. Det bygget som er illustrert har en grunnflate på 901 m2 og et totalt leieareal på 1 138 m2. Innvendig fri høyde under drager 6,3 m. Bygget kan økes noe både i areal og høyde (maks gesimshøyde 16 m).
| Innhold
Det planlagte bygget kan inneholde både logistikkvirksomhet, industriproduksjon eller verkstedvirksomhet.
| Beliggenhet
Området ligger rett ved E6, rett øst for Mosseporten, langs FV 120. Europris sitt nye sentrallager ligger på samme område.
Avstander: E6 v/Mosseporten 0,9 km, Moss sentrum 3,5 km, Moss Havn 4,5 km, Oslo (Ryen) 63,5 km, Svenskegrensen (Svinesund) 56,5 km, Svenskegrensen (Ørje) 78 km.
| Adkomst
Avkjøring 14, Patterødkrysset på E6 ved Mosseporten > Rv 120 ca. 900 m østover mot Askim > adkomstvei til Moss Næringspark på høyre side av veien.
| Standard
Bygget oppføres etter de nyeste TEK-krav og dette innebærer bl.a. meget god isolasjon og energiøkonomi. Innvendig standard og innredning kan påvirkes av leietaker.
| Beskrivelse av tomt
Tomten er flat og har stor bæreevne. Alle utvendig plasser planlegges opparbeidet med asfalt, kantstein, utebelysning og noe beplantning.
| Offentlig kommunikasjon
Det er hyppige bussforbindelser fra sentrum og til Mosseporten som ligger noen hundre metere unna eiendommen.
| Lovanvendelse
Ved utleie vil meglers leiekontrakt bli benyttet. Husleielovens vil bare i begrenset utstrekning kunne påberopes av Leietaker. Kontakt vårt kontor for nærmere opplysninger og gjennomlesing av avtalen.
Utleier forbeholder seg her bl.a. retten til å kunne registrere utleievirksomheten i merverdiregisteret.
Eml. §§ 4-4, 6-2, 6-7, 6-10, 7-1 og 8-8 fravikes ved dette oppdraget.
| Hvitvaskingsloven
Lov om hvitvasking
Eiendomsmeglere er underlagt lov om hvitvasking. Dette innebærer at oppdragsansvarlig har plikt til å melde fra til Økokrim om eventuelle mistenkelige transaksjoner.
Matrikkelinformasjon
Visning
Ta kontakt for å avtale visning.Metra Næringsmegling AS
Nærområdet
Annonseinformasjon
| FINN-kode | 431854411 |
|---|---|
| Sist endret | 13. okt. 2025 09:07 |
| Referanse | MTRA1.2352 |
Annonsene kan være mangelfulle i forhold til lovpålagt opplysningsplikt. Før bindende avtale inngås oppfordres interessenter til å innhente komplett informasjon fra meglerforetaket, selger eller utleier.
























