Bildegalleri

Næringslokale i Sandnessjøen Sentrum med havutsikt - Perfekt for moderne kontorfellesskap
Nøkkelinfo
- Areal
- 300 - 920 m²
- Etasje
- 2.
- Byggeår
- 1985
Type lokale
Om eiendommen
- Sentral beliggenhet
- Store vinduer som skaper et lyst og innbydende miljø
- Havutsikt
- 900 kvadratmeter åpent landskap for skreddersydde løsninger
- Fleksible muligheter for innredning og ombygging av lokale
- Nærhet til offentlig transport, havnetransport og parkeringsfasiliteter
Dette er en unik mulighet til å sikre deg et spennende næringslokale i Sandnessjøen sentrum.
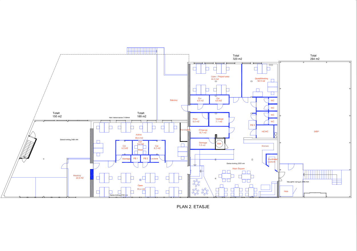
Vedlagt planløsning er kun for forslag.
Byggets 1.etg er totalrenovert og utleid, der nå 2etg står for tur. Bygget vil total-renoveres etter BREEAM-Nor-prinsipp med høyt fokus på bærekraft og vi er derfor også fleksible på tilpassede løsning for deg som leietaker.
Ta kontakt med oss i dag for å avtale en visning og få mer informasjon.
Fordeler med å velge vårt næringslokale
Er du på utkikk etter det ideelle stedet for din bedrift eller moderne kontorlandskap? Vi har det perfekte utgangspunktet for deg med havutsikt over vakre Helgeland, midt i Sandnessjøen sentrum.
Beliggenhet
Dynamisk og allsidig!
Dette attraktive næringslokalet er omgitt av et dynamisk nabolag som tilbyr et bredt spekter av fasiliteter og muligheter. Bygget har andre leietakere som f.eks treningssenter, som gir gode synergier for besøk og skaper et flott og sosialt miljø. For besøkende eller forretningsreisende er det også et hotell i nærheten som gir bekvemmelighet og overnattingsmuligheter. Og ikke minst er hovedpulsåra med havnetrafikken lokalisert på kaia til dette bygget.
Sentralt og med enestående synlighet!
Næringslokalet er strategisk plassert langs Havnegata, med store vinduer ut mot havet gir en fantastisk havutsikt mot innfartsåra i Sandnessjøen.
Visning
Ta kontakt for å avtale visning.FEEL24 EIENDOM AS
Nærområdet
Annonsene kan være mangelfulle i forhold til lovpålagt opplysningsplikt. Før bindende avtale inngås oppfordres interessenter til å innhente komplett informasjon fra meglerforetaket, selger eller utleier.



