Bildegalleri

Velkommen til Ferjestedsveien 2
Kontorlokaler til leie på Cicignon med utsikt over elven, mot Gamlebyen og Isegran
Nøkkelinfo
- Areal
- 490 m²
- Bruttoareal
- 490 m²
- Tomt
- Eiet
Type lokale
Fasiliteter
| Kort om eiendommen
Fantastisk beliggenhet ved elvekanten.
Lyse og hyggelige kontorlokaler.
Et tidstypisk bygg som har beholdt originaluttrykket både innvendig og utvendig.
Lokalene består hovedsakelig av åpent kontorlandskap, men har også enkeltkontorer.
Store vindusflater gir naturlig lysinnslipp.
| Bebyggelse
Eiendommen ble oppført som administrasjonsbygg for Havnevesenet i 1968.
Når Brynhildsen arkitekter v/Eyolf Scholze tegnet bygget la han vekt på at bygningen skulle underordne seg bebyggelsen i bakkant. Den skulle være lav og ligge nær vannkanten.
Bygningen har opprettholdt mye av sitt opprinnelige særpreg, både innvendig og utvendig.
På langsiden er det fem pilarer som ligger utenpå vegglivet og skaper en tredimensjonalitet i fasaden. Det er tilsvarende frittstående pilarer innvendig. Dette, sammen med at mye av de innvendige eikedetaljene er beholdt, rundt bl.a. dører, vinduer og i trapp gir bygget et hyggelig arkitektonisk inntrykk.
Store vindusflater gir godt lysinnslipp og flott utsikt mot Gamlebyen, Isegran og mot Fredrikstadbrua.
Granittfliser på gulv i inngangsparti. Forøvrig parkett, skipsgulv og trelaminat. Eik i trapp, dører og i innvendige bygningsdetaljer.
| Innhold
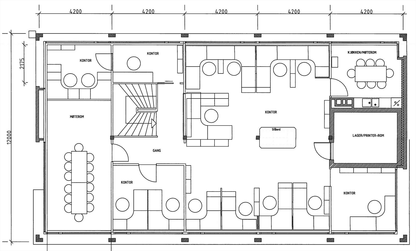
1. etasje inneholder inngangsparti, kontorlandskap, møterom, tekjøkken, toaletter og lager-/arkivrom.
2. etasje inneholder resepsjon, kontorlandskap, enkeltkontorer, spiserom med kjøkken, møterom, kopirom og lagerrom.
Kjøkkenet har oppvaskmaskin, kjøleskap og mikro.
Se tegninger for oversikt over rominndeling.
Eiendommen ønskes fortrinnsvis utleid samlet, men kan vurderes utleid i mindre enheter.
Utleier er åpen for tilpasninger og oppgradering av lokalene ved langsiktig leieavtale.
| Beliggenhet
Eiendommen ligger på Cicignon, med fasade mot elven og rett ved fergestedet til Gamlebyen.
Cicignon er av mange karakterisert som Fredrikstads hyggeligste bydel med fine parker, ærverdige bolighus og med gangavstand til det "moderne" handelssenteret.
Det er ca 850m til byens rådhus.
Kontorbygget har utsikt mot Glomma og over til Gamlebyen. Fra møterommet i 2. etasje ser man også Isegran.
Tar man gratisfergen er man i Gamlebyen på få minutter.
Festningsbyen ved Glommas utløp er fortsatt en levende bydel med boliger, forretnings- og servicevirksomheter samt diverse kunst- og håndverksbutikker/verksteder.
Om sommeren er det et yrende liv av både fastboende og turister. Det er flere kafeer og restauranter som kan benyttes når man vil ta kunder med på en hyggelig forretningslunsj.
| Adkomst
Med bil:
Fredrikstad sentrum. Kjør mot jernbanestasjonen og følg veien helt ned til elva. Der ligger eiendommen på venstre side helt ned mot Glomma. Nærmeste nabo med fergestedet.
Med gratis ferge:
Gamlebyfergen: Cicignon - Gamlebyen.
Fergen har avganger minimum hvert 15. minutt fra 05:15 - 01:45 og enda oftere i rushtiden.
Byfergen: Gamlebyen - Smertu - Sentrum - Værste - Gressvik - Ålekilene.
Fergen har avganger fra 06 til 23 (hvert 20. minutt på dagtid).
Med tog:
Kun 300m fra jernbanestasjonen.
Til fots/sykkel:
Veldig hyggelig gå-/sykkeltur (4 minutter) langs Glomma og Vesterelven til sentrum.
| Parkering
6-7 p-plasser.
Det er mulighet for leie av ytterligere plasser på nærliggende p-plass.
| Diverse
Vinduene mot syd og øst har utvendige persienner.
Kabelkanaler med uttak for strøm, tele og data langs yttervegger.
Fiberkabel inn i bygget fra Viken fiber.
Eiendommen er ledig fra 1. februar 2026.
Idet eiendommen er fullt utleid i dag er samtlige bilder fra 2015, før nåværende leietaker flyttet inn.
| Beskrivelse av tomt
Hyggelige uteareal opparbeidet med gressplen og beplantning.
Spiseplass ut mot elven.
| Oppvarming
Vannbåren varme via radiatorer fra oljefyrt sentralfyr.
| Ventilasjon
Balansert ventilasjon.
| Lovanvendelse
Ved utleie vil meglers leiekontrakt bli benyttet. Husleielovens vil bare i begrenset utstrekning kunne påberopes av Leietaker. Kontakt vårt kontor for nærmere opplysninger og gjennomlesing av avtalen.
Utleier forbeholder seg her bl.a. retten til å kunne registrere utleievirksomheten i merverdiregisteret.
Eml. §§ 4-4, 6-2, 6-7, 6-10, 7-1 og 8-8 fravikes ved dette oppdraget.
Kfr megler for utfyllende bestemmelser.
Eiendomsmeglere er underlagt lov om hvitvasking. Dette innebærer at oppdragsansvarlig har plikt til å melde fra til Økokrim om eventuelle mistenkelige transaksjoner.
Matrikkelinformasjon
Visning
Ta kontakt for å avtale visning.Metra Næringsmegling AS
Nærområdet
Annonseinformasjon
| FINN-kode | 431186328 |
|---|---|
| Sist endret | 24. okt. 2025 13:31 |
| Referanse | MTRA2.2582 |
Annonsene kan være mangelfulle i forhold til lovpålagt opplysningsplikt. Før bindende avtale inngås oppfordres interessenter til å innhente komplett informasjon fra meglerforetaket, selger eller utleier.




















