Bildegalleri

Terminal/lager/høytlager/verksted arealer til leie i Energiklasse A bygg, sentralt i Lillestrøm. Mulighet for uteareal
Nøkkelinfo
- Areal
- 3 500 - 7 500 m²
- Overtakelse
- Fleksibel
Type lokale
Fasiliteter
Om eiendommen
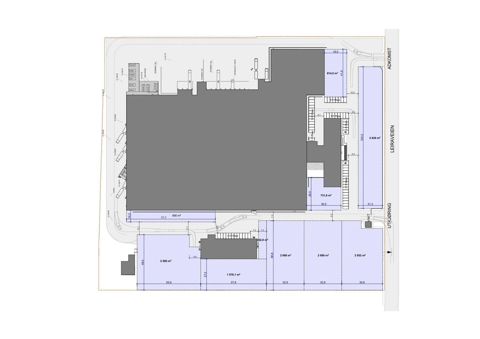
Vi har mulighet for utleie av 2 arealer på eiendommen godt egnet for terminaldrift:
Terminalareal 1: 3200 kvm terminal, hvorav 1200 kvm med høy takhøyde. Arealet inkluderer 6 lastehus for semitrailer – 3 i hver ende, lastebrygge med plass til 5 semitrailere, kjøreport, og ulike kombinasjonsmuligheter for lossing under tak. Lagerarealer på mesanin og høytlager i bakkant på 3000 kvm medfølger etter avtale hvor vi har en lagringskunde som trenger handeling. Det kan være mulig å ta dette arealet ut av kontrakten. Kjørekontor på 100 kvm og en kontorfløy på 360 kvm medfølger.
Terminalareal 2: 3000 kvm terminal med god takhøyde, kan også benyttes til lagring, deler er reolsatt. Arealet har 2 kjøreporter på bakkenivå, 3 lastehus for semitrailer og lastebrygge med 3 lasteplasser for liten lastebil. 100 kvm kjørekontor samt 1 kontorfløy på 360 kvm medfølger.
Utearealer: Eiendommen kan kombinere leie av lokaler med utearealer eller ren uteareal leie. Samlet uteareal på eiendommen er ca. 15.000 kvm.
Eiendommen har gode parkeringsmuligheter og busstopp i RV22 med mange bussavganger. Eiendommen ligger tett på Lillestrøm sentrum med enkel adkomst til E6, Rv22 og øvrig hovedveinett.
Eiendommen er inngjerdet og har to store automatiske kjøreporter med adgangskontroll for enkel inn- og utkjøring, samt vakthold.
Lademuligheter for store biler/busser og lastebiler.
Bygget er nylig oppgradert til Energiklasse A med nytt varmeanlegg, ventilasjon, fasadeoppgradering, nytt tak og nye vinduer, samt solceller og fjernvarme.
Bygget er eid og forvaltet av LogCap, største aktør innen industrieiendommer i Stor-Oslo med solide og profesjonelle eiere. Mulighet for vekst i arealstørrelse i bygget over tid.
NB: eldre bilder, nye bilder kommer ila få dager
Matrikkelinformasjon
Visning
Ta kontakt for å avtale visning.ORO
Nærområdet
Annonsene kan være mangelfulle i forhold til lovpålagt opplysningsplikt. Før bindende avtale inngås oppfordres interessenter til å innhente komplett informasjon fra meglerforetaket, selger eller utleier.























