Bildegalleri

Fischebrygga – en moderne og karakteristisk bryggeeiendom på ca. 4 400 kvm BTA.
Fischebrygga ved Bakke bru | Flotte kontorlokaler i en moderne og velholdt bryggeeiendom med utsikt over Nidelva
Nøkkelinfo
- Areal
- 250 - 750 m²
- Energimerking
- D - Mørkegrønn
- Overtakelse
- Omgående
Type lokale
Om eiendommen
Nedre Bakklandet 58 C er en moderne og karakteristisk bryggeeiendom bestående av fire sammenhengende brygger, med et samlet areal på ca. 4.400 kvm BTA. Eiendommen benyttes hovedsakelig til kontorformål og huser flere spennende leietakere. Med sin sentrale beliggenhet langs Nidelva, rett ved Bakke Bru, tilbyr eiendommen både nærhet til byens fasiliteter og en flott utsikt over Nidelven og Trondheim sentrum.
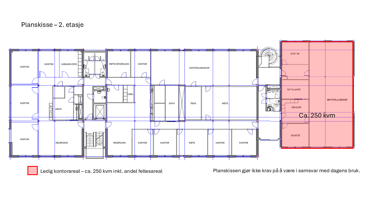
Ledige lokaler i bygget:
- 2. etg.: Ca. 250 kvm kontorareal
- 3. etg.: Ca. 250 kvm kontorareal - Nylig oppgraderte kontorlokaler
- 4. etg.: Ca. 250 kvm Foramlingslokale / møterom med storkjøkken/ kantinefasilitet
Tilpasning / standard:
Leietaker har mulighet til å sette sitt preg på lokalene, som kan tilpasses etter ønsker i samråd med huseier.
Øvrige leietakere i brygga:
Ren Røros, Citero, Headspin, Axess, Celero, TV 2, Eie Advokat, Eie Eiendomsmegling, Bakke Tannlegekontor, mfl
Matrikkelinformasjon
Visning
Ta kontakt for å avtale visning.Norion Næringsmegling
Nærområdet
Annonseinformasjon
| FINN-kode | 430829515 |
|---|---|
| Sist endret | 16. okt. 2025 05:38 |
| Referanse | 10250084 |
Annonsene kan være mangelfulle i forhold til lovpålagt opplysningsplikt. Før bindende avtale inngås oppfordres interessenter til å innhente komplett informasjon fra meglerforetaket, selger eller utleier.
























