Bildegalleri

Lokalene ligger i byggets 1. etg Fotograf: @knutneerland @magentfotografer
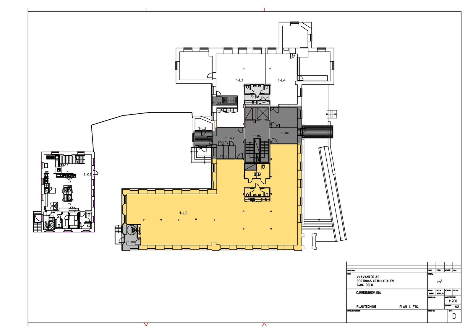
Sjarmerende kontorlokale til showrom/kontor i Nydalen
Nøkkelinfo
- Areal
- 559 m²
- Etasje
- 1.
- Byggeår
- 1847
- Renovert år
- 2008
- Overtakelse
- Umiddelbart
Type lokale
Fasiliteter
Om eiendommen
Om lokalene:
I dette vakre bygget har vi et ledig lokale på 559 kvm BTA i 1. etg. Lokalene har blitt åpnet opp og veggene er revet.
Lokalene vil bygges opp igjen i samarbeid med ny leietaker. Lokalene har mye sjarm med flotte vinduer, masse lys, søyler og åpenhet. De passer godt til en kontorløsning for åpne landskap og møterom, og gjerne i kombinasjon med showrom.
Om bygget:
Gjerdrums vei 10A er et av de eldste byggene i Nydalen. Eiendommen var tidligere et spinneri, som nå er forvandlet til moderne kontorlokaler. Her ligger industrihistorien i veggene, og Akerselva slynger seg forbi rett utenfor vinduene.
Kantinen ligger i et eget lite bygg ved siden av hovedbygningen i hyggelige omgivelser. Her lager Line nydelige retter fra bunn hver dag, og på fredagene er det selvfølgelig nystekte vafler.
I dette bygget er det også møteromsfasiliteter og mulighet for å avholde arrangementer. Det tar ca 5 min å gå til Nydalen T-banestasjon og Torgbygget.
I byggets underetasje er det sykkelparkering, garderobe- og dusjanlegg.
Parkering:
Parkeringsplasser kan leies rett utenfor bygget, eller du kan leie p-plasser innendørs i nabobygget (Gjerdrums vei 4)
NYDALEN
Hold deg oppdatert på www.nydalen.no
Nydalen er blitt et av Oslos mest fremtidsrettete bydelssentrum som stadig flere bedrifter etablerer seg i. Kombinasjonen av nærhet til rekreasjon og urbane kvaliteter er noe av det som gjør området unikt for alle de 30.000 menneskene som jobber, bor og studerer her. I Nydalen er det kort vei til alt. Du har flotte turstier rett utenfor døren, bademuligheter i Akerselva, de servicetilbudene du trenger, og kun 11 minutter til sentrum med en t-bane som går hele tiden .
Servicetilbud
Gullhaug Torg med Torgbygget, Radisson Blu hotell og Handelshøyskolen BI danner sentrum i Nydalen. Her finner du alt du måtte trenge av servicetilbud som cafèer, restauranter, treningssentre, matforretning, apotek, medisinsk senter, kiosk, frisør, konferansefasiliteter osv. Nydalens servicetilbud utvides stadig. Oslos største kjøpesenter ligger i 5 minutters gangavstand fra Nydalen.
Kommunikasjon
Nydalen er et spennende alternativ for både små og store bedrifter som ønsker egne, skreddersydde lokaler i nærhet til både Oslo sentrum og sentrale kommunikasjonsårer. Tilgjengeligheten med T-banestasjon, taxiholdeplass, buss- og togforbindelse, samt Ring 3 rett ved, gjør Nydalen meget attraktiv!
T-bane
- 16 avganger hver time fra Nydalen T-banestasjon
- 9 min til Majorstuen
- 11 min til Nationaltheatret med overgang til Flytoget
- 12 min til Jernbanetorget
Buss
Nydalen har gode bussforbindelser i alle retninger. Flybussen stopper i Nydalen og går direkte til Oslo lufthavn Gardermoen.
Tog
Nydalen stasjon på Gjøvikbanen har hyppige togavganger i begge retninger. Toget stopper på samme stasjoner som flytoget: Oslo S, Nationaltheatret og Skøyen.
Bil
Nydalen ligger like innenfor Ring 3 med forbindelse til E6 og E18. Det finnes 5000 parkeringsplasser inne og ute.
Visning
Ta kontakt for å avtale visning.Avantor AS
Nærområdet
Annonsene kan være mangelfulle i forhold til lovpålagt opplysningsplikt. Før bindende avtale inngås oppfordres interessenter til å innhente komplett informasjon fra meglerforetaket, selger eller utleier.
















