Bildegalleri

Attraktiv kontoreiendom med sterk synlighet i et veletablert nærings- og handelsområde
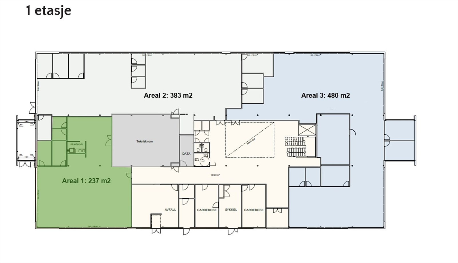
Moderne kontoarealer på 237 kvm til leie!
Nøkkelinfo
- Areal
- 237 m²
- Bruttoareal
- 237 m²
- Tomteareal
- 6 302 m² (eiet)
- Etasje
- 1.
- Byggeår
- 2016
- Overtakelse
- Lokalet står ledig og kan overtas omgående.
Type lokale
| Kort om eiendommen
Kontorbygg på totalt ca. 3 600 kvm BTA, utformet for et effektivt og funksjonelt arbeidsmiljø. Det ledige arealet utgjør ca. 230 kvm BTA i første etasje, i tillegg til andel av fellesarealer og kantine. Lokalene består av åpent landskap med plass til om lag 15 arbeidsstasjoner, fire cellekontorer, minikjøkken og stillerom.
Resterende del av bygget benyttes i dag av Visma, som fraflytter eiendommen 31. desember 2026
| Bebyggelse
Moderne bygningsmasse med tidsriktig arkitektur og høy standard.
| Innhold
Fellesarealene omfatter blant annet sykkelparkering samt garderober med dusjfasiliteter for dame og herre. I byggets tredje etasje ligger en moderne og innbydende kantine, fullt møblert og bemannet.
Tilleggstjenester:
- Felles møteromsenter
- Mulighet for bemannet resepsjon
- Renhold og drift inkludert
- Felles lounge eller coworking-område
| Beliggenhet
Eiendommen ligger sentralt mellom Fredrikstad og Sarpsborg, midt i et veletablert næringsområde med høy eksponering mot Rv. 109 (over 25 000 biler daglig). Området utgjør en næringsklynge med kontor-, lager- og handelsbygg, og huser både lokale virksomheter og sterke aktører som XXL, Bohus, Power, Plantehallen og Rusta. Nærheten til Østfoldhallene, dagligvare, treningssenter, serveringssteder og øvrige servicetilbud gjør området til et attraktivt og synlig knutepunkt for bedrifter som ønsker profilering og tilgjengelighet.
| Adkomst
Eiendommen har en sentral beliggenhet med enkel adkomst fra både E6 og Rv. 109.
| Parkering
Rikelig med bil- og gjesteparkering på eiendommen, inkludert ladepunkter for elbil. God sykkelparkering med enkel adkomst til gang- og sykkelnettet.
| Regulering
Reguleringsplan: Dikeveien Nord
Formål: forretning/kontor/lager.
| Tekniske installasjoner
- Balansert ventilasjon med varmegjenvinning, individuell temperaturregulering
- LED-belysning med bevegelsessensorer og tilpasset lysstyrke.
- Fiber/internett, datakabling.
| Ventilasjon
Effektiv balansert ventilasjon og moderne belysningsløsninger. Bygget er energieffektivt og miljøsertififsert BREEAM IN Use Very Good.
| Energimerking
Energimerke C, med ambisjon om forbedring til B eller A
| Offentlig kommunikasjon
Området har svært god kollektivdekning via Glommaringen med bussavganger hvert 10. minutt, og er ellers godt tilrettelagt for bil, elbil og sykkel. Glommastien gir sammenhengende gang- og sykkelforbindelse helt fra Fredrikstad togstasjon og sentrum, og kommunen planlegger ytterligere utbygging av gang- og sykkelvei langs Dikeveien for å styrke tilgjengeligheten for myke trafikanter.
| Lovanvendelse
Ved utleie vil meglers leiekontrakt bli benyttet. Husleielovens vil bare i begrenset utstrekning kunne påberopes av Leietaker. Kontakt vårt kontor for nærmere opplysninger og gjennomlesing av avtalen.
Utleier forbeholder seg her bl.a. retten til å kunne registrere utleievirksomheten i merverdiregisteret.
Eml. §§ 4-4, 6-2, 6-7, 6-10, 7-1 og 8-8 fravikes ved dette oppdraget.
Lov om hvitvasking
Eiendomsmeglere er underlagt lov om hvitvasking. Dette innebærer at oppdragsansvarlig har plikt til å melde fra til Økokrim om eventuelle mistenkelige transaksjoner.
| Hvitvaskingsloven
Hvitvaskingsregelverk
I henhold til Lov av 6. mars 2009 nr. 11 om tiltak mot hvitvasking og terrorfinansiering (Hvitvaskingsloven) er megler pliktig å gjennomføre kundetiltak av både oppdragsgiver og kjøper.
Dette innebærer blant annet plikt for meglerforetaket til å bekrefte identiteten til kjøper på grunnlag av gyldig legitimasjon. Samt plikt til å foreta kontroll av eventuelle reelle rettighetshavere. Der kjøper opptrer i henhold til fullmakt må også fullmaktsgivers identitet bekreftes på grunnlag av gyldig legitimasjon. Kundetiltak av kjøper, skal senest skje på kontraktsmøtet.
Dersom budgiver opptrer i henhold til fullmakt, må fullmakten fremlegges samtidig som bud inngis. Dersom kjøper er en juridisk person, plikter kjøper å fylle ut og returnere egne kundekontrollskjemaer før kontraktsmøtet. Firmaattest eller fullmakt må fremlegges samtidig som det inngis bud.
Dersom kundetiltak ikke kan gjennomføres kan ikke meglerforetaket bistå med gjennomføring av handelen, herunder ikke foreta oppgjør. Meglerforetaket er videre forpliktet til å rapportere mistenkelige transaksjoner til Økokrim. Med mistenkelig transaksjon menes transaksjon som mistenkes å involvere utbytte fra straffbar handling eller som skjer som ledd i terrorfinansiering. Manglende mulighet for kundetiltak kan også være et forhold som gjør transaksjonen mistenkelig. Det kan ikke gjøres ansvar gjeldende motmeglerforetaket som følge av at meglerforetaket overholder sine plikter etter Hvitvaskingsloven.
Matrikkelinformasjon
Visning
Ta kontakt for å avtale visning.Metra Næringsmegling AS
Nærområdet
Annonseinformasjon
| FINN-kode | 430659319 |
|---|---|
| Sist endret | 07. okt. 2025 07:15 |
| Referanse | MTRA2.2575 |
Annonsene kan være mangelfulle i forhold til lovpålagt opplysningsplikt. Før bindende avtale inngås oppfordres interessenter til å innhente komplett informasjon fra meglerforetaket, selger eller utleier.













