Bildegalleri

Lørenveien 68
Nøkkelinfo
- Areal
- 237 - 763 m²
- Byggeår
- 1968
Type lokale
Fasiliteter
Om eiendommen
Om eiendommen
Eiendommen ligger meget sentralt til på Løren, ved siden av Økern Portal. Løren/Økern er et område under sterk utvikling. De ledige lokalene består av en blanding av handel, lager, kontor og helsekontor, sentralt beliggende på Økern/Løren. Lørenveien 68 er et næringsbygg med forretningslokaler i første etasje, samt kontorlokaler og lager. Bygget har en hovedinngang og en vareheis. Eiendommen har god parkeringsdekning og driftes av Malling & Co Forvaltning. Eiendommen ligger meget sentralt til på Løren, ved siden av Økern Portal. Løren/Økern er et område under sterk utvikling – og flere av dagens bygg vil bli revet i løpet av de kommende årene. Kontrakter kan inngås på 5–7 års avtaler. Gårdeier er også åpen for kortere leieforhold.
- Innflytting: Snarest
- Gårdeier: Oslo Pensjonsforsikring AS
Beliggenhet
Lørenveien 68 er gunstig plassert med tanke på kommunikasjon. Enten du ønsker å ta buss, T-bane, bil eller sykkel.
- Beliggenhet: Randsone Øst , Oslo , Økern , Løren
- Buss: 2 min.
- T-bane : 5 min.
- Sykkelparkering
Innhold
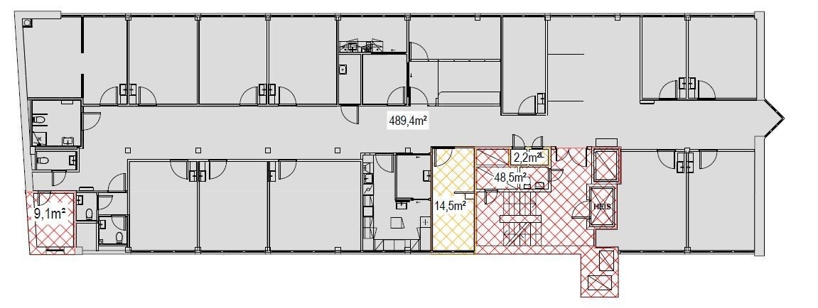
- Areal: 763 kvm
- Tilknytning til 2. etasje: 311 kvm, egnet for kontor og lager
- Areal: 614 kvm
- Bruksområde: Legekontor/kontor
- Oppusset: 2018
- Areal: 609 kvm
- Bruksområde: Legekontor/kontor
- Oppusset: 2018
Visning
Ta kontakt for å avtale visning.MALLING & CO FORVALTNING AS
Nærområdet
Annonsene kan være mangelfulle i forhold til lovpålagt opplysningsplikt. Før bindende avtale inngås oppfordres interessenter til å innhente komplett informasjon fra meglerforetaket, selger eller utleier.


























