Bildegalleri

Nytt kontor/lager bygg - ferdigsstillelse etter avtale - Leirvikflaten 17d
Nøkkelinfo
- Areal
- 560 - 1 120 m²
Type lokale
Kontor
Lager/Logistikk
Kombinasjonslokaler
Garasje/Parkering
Om eiendommen
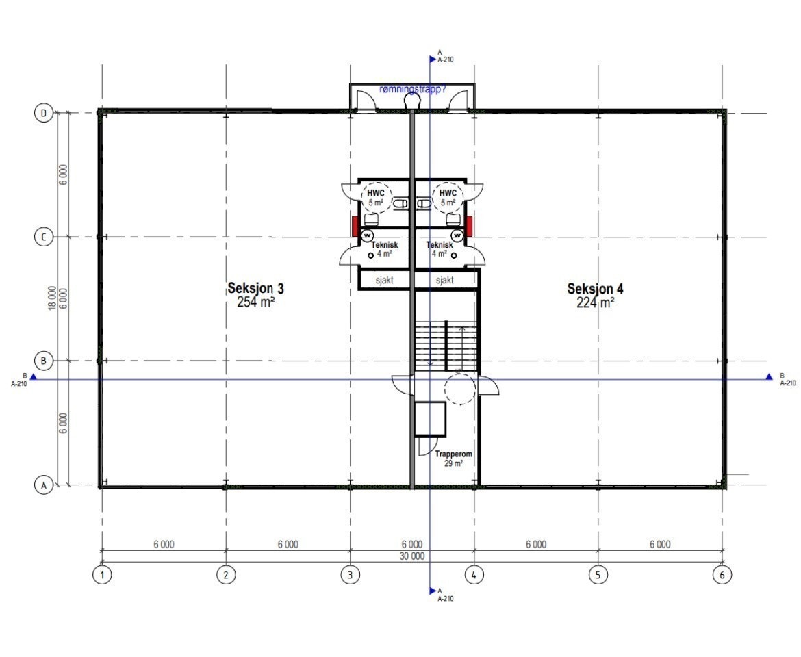
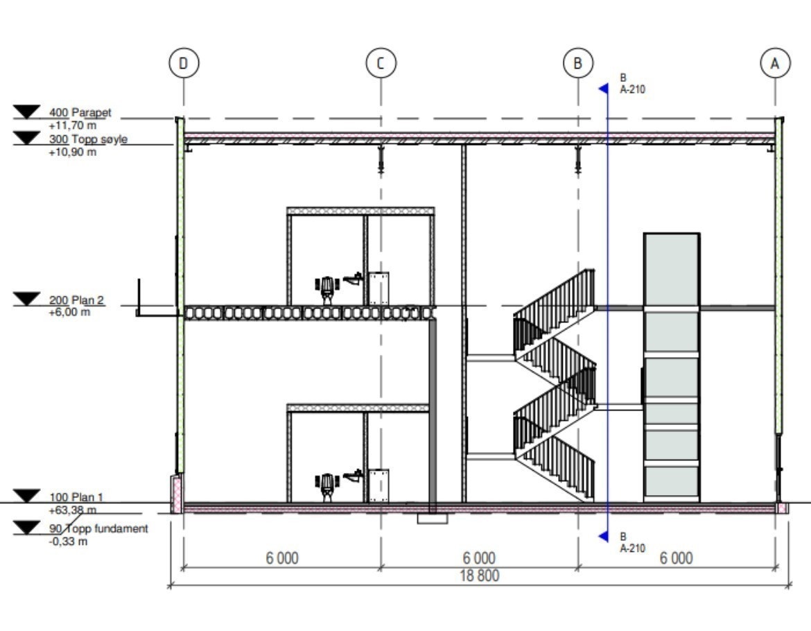
Det planlegges et nytt bygg over to etasjer i Leirvikflaten 17 d
Se tegninger av det som er planlagt.
Byggetid 1,5-2 år.
Hver etasje er på ca 560 kvm.
Ferdigsstillelse etter avtale
Se tegninger av det som er planlagt.
Byggetid 1,5-2 år.
Hver etasje er på ca 560 kvm.
Ferdigsstillelse etter avtale
NB: Knappen for å vise hele beskrivelsen har kun en visuell effekt.
NB: Knappen for å vise hele beskrivelsen har kun en visuell effekt.
Visning
Ta kontakt for å avtale visning.MNG Holding Bergen AS
Nærområdet
Annonsene kan være mangelfulle i forhold til lovpålagt opplysningsplikt. Før bindende avtale inngås oppfordres interessenter til å innhente komplett informasjon fra meglerforetaket, selger eller utleier.




