Bildegalleri

Rosenborgveien 3
Representativt kontor- og lagerlokale med gode fasiliteter.
Nøkkelinfo
- Areal
- 78 - 539 m²
- Bruttoareal
- 569 m²
- Tomteareal
- 3 626 m² (eiet)
- Byggeår
- 2009
- Energimerking
- C - Mørkegrønn
Type lokale
Fasiliteter
Arealspesifikasjon
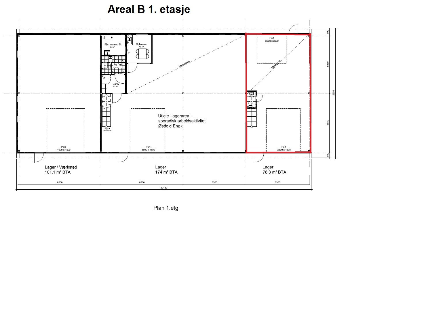
1. etg: 1 stk Lagerseksjon
1. etg: 117 kvm Lager
2. etg: 344 kvm Kontor i 2. etasje
3. etg: 78 kvm Kontor i 3. etasje
| Kort om eiendommen
Representative kontorer og lagerareal.
Godt inneklima, med ventilasjon med kjøling.
Parkering.
| Innhold
374 kvm kontorer i 2. etasje består av resepsjon, 10 enkeltkontor, 1 stort kontor med møtebord, 4 arbeidsplasser i åpent areal, 2 stk møterom og kjøkken.
78 kvm kontorer i 3. etasje består av åpent areal med kjøkkenkrok, 2 store kontorer.
117 kvm lagerlokale med mesanin og wc. Kjøreport (bxh): 3,5x4,5m. Takhøyde: 7.0/6.4m og 2.8m under mesanin,
Heis i kontorbygget sikrer enkel adkomst til alle etasjer.
| Beliggenhet
Eiendommen ligger i et nyere næringsområde på Øra, Fredrikstad, på østsiden av Glomma.
I området er det flere større prosessindustrier.
I tillegg til hovedbase for Borg Havn er det annen lettere industri og flere lager og transport-virksomheter i området.
Kun 2 minutter til Borg havn. Se www.borg-havn.no for nærmere opplysninger om havnen og tjenester som tilbys der.
Det er kun 20 minutters bilvei til Svinesund og en drøy time til Oslo.
| Adkomst
Avkjøring 5 fra E6 (Årumkrysset). Følg Rv 111/Sarpsborgveien retning mot Fredrikstad - over i Habornveien retning mot Frevar.
Ca 12 km fra E6 til eiendommen.
| Parkering
Rikelig med parkering på asfaltert område.
| Regulering
Reguleringsplan Øra Øst vedtatt 19.10.2000 (id 451).
Formål: Industri.
| Diverse
Andre leietakere i bygget;
Backe Østfold AS, Lille Special AS, Workshop Bemanning & Kompetanse AS, Viken Fiber AS, AFI Østsiden Vann og Varme AS, Erma Tak og Fasade AS samt Montal Systems AS.
| Oppvarming
Vannbåren varme via fjernvarme.
| Ventilasjon
Balansert ventilasjon med varmegjenvinning og kjøling.
| Energimerking
Ytterligere opplysninger om energimerking finner du på www.energimerking.no
| Lovanvendelse
Ved utleie vil meglers leiekontrakt bli benyttet. Husleielovens vil bare i begrenset utstrekning kunne påberopes av Leietaker. Kontakt vårt kontor for nærmere opplysninger og gjennomlesing av avtalen.
Utleier forbeholder seg her bl.a. retten til å kunne registrere utleievirksomheten i merverdiregisteret.
Eml. §§ 4-4, 6-2, 6-7, 6-10, 7-1 og 8-8 fravikes ved dette oppdraget.
Lov om hvitvasking
Eiendomsmeglere er underlagt lov om hvitvasking. Dette innebærer at oppdragsansvarlig har plikt til å melde fra til Økokrim om eventuelle mistenkelige transaksjoner.
Matrikkelinformasjon
Visning
Ta kontakt for å avtale visning.Metra Næringsmegling AS
Nærområdet
Annonseinformasjon
| FINN-kode | 429393024 |
|---|---|
| Sist endret | 29. sep. 2025 06:28 |
| Referanse | MTRA2.2178 |
Annonsene kan være mangelfulle i forhold til lovpålagt opplysningsplikt. Før bindende avtale inngås oppfordres interessenter til å innhente komplett informasjon fra meglerforetaket, selger eller utleier.

























