Bildegalleri

Velkommen til et moderne lagerbygg langs E6, Rygge
Moderne lager og kontor, god eksponering mot E6 v / Rygge flystasjon
Nøkkelinfo
- Areal
- 2 636 m²
- Bruttoareal
- 2 636 m²
- Bruksareal
- 2 500 m²
- Tomteareal
- 2 463 m²
- Byggeår
- 2018
- Overtakelse
- Eiendommen er ledig fra desember 2026
Type lokale
Fasiliteter
| Kort om eiendommen
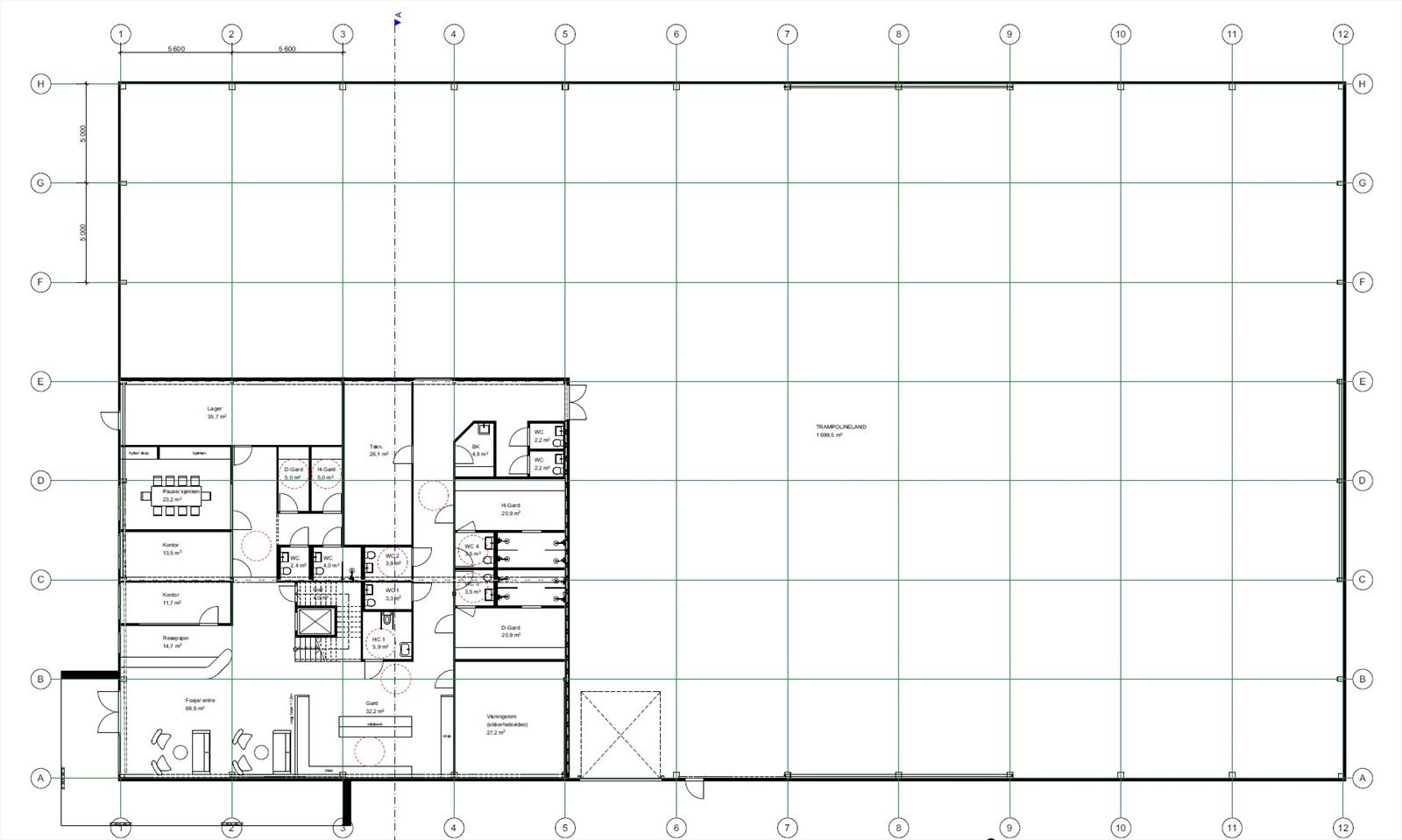
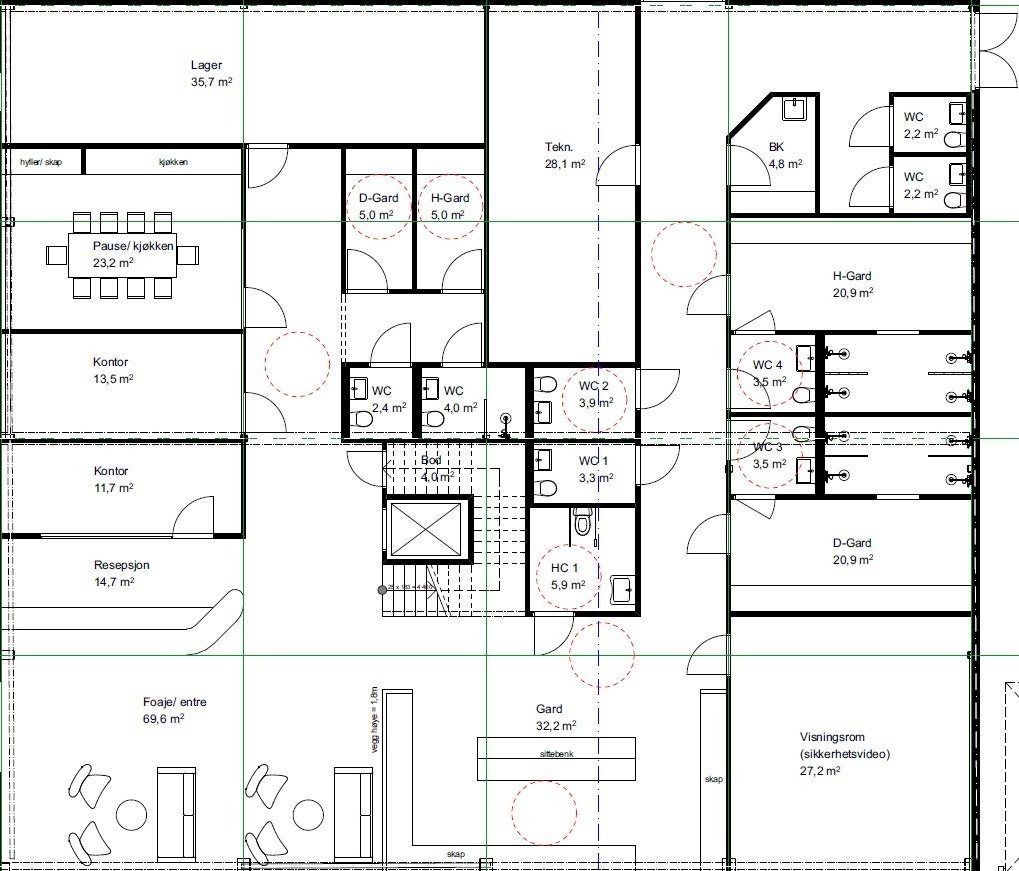
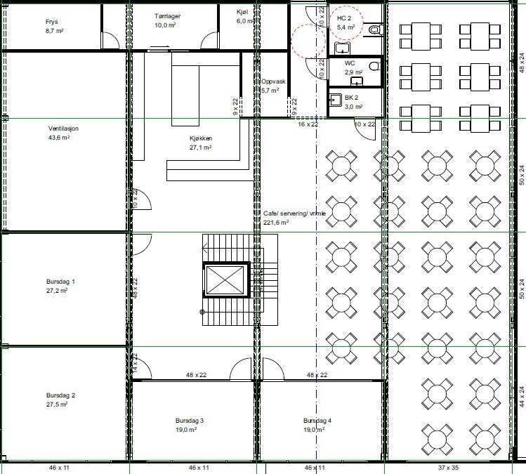
Moderne lagereiendom fra 2018 med samlet bygningsareal på ca. 2636 m² BTA, fordelt på 1780 m² BTA lager på ett plan med 8.2m fri takhøyde, og 856 m² BTA kontor over 2 plan. Kontordelen fremstår som lyse og funksjonelle lokaler egnet for en moderne administrasjon. Suveren eksponering mot E6. Overtagelse desember 2026.
| Beliggenhet
Eiendommen ligger i Ordfører Utnes vei 49, i Moss kommune (tidligere Rygge kommune), med en sentral plassering ved Rørskogen næringspark. Området er et etablert næringsområde med en rekke virksomheter innen logistikk, industri og handel, noe som gir et godt miljø for både lager- og kontordrift.
| Adkomst
Adkomsten er svært god, med kort vei til E6 og Ryggeveien (Rv. 118), som gir effektiv forbindelse både nordover mot Oslo og sørover mot Østfold og Sverige. Moss lufthavn Rygge ligger i umiddelbar nærhet, og det er også gode kollektivforbindelser til Moss sentrum og jernbanestasjonen. Eiendommen har romslige uteområder med god parkeringsdekning og manøvreringsplass for lastebiler.
| Energimerking
Energiklasse B
| Lovanvendelse
Ved utleie vil meglers leiekontrakt bli benyttet. Husleielovens vil bare i begrenset utstrekning kunne påberopes av Leietaker. Kontakt vårt kontor for nærmere opplysninger og gjennomlesing av avtalen.
Utleier forbeholder seg her bl.a. retten til å kunne registrere utleievirksomheten i merverdiregisteret.
Eml. §§ 4-4, 6-2, 6-7, 6-10, 7-1 og 8-8 fravikes ved dette oppdraget.
Lov om hvitvasking
Eiendomsmeglere er underlagt lov om hvitvasking. Dette innebærer at oppdragsansvarlig har plikt til å melde fra til Økokrim om eventuelle mistenkelige transaksjoner.
| Hvitvaskingsloven
Hvitvaskingsregelverk
I henhold til Lov av 6. mars 2009 nr. 11 om tiltak mot hvitvasking og terrorfinansiering (Hvitvaskingsloven) er megler pliktig å gjennomføre kundetiltak av både oppdragsgiver og kjøper.
Dette innebærer blant annet plikt for meglerforetaket til å bekrefte identiteten til kjøper på grunnlag av gyldig legitimasjon. Samt plikt til å foreta kontroll av eventuelle reelle rettighetshavere. Der kjøper opptrer i henhold til fullmakt må også fullmaktsgivers identitet bekreftes på grunnlag av gyldig legitimasjon. Kundetiltak av kjøper, skal senest skje på kontraktsmøtet.
Dersom budgiver opptrer i henhold til fullmakt, må fullmakten fremlegges samtidig som bud inngis. Dersom kjøper er en juridisk person, plikter kjøper å fylle ut og returnere egne kundekontrollskjemaer før kontraktsmøtet. Firmaattest eller fullmakt må fremlegges samtidig som det inngis bud.
Dersom kundetiltak ikke kan gjennomføres kan ikke meglerforetaket bistå med gjennomføring av handelen, herunder ikke foreta oppgjør. Meglerforetaket er videre forpliktet til å rapportere mistenkelige transaksjoner til Økokrim. Med mistenkelig transaksjon menes transaksjon som mistenkes å involvere utbytte fra straffbar handling eller som skjer som ledd i terrorfinansiering. Manglende mulighet for kundetiltak kan også være et forhold som gjør transaksjonen mistenkelig. Det kan ikke gjøres ansvar gjeldende motmeglerforetaket som følge av at meglerforetaket overholder sine plikter etter Hvitvaskingsloven.
Matrikkelinformasjon
Visning
Ta kontakt for å avtale visning.Metra Næringsmegling AS
Nærområdet
Annonseinformasjon
| FINN-kode | 428791549 |
|---|---|
| Sist endret | 14. okt. 2025 19:55 |
| Referanse | MTRA3.2590 |
Annonsene kan være mangelfulle i forhold til lovpålagt opplysningsplikt. Før bindende avtale inngås oppfordres interessenter til å innhente komplett informasjon fra meglerforetaket, selger eller utleier.





















