Bildegalleri

Kontorlokaler i Sakkestad Næringspark
Nøkkelinfo
- Areal
- 106 m²
- Bruttoareal
- 106 m²
- Tomteareal
- 8 112 m² (eiet)
- Etasje
- 3.
- Byggeår
- 2014
Type lokale
Fasiliteter
Kort om eiendommen
-Kontorfløy med cellekontor, møterom og åpent landskap
-Tilpasningsmuligheter
-Moderne kontorer i 3. etasje
Beliggenhet
Rennesøygata 10 ligger i et etablert næringsområde sør i Haugesund, nær Norheim og Raglamyr. med kort avstand til sentrum og gode forbindelser til resten av byen. Eiendommen er omgitt av ulike virksomheter, blant annet kontorer, servicebedrifter og serveringsstedeer, noe som gir et variert og levende nærmiljø. Beliggenheten gir enkel tilgang til daglige servicetilbud, og området har god infrastruktur med veiforbindelser mot E134 og øvrige bydeler. Dette gjør adressen attraktiv både for næringsvirksomhet og besøkende, samtidig som den er lett tilgjengelig for kunder, ansatte og samarbeidspartnere.
Innhold
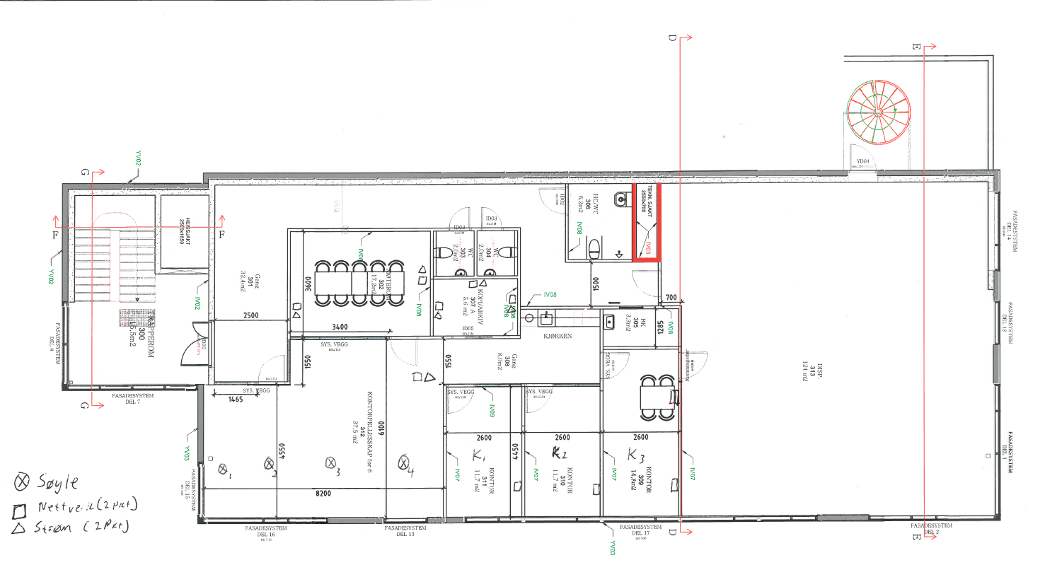
Lokalet har et samlet bruksareal på 106,5 m² og er godt tilrettelagt for kontorvirksomhet.
Det består av
-tre cellekontorer på henholdsvis 14,8 m², 11,7 m² og 11,7 m²,
-åpent kontorlandskap på 37,5 m²
-møterom på 17,2 m².
-gang med kjøkkenkrok på 8 m²
-kopirom på 5,6 m².
Planløsningen gir en god kombinasjon av private arbeidsplasser, felles arbeidsarealer og støttefunksjoner som møterom og kjøkken, noe som gjør lokalene fleksible og funksjonelle for både små og mellomstore bedrifter.
Fellesarealene har universell utforming med heis i et stort og lyst trapperom, samt to toaletter tilgjengelig på gangen, noe som gir god tilgjengelighet og brukervennlighet for alle.
Oppvarming
Balansert ventilasjon med individuell temperaturstyring i hvert rom.
Hvitvaskingsregelverk
Det følger av Hvitvaskingsloven at meglerforetaket er forpliktet til å foreta kundekontroll av begge parter i handelen. Kontrollen skjer løpende, og vil blant annet gjennomføres ved oppdragsinngåelse, budgivning, gjennomføring av oppgjør og ved eventuell forsterket mistanke.
Dersom slik kundekontroll ikke kan gjennomføres, er meglerforetaket pålagt å avstå fra gjennomføring av oppgjøret. Partene er selv ansvarlig for eventuelle merkostnader og ansvar dette kan medføre, uten at det kan anføres et kontraktsrettslig ansvar ovenfor meglerforetaket.
Meglerforetaket er forpliktet til å rapportere mistenkelige transaksjoner til Økokrim.
Matrikkelinformasjon
Meglerhuset Rele Haugesund AS
Nærområdet
Annonseinformasjon
| FINN-kode | 428790208 |
|---|---|
| Sist endret | 25. sep. 2025 14:56 |
| Referanse | 1-0387/25 |
Annonsene kan være mangelfulle i forhold til lovpålagt opplysningsplikt. Før bindende avtale inngås oppfordres interessenter til å innhente komplett informasjon fra meglerforetaket, selger eller utleier.



















