Bildegalleri

IMG_9580.JPEG
Svært sentrale og fine kontorlokaler i til leie
Nøkkelinfo
- Tomt
- Eiet
Type lokale
Fasiliteter
Beliggenhet
Bygget har en meget sentral beliggenhet like ved Ålesund Storsenter, dagligvarehandel og koselige lunsjplasser. Umiddelbar nærhet til kollektivtrafikk og Aksla parkering.
Inneholder
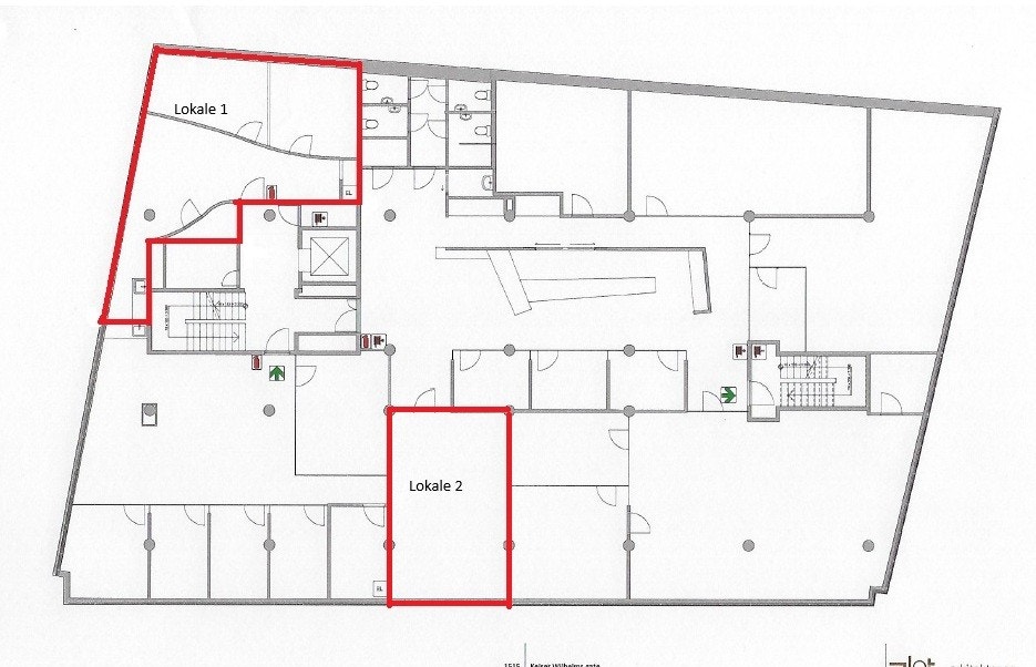
Lokalene ligger i 2. etasje i Keiser Wilhelms gate 24-26, og består av 2 arealer.
Lokale nr. 1 er på 66,4 kvm. Dette er et selvstendig kontorareal med alle fasiliteter, inkl. egen inngang, liten kjøkkenkrok og wc.
Med åpen løsning/kontorlandskap er det fint plass til 3-6 kontorplasser og et møterom.
Lokale 2 er på 37,6 kvm. Dette er også et selvstendig lokale, men her kan leietaker benytte felles kjøleskap og WC. Et fint lokale for
2 -4 kontorplasser i åpent landskap.
Visning
Ta kontakt for å avtale visning.
SUNNMØRE NÆRINGSMEGLING AS
Nærområdet
Annonseinformasjon
| FINN-kode | 428483456 |
|---|---|
| Sist endret | 23. sep. 2025 12:44 |
| Referanse | SMN2.2531 |
Annonsene kan være mangelfulle i forhold til lovpålagt opplysningsplikt. Før bindende avtale inngås oppfordres interessenter til å innhente komplett informasjon fra meglerforetaket, selger eller utleier.











