Bildegalleri

Hamar sentrum - Kontorlokaler i Strandgata mellom DNT og Follestad
Nøkkelinfo
- Areal
- 152 m²
- Tomt
- Eiet
- Etasje
- 1.
Type lokale
Kontor
Arealspesifikasjon
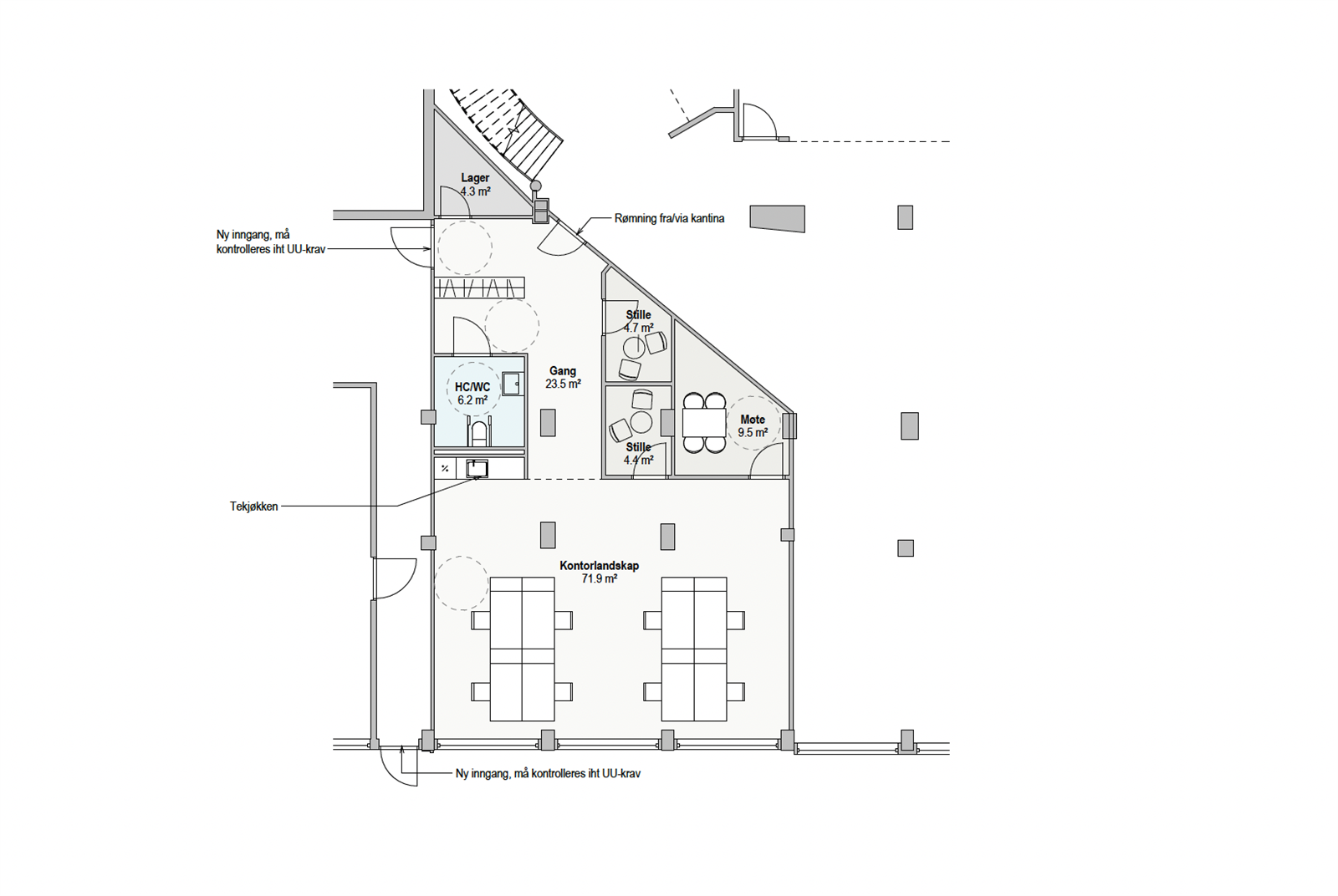
1. etg: 152 kvm Kontorlokaler
Kort om eiendommen
Nyoppussede kontorlokaler med høy standard er nå ledig for ny leietaker.
Lokalene er på 152 BTA og inneholder åpent kontorlandskap, stillerom, tekjøkken og WC. Her kan leietaker flytte rett inn!
Lokalene er på bakkeplan og har en flott utsikt mot parken og Mjøsa!
Lokalene er tilknyttet fjernvarme. Led-belysning i himling.
Bussholdeplass rett utenfor lokalene.Kort vei til togstasjon.
Parkering må avtales av leietaker direkte.
Matrikkelinformasjon
Kommunenr: 3403
Gårdsnr: 1
Bruksnr: 655
NB: Knappen for å vise hele beskrivelsen har kun en visuell effekt.
NB: Knappen for å vise hele beskrivelsen har kun en visuell effekt.
Visning
Ta kontakt for å avtale visning.
Innlandet Næringsmegling AS
Nærområdet
Annonseinformasjon
| FINN-kode | 428427422 |
|---|---|
| Sist endret | 23. sep. 2025 06:46 |
| Referanse | INM7.257 |
Annonsene kan være mangelfulle i forhold til lovpålagt opplysningsplikt. Før bindende avtale inngås oppfordres interessenter til å innhente komplett informasjon fra meglerforetaket, selger eller utleier.










