Bildegalleri

Attraktiv kontoreiendom med sterk synlighet i et veletablert nærings- og handelsområde
Moderne kontorlokaler i etablert næringsområde i Fredrikstad
Nøkkelinfo
- Areal
- 3 689 m²
- Bruttoareal
- 3 689 m²
- Tomteareal
- 6 302 m² (eiet)
- Etasje
- 3.
- Byggeår
- 2016
- Overtakelse
- Eiendommen står ledig fra 31.12.26.
Type lokale
| Kort om eiendommen
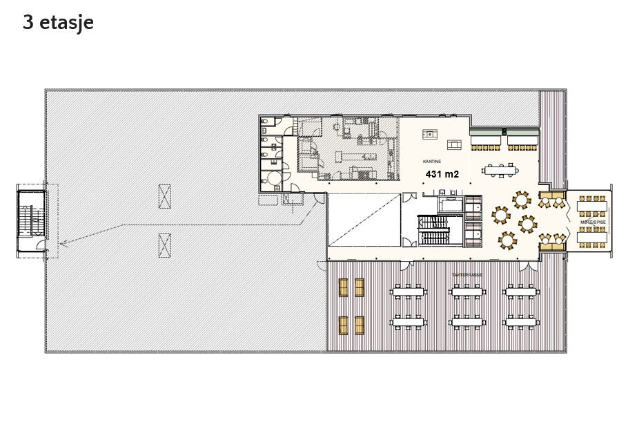
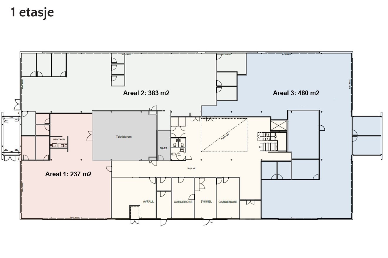
Kontorbygg på ca. 3 600 kvm, tilrettelagt for et effektivt og funksjonelt arbeidsmiljø. Bygget benyttes i dag av Visma, som fraflytter 31.12.2026. Lokalene kan leies samlet eller deles opp, og det er mulighet for tilpasning til publikumsrettet virksomhet/butikk i første etasje. Se alternativ plantegning.
Arealer, eksisterende:
- 1. etasje: 1 629 kvm
- 2. etasje: 1 629 kvm
- 3. etasje: 431 kvm
| Bebyggelse
Moderne bygningsmasse med tidsriktig arkitektur og høy standard.
| Eiendommens potensiale
Lokalene kan deles opp og tilasses den enkelte leietaker.
| Innhold
Lokalene er fleksibelt utformet og kan tilpasses med åpne landskap, cellekontorer eller kombinasjonsløsninger. Planløsningene gir god takhøyde og naturlig dagslys. Det er integrert møterom i ulike størrelser, med mulighet for AV-utstyr og videokonferanse, samt stillerom og samtalerom for skjermet arbeid. Eiendommen har resepsjonsområde med lobby og venteplass for besøkende. Videre finnes felles kantine/pauserom, garderober og dusjfasiliteter.
Tilleggstjenester:
- Felles møteromsenter
- Mulighet for bemannet resepsjon
- Renhold og drift inkludert
- Felles lounge eller coworking-område
| Beliggenhet
Eiendommen ligger sentralt mellom Fredrikstad og Sarpsborg, midt i et veletablert næringsområde med høy eksponering mot Rv. 109 (over 25 000 biler daglig). Området utgjør en næringsklynge med kontor-, lager- og handelsbygg, og huser både lokale virksomheter og sterke aktører som XXL, Bohus, Power, Plantehallen og Rusta. Nærheten til Østfoldhallene, dagligvare, treningssenter, serveringssteder og øvrige servicetilbud gjør området til et attraktivt og synlig knutepunkt for bedrifter som ønsker profilering og tilgjengelighet.
| Adkomst
Eiendommen har en sentral beliggenhet med enkel adkomst fra både E6 og Rv. 109.
| Parkering
Rikelig med bil- og gjesteparkering på eiendommen, inkludert ladepunkter for elbil. God sykkelparkering med enkel adkomst til gang- og sykkelnettet.
| Tekniske installasjoner
- Balansert ventilasjon med varmegjenvinning, individuell temperaturregulering
- LED-belysning med bevegelsessensorer og tilpasset lysstyrke.
- Fiber/internett, datakabling.
| Ventilasjon
Effektiv balansert ventilasjon og moderne belysningsløsninger. Bygget er energieffektivt og miljøsertififsert BREEAM IN Use Very Good.
| Energimerking
Energimerke C, med ambisjon om forbedring til B eller A
| Offentlig kommunikasjon
Området har svært god kollektivdekning via Glommaringen med bussavganger hvert 10. minutt, og er ellers godt tilrettelagt for bil, elbil og sykkel. Glommastien gir sammenhengende gang- og sykkelforbindelse helt fra Fredrikstad togstasjon og sentrum, og kommunen planlegger ytterligere utbygging av gang- og sykkelvei langs Dikeveien for å styrke tilgjengeligheten for myke trafikanter.
| Lovanvendelse
Ved utleie vil meglers leiekontrakt bli benyttet. Husleielovens vil bare i begrenset utstrekning kunne påberopes av Leietaker. Kontakt vårt kontor for nærmere opplysninger og gjennomlesing av avtalen.
Utleier forbeholder seg her bl.a. retten til å kunne registrere utleievirksomheten i merverdiregisteret.
Eml. §§ 4-4, 6-2, 6-7, 6-10, 7-1 og 8-8 fravikes ved dette oppdraget.
Lov om hvitvasking
Eiendomsmeglere er underlagt lov om hvitvasking. Dette innebærer at oppdragsansvarlig har plikt til å melde fra til Økokrim om eventuelle mistenkelige transaksjoner.
| Hvitvaskingsloven
Hvitvaskingsregelverk
I henhold til Lov av 6. mars 2009 nr. 11 om tiltak mot hvitvasking og terrorfinansiering (Hvitvaskingsloven) er megler pliktig å gjennomføre kundetiltak av både oppdragsgiver og kjøper.
Dette innebærer blant annet plikt for meglerforetaket til å bekrefte identiteten til kjøper på grunnlag av gyldig legitimasjon. Samt plikt til å foreta kontroll av eventuelle reelle rettighetshavere. Der kjøper opptrer i henhold til fullmakt må også fullmaktsgivers identitet bekreftes på grunnlag av gyldig legitimasjon. Kundetiltak av kjøper, skal senest skje på kontraktsmøtet.
Dersom budgiver opptrer i henhold til fullmakt, må fullmakten fremlegges samtidig som bud inngis. Dersom kjøper er en juridisk person, plikter kjøper å fylle ut og returnere egne kundekontrollskjemaer før kontraktsmøtet. Firmaattest eller fullmakt må fremlegges samtidig som det inngis bud.
Dersom kundetiltak ikke kan gjennomføres kan ikke meglerforetaket bistå med gjennomføring av handelen, herunder ikke foreta oppgjør. Meglerforetaket er videre forpliktet til å rapportere mistenkelige transaksjoner til Økokrim. Med mistenkelig transaksjon menes transaksjon som mistenkes å involvere utbytte fra straffbar handling eller som skjer som ledd i terrorfinansiering. Manglende mulighet for kundetiltak kan også være et forhold som gjør transaksjonen mistenkelig. Det kan ikke gjøres ansvar gjeldende motmeglerforetaket som følge av at meglerforetaket overholder sine plikter etter Hvitvaskingsloven.
Matrikkelinformasjon
Visning
Ta kontakt for å avtale visning.Metra Næringsmegling AS
Nærområdet
Annonseinformasjon
| FINN-kode | 427378276 |
|---|---|
| Sist endret | 18. sep. 2025 09:05 |
| Referanse | MTRA2.2568 |
Annonsene kan være mangelfulle i forhold til lovpålagt opplysningsplikt. Før bindende avtale inngås oppfordres interessenter til å innhente komplett informasjon fra meglerforetaket, selger eller utleier.































