Bildegalleri

Produksjon, lager, kontor & uteareal på bakkeplan
Nøkkelinfo
- Areal
- 290 - 3 800 m²
Type lokale
Fasiliteter
Om eiendommen
Arealene
- Uteareal 500-3500 kvm.
- U.etg Lager/garbderobe 260 kvm tilpasses etter leietakers behov
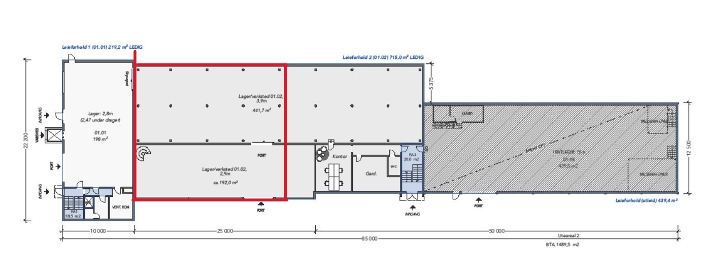
- 1.etg Høytlager/lager 970 kvm med kjøreporter
- 2.etg Lager/kombi/ produksjon 1030 kvm med vareheis
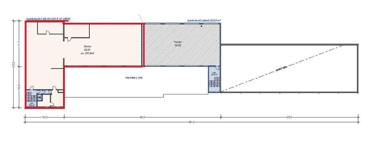
- 3.etg Lager/kombi/ produksjon 420 kvm med vareheis
Spesielt 1. og 2. etasje egner seg for industrielt bruk. Godt miljø for entreprenørvirksomhet.
Godt med uteareal for lagring. Det er mulig å sette opp utetelt.
Bygget er egnet for en eller flere leietakere.
Beliggenhet
Eiendommen ligget sentralt plassert på Alnabru/ Furuset. området er å betrakte som det mest sentrale lager- og kombinasjonsområdet i Osloregionen. Fra eiendommen er det umiddelbar nærhet til Alnabruterminalen.
- Alnabruterminalen: 6 min
- Gardemoen: 27 min
- Lørenskog: 8 min
- Oslo sentrum: 13 min
Adkomst
Kjør av i fra Strømsveien og inn på Gamle Leirdals vei. Eiendommen ligger på høyre hånd. Det er lett adkomst til E6, med forbindelse nordover mot Gardermoen og sørover mot Vestby, samt E18.
Busstopp Ikea Furuset er 3 minutters gange unna eiendommen.
Standard
Gårdeier har gjennomført utvendig fullrehablitering av bygget og er motivert for en større oppgradering innvendig, etter leietakers behov. Dette inkluderer overflater, LED belysning, hurtiggående porter, moderne kontorfasiliteter, nye tekniske anlegg og nytt fasadeuttrykk.
Bygget har god strømtilførsel for ulikt bruk av lokalene og utearealene. Tilpasninger gjøres i samråd med leietaker.
Innhold
Uteareal
Det er større uteareal av forskjellige størrelser rundt bygget. Det er naturlig å leie størrelser fra 1400-1600 kvm.
U.etg
455 kvm fordelt på tre områder. Arealene egner seg til mindre lager, pauserom/møterom eller garderober. Adkomst via trapp.
1.etg
Lagerarealer med takhøyde fra 4- 7,5 meter, mulighet for mindre kontorer og garderobe. Lokalene har i dag 3 store porter og to interntrapper til byggets andre og tredje etasje. Utearealet går rundt hele bygget.
Dersom det er behov for ekstra lagring er det mulig å leie 830 kvm med 4 meter takhøyde i naboeiendommen og opptil 15 garasjer.
2.etg
Egnet for kontor, fellesområde, lavtlager eller produksjon. Adkomst vil være via første etasje eller via vareheis for enkel drift.
3.etg
Egnet for kontor, fellesområde, lavtlager eller lettere produksjon. Adkomst vil være via første etasje eller via vareheis for enkel drift.
Visning
Ta kontakt for å avtale visning.PROPCAP MANAGEMENT AS
Nærområdet
Annonsene kan være mangelfulle i forhold til lovpålagt opplysningsplikt. Før bindende avtale inngås oppfordres interessenter til å innhente komplett informasjon fra meglerforetaket, selger eller utleier.






