Bildegalleri

Ledig lager og kontor/showrom i Vollaveien på Alnabru, like ved Alna senter
Lager i ulike størrelser og lyse kontorlokaler/showrom - sentralt beliggende på Alnabru
Nøkkelinfo
- Areal
- 94 - 1 500 m²
- Energimerking
- G - Rød
- Overtakelse
- Nå
Type lokale
Fasiliteter
Om eiendommen
Ledig lager
1. etasje | 1 500 kvm BTA lager.
1. etasje | 873 kvm BTA lager
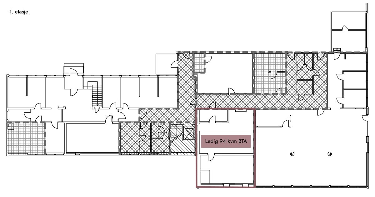
1. etasje | 94 kvm BTA lager
U. etasje | 97 kvm BTA lager
U. etasje | 339 kvm BTA lager med stor vareheis
Ledig kontor
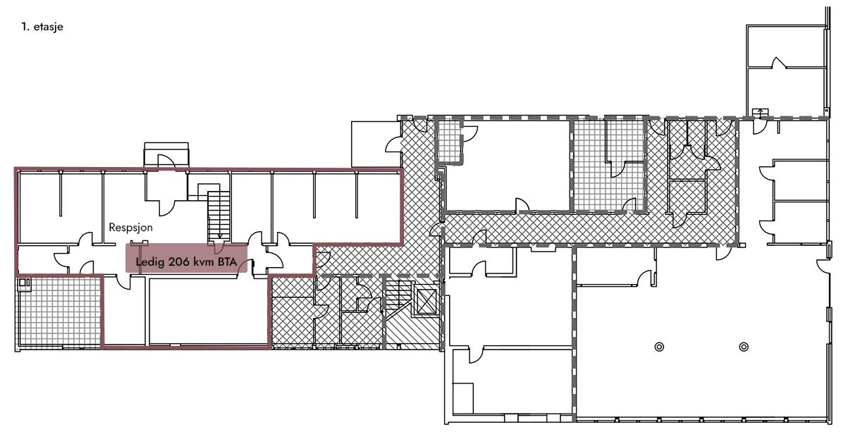
1. etasje | 206 kvm BTA kontor.
2. etasje | 295 kvm BTA kontor.
2. etasje | 318 kvm BTA kontor
3. etasje | 270 kvm BTA kontor
Lager
For de som har behov for lagerplass i tillegg til kontor, har vi ledig et høytlager på 1 500 kvm BTA i 1. etasje. Lageret har to høye kjøreporter og et eksklusivt låsbart uteareal på 600 kvm.
I tillegg tilbyr vi oppvarmede lagerarealer på henholdsvis 97 kvm BTA og 339 kvm BTA, en halv etasje under bakken i Vollaveien 15-19. Begge lagerarealene nås via trapp og en ett-tonns vareheis med plass til to paller. Heisen går direkte fra bakkeplan, og det er mulig å kjøre helt frem til heisdøren.
Videre har vi til leie et større lager på 873 kvm BTA og et mindre lagerrom på 94 kvm BTA - begge i 1. etasje.
Parkering kan leies på eiendommens uteområde.
Kontor/showrom
Vi tilbyr funksjonelle og lyse kontorlokaler/showrom i ulike størrelser.
Kontorlokalene har rikelig med dagslys/gjennomlys. Nåværende utforming består hovedsakelig av cellekontorer, men kan tilpasses etter ny leietakers behov. Leietakere har tilgang til felles dusj og HC-toalett i byggets 1. etasje. Bygget har egen inngang til kontorlokalene og personheis til alle etasjer.
Beliggenhet
Vollaveien 20A utgjør et av flere lager-/kontorbygg på området som grenser til Alnaelven. Eiendommen ligger sentralt plassert i forhold til populært handelssentrum på Alnabru, mellom Alna senter og Alnabruterminalen.
Adkomst
Standard
Kontorlokalene har ventilasjon samt kjøling via fancoils. Oppvarming via sentralfyr.
Matrikkelinformasjon
Visning
Ta kontakt for å avtale visning.Eiendomsspar AS
Nærområdet
Annonsene kan være mangelfulle i forhold til lovpålagt opplysningsplikt. Før bindende avtale inngås oppfordres interessenter til å innhente komplett informasjon fra meglerforetaket, selger eller utleier.


























