Bildegalleri

Inngangsparti Nedre Vollgate 9
Nyoppussede lokaler i Kvadraturen - takterrasse, bedriftsrestaurant, felles møterom og innendørs sykkelparkering
Nøkkelinfo
- Areal
- 609 - 2 153 m²
- Tomt
- Eiet
Type lokale
Arealspesifikasjon
5. etg: 857 kvm 5. etasje
6. etg: 687 kvm 6. etasje
7. etg: 609 kvm 7. etasje
Beliggenhet
Nedre Vollgate 9 ligger like ved Stortinget og med en attraktiv beliggenhet i Kvadraturen. Kvadraturen kjennetegnes av sin nærhet til handels- og servicebutikker, samt offentlig kommunikasjon. Like i nærheten har man et stort utvalg restauranter og caféer, som Brasserie Hansken, Sentralen, Café Skansen, Kaffebrenneriet, Stockfleths mv.
Nærmeste kollektivknutepunkt er Stortinget T-banestasjon og Wessels plass med trikk- og bussforbindelse.
Flere eiendommer i Kvadraturen er konvertert til boliger, som er med på å skape et pulserende gateplan også etter arbeidstid.
Kontraskjæret er nærmeste park og ligger 1 minutt fra eiendommen. Her arrangeres sosiale arrangementer i forbindelse med sluttspill i fotball, TV-arrangementer, konserter mv.
Inneholder
Lokalene ble nyoppusset i 2018 og har et tidsriktig uttrykk. Det er valgt lyse overflater, takhøydene er maksimert og det er montert innfelte LED lyspaneler.
7. etasje - 609 kvm BTA
Byggets toppetasje - med takterrasse og attraktiv utsikt ut over byens tak.
6. etasje - 687 kvm BTA
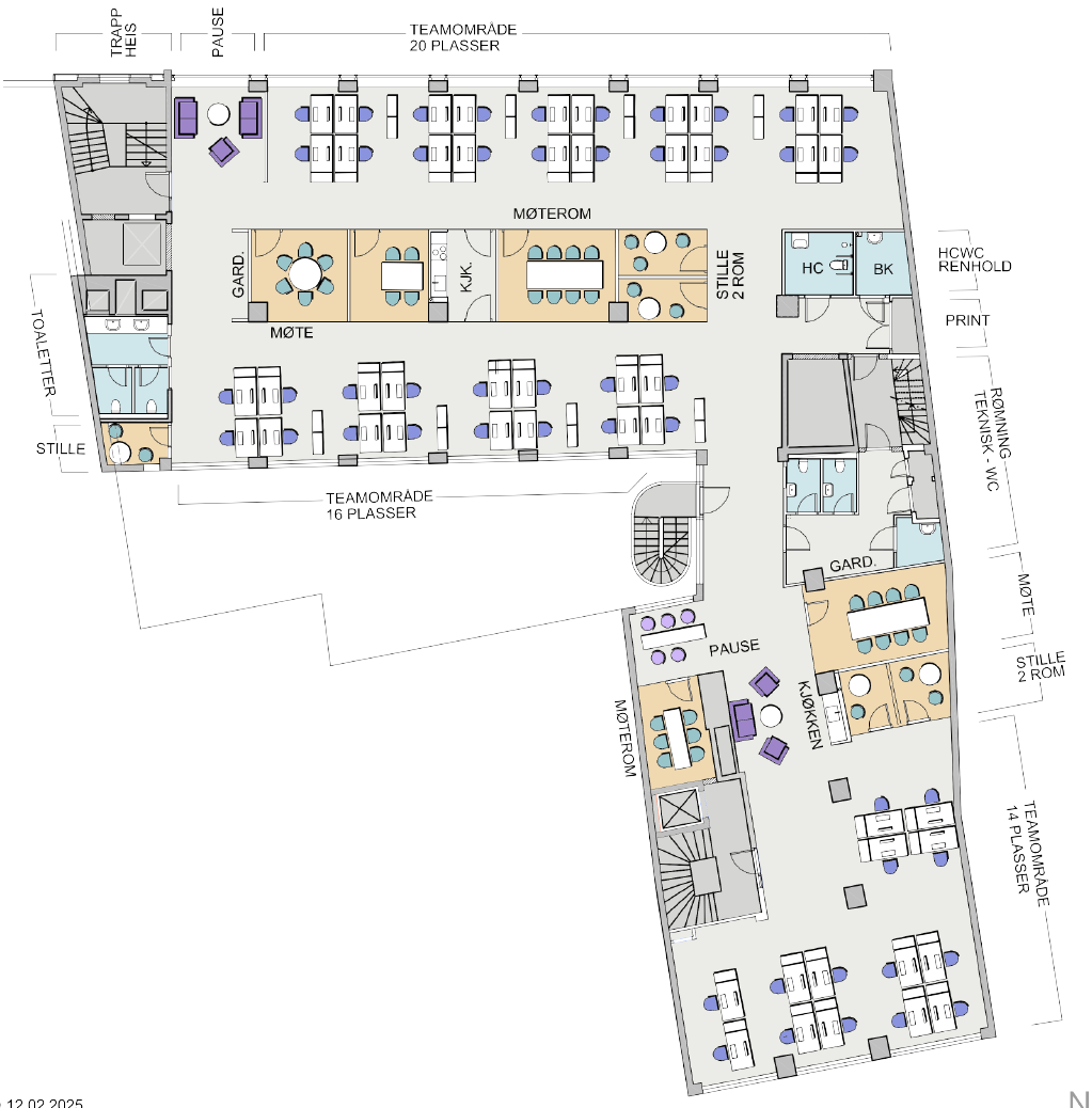
Lokalet ligger i en av toppetasjene og har flott utsikt til Rådhuset og gode lysforhold. Lokalet har en smart møbleringsløsning med møterom etablert direkte fra hovedinngangspartiet i etasjen med en tydelig ekstern og intern sone.
Passer for ca 40 arbeidsplasser med tillegg av flere møterom og stillerom. Lokalet har flere aktivitetsbaserte arbeidsplasser, touch-down og sofagrupper.
Flotte attraktive og solrike terrasser ut mot Nedre Vollgate og Øvre Vollgate.
5. etasje - 857 kvm BTA
Egner seg for 40-50 personer med tilhørende møterom, stillerom mv.
4. etasje - utleid
1. etasje - 293 kvm BTA (dette er en 2. etasje, da inngangspartiet ligger i 0. etasje)
Flotte kontorlokaler for 12-16 personer. Lokalet er innredet med flere stillerom og møterom.
Hovedinngangen er etablert i Nedre Vollgate 9, men det er fullt mulig med et sekundærinngangsparti fra Øvre Vollgate 6 (gjelder 5, 6. og 7. etasje).
Bebyggelse
- Nyoppusset inngangsparti
- Eksklusive takterrasser tilknyttet 6. og 7. etasje
- Bedriftsrestaurant
- Felles møterom for 14 personer
- Innendørs sykkelparkering
- Mulighet for tilgang til treningsrom, dusj og garderobe
- Energiklasse grønn C
- Parkering
Nedre Vollgate 9 ble oppført i 1938 og består av 7 kontoretasjer og underetasje. Eiendommen ble totalrenovert i 2010.
Nedre Vollgate 9 er sammenbundet med Øvre Vollgate 6.
Inngangspartiet og trappeoppgang er nylig ferdigstilt med oppgradering ved ny belysning og flott Stucco lustro (puss og maleteknikk fra Italia). Fremstår representativt for ansatte og besøkende.
Byggets felles personalrestaurant er etablert i det lyse og flotte atriet, som for øvrig er innglasset og har en solid takhøyde. Personalrestaurant serverer kalde og varme matretter, salatbar og muligheter for møtemat. I atriet ligger også felles møterom for 14 personer.
Eiendommen har felles sykkelparkering. Leietakere har mulighet til å benytte dusj og garderobe, samt treningsrom i naboeiendommen som er utstyrt med romaskin, tredemølle og manualer.
Mulighet for biloppstillingsplasser i garasjekjeller.
Matrikkelinformasjon
Visning
Ta kontakt for å avtale visning.DNB Næringsmegling AS Avd Oslo
Nærområdet
Annonseinformasjon
| FINN-kode | 425295741 |
|---|---|
| Sist endret | 31. okt. 2025 15:08 |
| Referanse | DNN5.223 |
Annonsene kan være mangelfulle i forhold til lovpålagt opplysningsplikt. Før bindende avtale inngås oppfordres interessenter til å innhente komplett informasjon fra meglerforetaket, selger eller utleier.













