Bildegalleri

Illustrasjonsbilder av lokalet
Oslo ved Tinghuset - Ledig toppetasje klar for leietakertilpasninger
Nøkkelinfo
- Areal
- 430 m²
- Etasje
- 5.
- Overtakelse
- Etter avtale
Type lokale
Fasiliteter
Om eiendommen
C. J. Hambros plass 5 ligger sentralt i Oslo sentrum vis a vis Tinghuset. Her er det umiddelbar nærhet til offentlig kommunikasjon som gjør det enkelt komme seg til kontoret for både ansatte og besøkende. Det er kun 5 minutters gange til Nationaltheatret stasjon med alt av offentlig kommunikasjon samt trikkeholdeplass rett utenfor kontordøren.
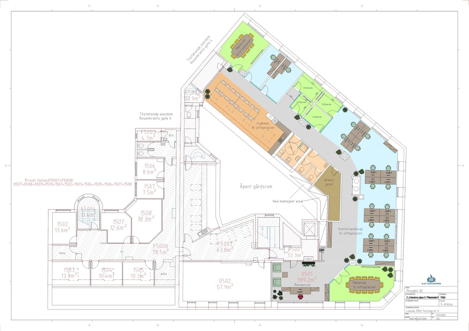
I dette populære bygget renoverer vi deler av toppetasjen til å bli en egen fløy. Lokalene kan klargjøres av gårdeier slik at det leveres nøkkelferdig etter leietakers ønsker og behov. Det er tegnet inn arbeidsplasser til 18-22 personer, men det er mulighet for flere arbeidsstasjoner om ønskelig.
Vi mener at dette kontorlokalet egner seg godt til:
- Advokatkontor
- Arkitekt
- Regnskap
- It
- Konsulent
Lokalet er på 374,4 kvm netto og 430 kvm brutto. Kontorlokalet har utsikt ut mot C.J. Hambros plass og Tinghuset.
Eiendommen har presentabelt inngangsparti og heis. Det siste året har eiendommen blant annet fått en fasadeoppussing, nye vinduer og nytt ventilasjonsanlegg,
Ta kontakt for hyggelig prat og hvilke muligheter vi kan tilby.
Visning
Ta kontakt for å avtale visning.
Thon Eiendom
Stig Christiansen
Nærområdet
Annonseinformasjon
| FINN-kode | 424912816 |
|---|---|
| Sist endret | 11. nov. 2025 15:20 |
| Referanse | Eline Høyte Tofte |
Annonsene kan være mangelfulle i forhold til lovpålagt opplysningsplikt. Før bindende avtale inngås oppfordres interessenter til å innhente komplett informasjon fra meglerforetaket, selger eller utleier.
















