Bildegalleri

Rudskogenveien 84
Rudskogen - Lager-/verkstedarealer med tilhørende kontordel til leie
Nøkkelinfo
- Areal
- 200 m²
- Bruttoareal
- 200 m²
- Tomteareal
- 2 051 m² (eiet)
- Byggeår
- 2021
Type lokale
| Kort om eiendommen
Moderne lager-/verkstedarealer med tilhørende kontordel. Fri takhøyde på ca. 7,5m.
| Bebyggelse
Nyere lager-/verkstedbygg. Moderne bygningsmasse oppført med bæresystem i stålkonstruksjoner, og isolerte stålkassetter.
| Innhold
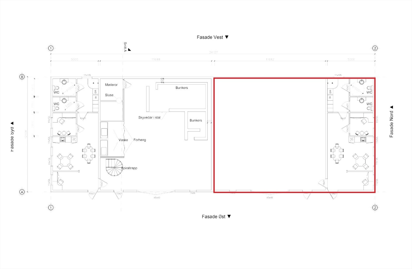
Nyere lager-/verkstedbygg. Eiendommens ledige arealer utgjør ca. 200 kvm. fordelt på lager og kontor.
Innhold:
Ca. 150 kvm. lager-/verksted med kjøreport. Innvendig fri takhøyde på ca. 7,5m
Ca. 50 kvm. kontordel med åpent kontor, kjøkken, toaletter og lager.
Det er i tillegg lagringsmuligheter over kontordelen.
| Beliggenhet
Eiendommen ligger ved Rudskogen Motorsenter og grenser til Sarpsborg kommune.
Forholdsvis nytt etablert næringsområde. Området er i sterk utvikling og det etableres flere lager- og distribusjons- bedrifter. Meget enkel adkomst fra Rv22.
27,5 km til E18 ved Mysen via Rv22
18 km til E6 ved Årum syd for Sarpsborg.
| Adkomst
Enkel adkomst fra Rv22.
| Parkering
Parkering på eiendommens tomt.
| Regulering
Nasjonal arealplanID: 3120_20080001
Plannavn: Rudskogen Motorsenter/Næringsområde
Ikrafttredelsesdato: 09.04.2008
Arealformål: Industri og lager
| Energimerking
Energimerking foreligger ikke.
Ytterligere opplysninger om energimerking finner du på www.energimerking.no
| Lovanvendelse
Ved utleie vil meglers leiekontrakt bli benyttet. Husleielovens vil bare i begrenset utstrekning kunne påberopes av Leietaker. Kontakt vårt kontor for nærmere opplysninger og gjennomlesing av avtalen.
Utleier forbeholder seg her bl.a. retten til å kunne registrere utleievirksomheten i merverdiregisteret.
Eml. §§ 4-4, 6-2, 6-7, 6-10, 7-1 og 8-8 fravikes ved dette oppdraget.
Lov om hvitvasking
Eiendomsmeglere er underlagt lov om hvitvasking. Dette innebærer at oppdragsansvarlig har plikt til å melde fra til Økokrim om eventuelle mistenkelige transaksjoner.
| Hvitvaskingsloven
Hvitvaskingsregelverk
I henhold til Lov av 6. mars 2009 nr. 11 om tiltak mot hvitvasking og terrorfinansiering (Hvitvaskingsloven) er megler pliktig å gjennomføre kundetiltak av både oppdragsgiver og kjøper.
Dette innebærer blant annet plikt for meglerforetaket til å bekrefte identiteten til kjøper på grunnlag av gyldig legitimasjon. Samt plikt til å foreta kontroll av eventuelle reelle rettighetshavere. Der kjøper opptrer i henhold til fullmakt må også fullmaktsgivers identitet bekreftes på grunnlag av gyldig legitimasjon. Kundetiltak av kjøper, skal senest skje på kontraktsmøtet.
Dersom budgiver opptrer i henhold til fullmakt, må fullmakten fremlegges samtidig som bud inngis. Dersom kjøper er en juridisk person, plikter kjøper å fylle ut og returnere egne kundekontrollskjemaer før kontraktsmøtet. Firmaattest eller fullmakt må fremlegges samtidig som det inngis bud.
Dersom kundetiltak ikke kan gjennomføres kan ikke meglerforetaket bistå med gjennomføring av handelen, herunder ikke foreta oppgjør. Meglerforetaket er videre forpliktet til å rapportere mistenkelige transaksjoner til Økokrim. Med mistenkelig transaksjon menes transaksjon som mistenkes å involvere utbytte fra straffbar handling eller som skjer som ledd i terrorfinansiering. Manglende mulighet for kundetiltak kan også være et forhold som gjør transaksjonen mistenkelig. Det kan ikke gjøres ansvar gjeldende motmeglerforetaket som følge av at meglerforetaket overholder sine plikter etter Hvitvaskingsloven.
Matrikkelinformasjon
Visning
Ta kontakt for å avtale visning.Metra Næringsmegling AS
Nærområdet
Annonseinformasjon
| FINN-kode | 424905836 |
|---|---|
| Sist endret | 12. sep. 2025 08:21 |
| Referanse | MTRA2.2560 |
Annonsene kan være mangelfulle i forhold til lovpålagt opplysningsplikt. Før bindende avtale inngås oppfordres interessenter til å innhente komplett informasjon fra meglerforetaket, selger eller utleier.














