Bildegalleri

Attraktive næringslokaler til leie sentralt ved Mysen stasjon
Nøkkelinfo
- Areal
- 1 000 - 1 100 m²
- Etasje
- 1.
- Overtakelse
- Etter avtale.
Type lokale
Kontor
Butikk/Handel
Lager/Logistikk
Serveringslokale/Kantine
Undervisning/Arrangement
Andre
Om eiendommen
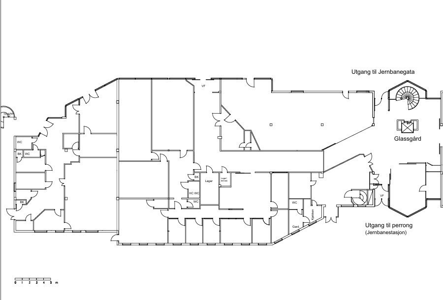
Nå har du muligheten til å leie attraktive næringslokaler med svært sentral beliggenhet i Mysen, rett ved jernbanestasjonen. Lokalene ligger i byggets 1. etasje, med enkel adkomst og svært gode eksponeringsmuligheter mot gate.
Arealet er fleksibelt og kan tilpasses ulike behov. Det egner seg godt for virksomheter innen blant annet:
- Butikk og handel
- Kontor (åpne løsninger eller cellekontorer)
- Helse og velvære
- Lager/logistikk
- Servering/kantine
- Undervisning og arrangement
Lokalene fremstår som arealeffektive og egner seg både for etablerte bedrifter og nye aktører som ønsker sentral plassering og synlighet.
Nøkkelinformasjon:
- Svært sentral beliggenhet ved Mysen stasjon
- Høy synlighet og gode profileringsmuligheter
- Fleksible planløsninger og tilpasningsmuligheter
- God tilgjengelighet med enkel adkomst i 1. etasje
- Gode parkeringsmuligheter i umiddelbar nærhet
- Kort avstand til kollektivtransport, butikker og øvrige servicetilbud
Beliggenhet
Eiendommen ligger midt i Mysen sentrum, med kort gangavstand til togstasjon, busstopp, handel og andre servicetilbud. Beliggenheten er ideell for virksomheter som ønsker høy tilgjengelighet for både ansatte og kunder.
Leieforhold
Leiepris etter nærmere avtale.
Ta kontakt for ytterligere informasjon eller for å avtale visning.
Arealet er fleksibelt og kan tilpasses ulike behov. Det egner seg godt for virksomheter innen blant annet:
- Butikk og handel
- Kontor (åpne løsninger eller cellekontorer)
- Helse og velvære
- Lager/logistikk
- Servering/kantine
- Undervisning og arrangement
Lokalene fremstår som arealeffektive og egner seg både for etablerte bedrifter og nye aktører som ønsker sentral plassering og synlighet.
Nøkkelinformasjon:
- Svært sentral beliggenhet ved Mysen stasjon
- Høy synlighet og gode profileringsmuligheter
- Fleksible planløsninger og tilpasningsmuligheter
- God tilgjengelighet med enkel adkomst i 1. etasje
- Gode parkeringsmuligheter i umiddelbar nærhet
- Kort avstand til kollektivtransport, butikker og øvrige servicetilbud
Beliggenhet
Eiendommen ligger midt i Mysen sentrum, med kort gangavstand til togstasjon, busstopp, handel og andre servicetilbud. Beliggenheten er ideell for virksomheter som ønsker høy tilgjengelighet for både ansatte og kunder.
Leieforhold
Leiepris etter nærmere avtale.
Ta kontakt for ytterligere informasjon eller for å avtale visning.
NB: Knappen for å vise hele beskrivelsen har kun en visuell effekt.
NB: Knappen for å vise hele beskrivelsen har kun en visuell effekt.
Visning
Ta kontakt for å avtale visning.
T. Kolstad Eiendom AS
- www.tkeiendom.no -
Nærområdet
Annonsene kan være mangelfulle i forhold til lovpålagt opplysningsplikt. Før bindende avtale inngås oppfordres interessenter til å innhente komplett informasjon fra meglerforetaket, selger eller utleier.

























