Bildegalleri

Fasade mot gårdsplass
Lager/industrilokaler til leie i Ørsta
Nøkkelinfo
- Areal
- 420 - 1 235 m²
- Energimerking
- F - Rød
Type lokale
Produksjon/Industri
Lager/Logistikk
Om eiendommen
Lager/industrilokaler til leie i etablert industriområde med Bygger'n Ørsta og Vinjevoll Rør som nærmeste nabo.
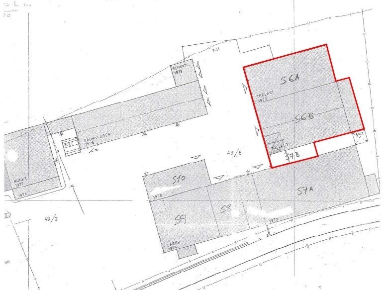
S6A - Lagerhall ca. 420 m
S6B - Produksjonshall ca. 755 m² inkl. kontorsone på ca. 90 m² over to plan.
S7B - Ekspedisjonsareal ca. 60 m²
Produksjonshallen er isolert og har oppvarming via varmepumpe, mens lagerhallen er et uisolert kaldtlager. Utvending kjøreport inn til både produksjonshall og lagerhall, samt innvendig skyveport mellom hallene.
Produksjonslokalet er utstyrt med traverskran.
S6A - Lagerhall ca. 420 m
S6B - Produksjonshall ca. 755 m² inkl. kontorsone på ca. 90 m² over to plan.
S7B - Ekspedisjonsareal ca. 60 m²
Produksjonshallen er isolert og har oppvarming via varmepumpe, mens lagerhallen er et uisolert kaldtlager. Utvending kjøreport inn til både produksjonshall og lagerhall, samt innvendig skyveport mellom hallene.
Produksjonslokalet er utstyrt med traverskran.
Matrikkelinformasjon
Kommunenr: 1520
Gårdsnr: 49
Bruksnr: 6
NB: Knappen for å vise hele beskrivelsen har kun en visuell effekt.
NB: Knappen for å vise hele beskrivelsen har kun en visuell effekt.
Visning
Ta kontakt for å avtale visning.E.A. Smith AS
Nærområdet
Annonseinformasjon
| FINN-kode | 420508587 |
|---|---|
| Sist endret | 11. aug. 2025 06:36 |
| Referanse | Utleie Ørsta |
Annonsene kan være mangelfulle i forhold til lovpålagt opplysningsplikt. Før bindende avtale inngås oppfordres interessenter til å innhente komplett informasjon fra meglerforetaket, selger eller utleier.












