Bildegalleri

Lokalet i 2.etg arealnr 0202
Inaktiv
Oslo sentrum - Kontorlokaler til leie i 2. og 3 etg. Kun 2 minutters gange fra Oslo S
Nøkkelinfo
- Areal
- 217 m²
- Etasje
- 3.
- Overtakelse
- Etter avtale
Type lokale
Kontor
Fasiliteter
Bredbåndstilknytning
Heis
Om eiendommen
Eiendommen ligger i Brugata med umiddelbar nærhet til Oslo S, Flytogterminalen og Bussterminalen. Det er flere parkeringshus i umiddelbar nærhet, bl.a i Gunerius og ved Oslo Spektrum. Eiendommen ligger i krysset Stenersgata og Brugata mot Lilletorvet.
Kontorlokalene holder en enkel standard som reflekteres i leien. Lokalene leies "as-is" med en 3 års leiekontrakt med 6 mnd gjensidig oppsigelse. Eiendommen har heis.
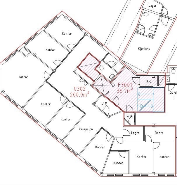
Ledige kontorarealer
- Arealnr 202 i 2.etg er på 186,9 kvm netto / 217,2 kvm brutto. Se bilder
- Arealnr 302 i 3.etg er på 141 kvm netto / 217,2 kvm brutto. Se bilder
NB: Knappen for å vise hele beskrivelsen har kun en visuell effekt.
NB: Knappen for å vise hele beskrivelsen har kun en visuell effekt.
Visning
Ta kontakt for å avtale visning.
Thon Eiendom
Vi hjelper deg å lykkes
Nærområdet
Annonseinformasjon
| FINN-kode | 420506789 |
|---|---|
| Sist endret | 25. okt. 2025 06:15 |
| Referanse | Eline Høyte Tofte |
Annonsene kan være mangelfulle i forhold til lovpålagt opplysningsplikt. Før bindende avtale inngås oppfordres interessenter til å innhente komplett informasjon fra meglerforetaket, selger eller utleier.














