Bildegalleri

Kontorlokaler med god parkeringsdekning sentralt på Furuset
Nøkkelinfo
- Areal
- 349 m²
Type lokale
Fasiliteter
Om eiendommen
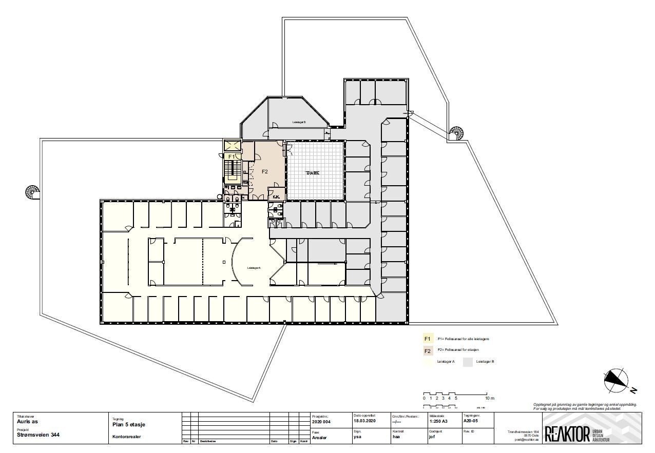
Lyse kontorlokaler i 5. etasje. Det er god parkeringsdekning på eiendommen. Lokalene egner seg godt til lavtlager,showroom og kontor med god standard, fin utsikt over Furuset og nedover mot byen. Arealene disponerer cellekontorer, møterom sosiale rom med åpne løsninger, tekjøkken og WC. Det er også kantine tilgjengelig for byggets leietakere. Arealene kan tilpasses leietakers ønsker og behov.
I bygget finner du MC Oslo, Lilleborg og Norrøna Fly. N ærmeste nabo er IKEA Furuset. Plantasjen skal bebygges på naboeiendommen.
Arealene
Arealene består av følgende:
5.etasje:
349 kvm lyse kontorer
Møterom
Kjøkken
Sosiale soner
Takterrasse
Heisadkomst
Beliggenhet
Eiendommen ligget sentralt plassert på Furuset, Groruddalen. Groruddalen er å betrakte som det mest sentrale lager- og kombinasjonsområdet i Osloregionen. Fra eiendommen er det umiddelbar nærhet til Alnabruterminalen. Området er særdeles etablert som industri og butikkområde. Eiendommen er synlig fra E6.
Dette er et område med mange besøkende og mye aktivitiet. Eiendommen har god eksponering.
Adkomst
Det er adkomst til lagerlokalene for semi-trailer til sakseplattform og port. Det er også adkomst fra bakkeplan for gående.
Eiendommen ligger tre minutters kjøring fra E6 . Det tar cirka 25 minutter til Gardemoen og 20 minutter til Oslo S. Eiendommen har bussholdeplass 3 minutters gange unna med Bussrute 100 som går hvert tiende minutt, som tar deg til Oslo S på 30 minutter.
Det er internheis mellom 1.etasje og 5.etasje dersom man har behov for både lager og kontor-lokaler.
Standard
Innhold
- LED-Belysning
- Laminat og teppegulv
- Ventilajson
- Gipsvegger
- Tilgang til kantine med varmmat, salater, wraps etc.
- Cellekontorer med glassvegger
- Møterom
Visning
Ta kontakt for å avtale visning.PROPCAP MANAGEMENT AS
Nærområdet
Annonsene kan være mangelfulle i forhold til lovpålagt opplysningsplikt. Før bindende avtale inngås oppfordres interessenter til å innhente komplett informasjon fra meglerforetaket, selger eller utleier.









