Bildegalleri

3.etg
Sentrum - Lyse kontorlokaler klart til innflytting. 3 minutter fra Nationaltheatret
Nøkkelinfo
- Areal
- 354 - 713 m²
- Etasje
- 4.
- Overtakelse
- Etter avtale
Type lokale
Fasiliteter
Om eiendommen
Eiendommen ligger svært sentralt til i Oslo sentrum vis a vis Hotel Bristol. Rosenkrantz gate er en av sidegatene til Karl Johans gate med kun noen få minutters gange til Nationaltheatret stasjon med alt av kollektivtilbud.
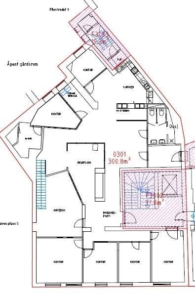
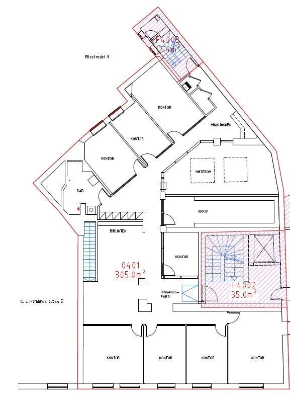
Kontorlokalene er lyse og presentable som er klare til å flytte rett inn i. Kontorene har godt med vinduer som gir lyse, fine lokaler til å trives i. Dagens planløsningen består i hovedsak av enkeltkontorer, to store møterom, kjøkken og sosiale soner.
Lokalene går over to etasjer med interntrapp, de kan leies samlet eller hver for seg.
- 3.etg arealnr 0301 er på 300,8 kvm netto / 353,7 kvm brutto.
- 4.etg arealnr 0401 er på 305 kvm netto / 358,7 kvm brutto.
Eiendommen har butikker og servering i 1.etasje og kontorer i de øvrige etasjene.
Innhold
Visning
Ta kontakt for å avtale visning.
Thon Eiendom
Stig Christiansen
Nærområdet
Annonseinformasjon
| FINN-kode | 420049231 |
|---|---|
| Sist endret | 11. aug. 2025 07:26 |
| Referanse | Eline Høyte Tofte |
Annonsene kan være mangelfulle i forhold til lovpålagt opplysningsplikt. Før bindende avtale inngås oppfordres interessenter til å innhente komplett informasjon fra meglerforetaket, selger eller utleier.
















