Bildegalleri

Flotte kontorlokaler med attraktiv beliggenhet ved Stortinget
Nøkkelinfo
- Areal
- 324 m²
- Energimerking
- G - Mørkegrønn
Type lokale
Beskrivelse
Flotte kontorlokaler med sentral beliggenhet rett ved stortinget.
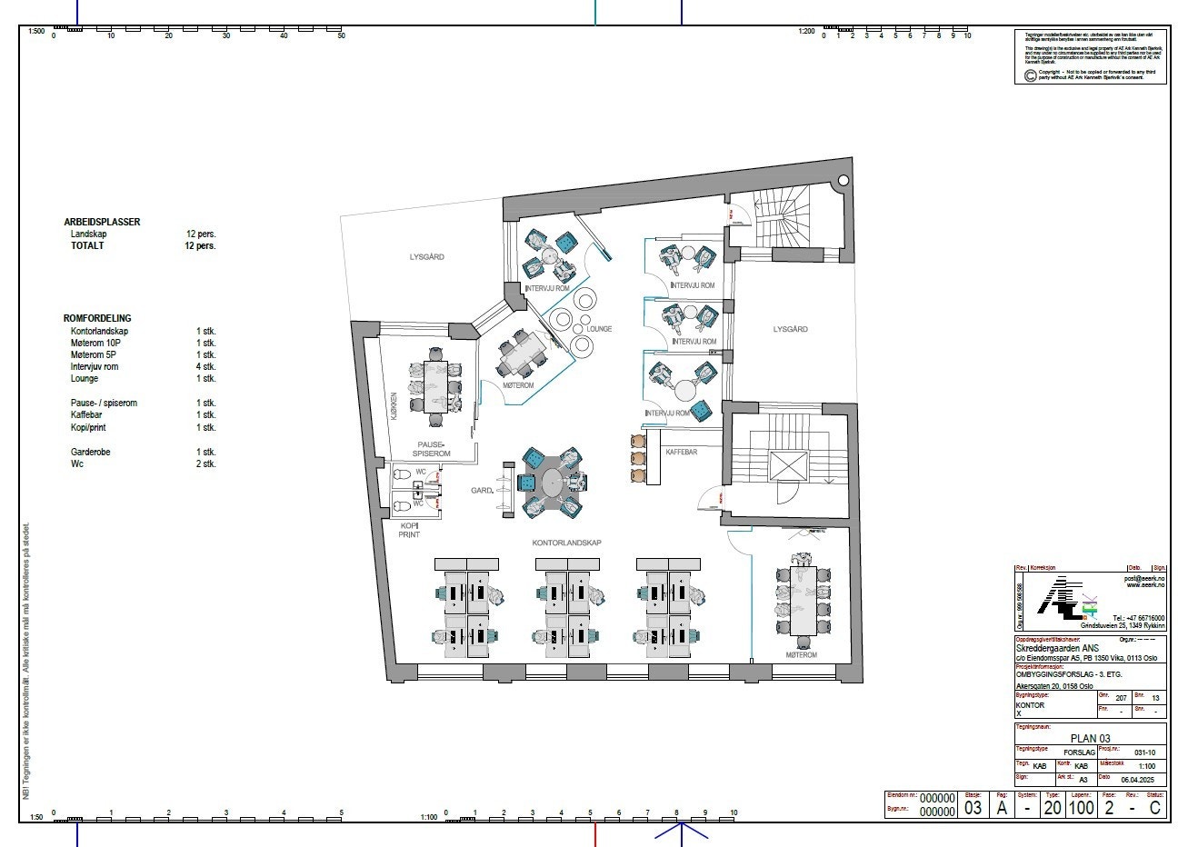
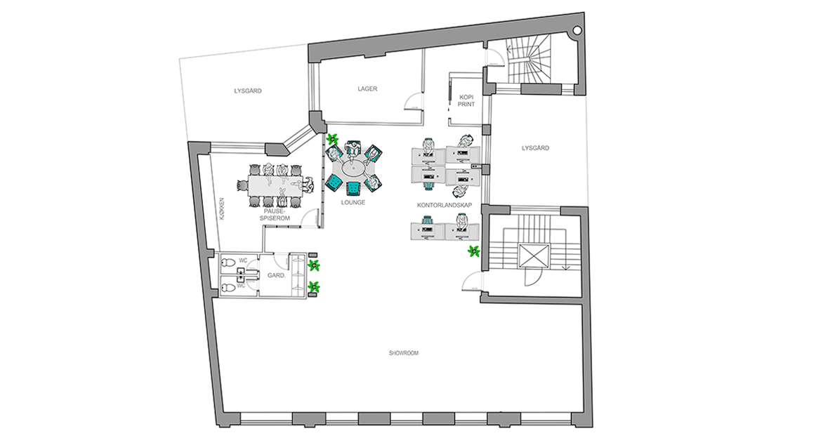
Etasje 3. LEDIG
Lokalet i 3. etasje har vært benyttet som showrom og har et stort åpent areal i tillegg til spiserom, lager og to toaletter. Etasjen kan enkelt tilpasses til rene kontorlokaler og kan lages identisk med lokalene i 2. etasje.
Fordelingen åpen løsning til delvis eller utelukkende cellekontorstruktur, kan justeres i begge etasjer etter leietakers ønsker og behov.
Mulighet for lagerleie i kjelleren.
- Type Kontor
- Antall arbeidsplasser 15 — 18
- Leieareal 324 kvm
- Ledig fra Etter avtale
- Egnet til Kontorlandskap og Cellekontor
Bygget
Akersgata 20 er en av byens første moderne forretningsgårder, tegnet av arkitekt Christian Reuter og oppført i 1894 for skreddermester Carl Hansen. Eiendommen er derav også kjent som ”Skræddergaarden”. Fasaden er en av Oslo sentrums flotteste dekorerte med vakre forgylte freskomalerier fra 1895 og er i dag fredet.
Bygningen er en moderne og representativ kontor- og butikkeiendom med et samlet areal på rundt 2 200 kvm. Bygget har seks etasjer samt kjeller. I 1. etasje er forretningen Vincci etablert, mens de øvrige etasjene er kontorlokaler. Leietakerne har tilgang til sykkelparkering i bakgården.
Område
Akersgata 20 ligger svært sentralt til i et av Oslos mest ettertraktede forretnings- og kontorområde, bare et steinkast fra Stortinget og Oslos hovedgate Karl Johans gate.
Med et yrende utvalg av tjenester rett utenfor døren, inkludert et bredt spekter av butikker, kaffebarer, spisesteder, samt bank- og posttjenester, tilbyr denne eiendommen en praktisk tilgang til alt du trenger.
Stortinget T-banestasjon ligger rett ved eiendommen og det 2 minutters gange til Nationaltheatret stasjon. Flere parkeringshus er tilgjengelige i nærområdet.
Offentlig transport
Buss
Ca. 2 minutter gange til busstoppet på Wessels plass
Linje: 30, 31, 37, 70, 70E, 81Trikk
Ca. 2 minutter gange til trikke holde plassen Øvre Slottsgate
Linje: 12, 13, 15T-bane
Ca. 4 minutter gange til t-bane stasjonen på Stortinget
Linje: 1, 2, 3, 4, 5Tog
Ca. 7 minutter gange til Nationaltheatret stasjon
Visning
Ta kontakt for å avtale visning.Nyttige lenker
Akershus Eiendom AS
Nærområdet
Annonsene kan være mangelfulle i forhold til lovpålagt opplysningsplikt. Før bindende avtale inngås oppfordres interessenter til å innhente komplett informasjon fra meglerforetaket, selger eller utleier.
















