Bildegalleri

Illustrasjonsbilder
Inaktiv
Moss sentrum - Lyse og fleksible kontorlokaler til leie på Amfi Moss
Nøkkelinfo
- Areal
- 360 - 1 227 m²
- Etasje
- 3.
- Byggeår
- 2006
- Energimerking
- D
- Overtakelse
- Omgående
Type lokale
Kontor
Kjøpesenter
Fasiliteter
Bredbåndstilknytning
Garasje/P-plass
Heis
Om eiendommen
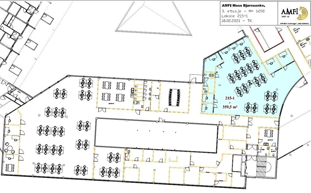
Vi har lyse og pene kontorlokaler ledig i 3. etasje. Arealet er totalt 1.227 kvm som kan deles opp i to enheter på 360 kvm og 852 kvm. Se plantegning for forslag til møblering av hele eller delte arealer. Det er også muligheter for å dele lokalet opp i flere mindre lokaler.
Dagens planløsning består i hovedsak av kontorlandskap, møterom og sosial sone. Lokalet har et stort kjøkken med hvitevarer og plass til flere spisebord. Det er flere toaletter i etasjen.
Det er adkomst med heis og trapp til etasjen, samt enkel adkomst fra p-hus. Det er mulighet å leie p-plasser i parkeringshuset. Kundeparkering med inntil 2 timers gratis parkering. Det er også treningssenter på sentret
Dagens planløsning består i hovedsak av kontorlandskap, møterom og sosial sone. Lokalet har et stort kjøkken med hvitevarer og plass til flere spisebord. Det er flere toaletter i etasjen.
Det er adkomst med heis og trapp til etasjen, samt enkel adkomst fra p-hus. Det er mulighet å leie p-plasser i parkeringshuset. Kundeparkering med inntil 2 timers gratis parkering. Det er også treningssenter på sentret
Beliggenhet
Kontorlokalene ligger i egen kontordel i kjøpesenteret AMFI Moss som har beliggenhet midt i Moss sentrum med kort avstand til offentlig transport. Hovedbussholdeplassen i sentrum ligger i tilknytning til kjøpesenteret, og stasjonen ligger ca. 10 minutters gange unna.
NB: Knappen for å vise hele beskrivelsen har kun en visuell effekt.
NB: Knappen for å vise hele beskrivelsen har kun en visuell effekt.
Visning
Ta kontakt for å avtale visning.
Thon Eiendom
Vi hjelper deg å lykkes
Vilde Nordby Larsen
Nærområdet
Annonseinformasjon
| FINN-kode | 418726129 |
|---|---|
| Sist endret | 29. juli 2025 07:54 |
| Referanse | Eleni Papadopoulou |
Annonsene kan være mangelfulle i forhold til lovpålagt opplysningsplikt. Før bindende avtale inngås oppfordres interessenter til å innhente komplett informasjon fra meglerforetaket, selger eller utleier.

















