Bildegalleri

Velkommen til Nye Vakås vei 28, et unikt kombinasjonsbygg
Asker- Hvalstad. Unik mulighet for leie av helt kombinasjonsbygg med strategisk beliggenhet og profilering mot E-18
Nøkkelinfo
- Areal
- 3 126 m²
- Bruttoareal
- 3 126 m²
- Tomteareal
- 1 882 m² (eiet)
- Byggeår
- 1989
Type lokale
Fasiliteter
Kort om eiendommen
Det er sjeldent at slike muligheter kommer ut i markedet i vårt distrikt. Eiendommen er bygget som et kombinasjonsbygg, oppført i 1989 og nylig oppgradert og modernisert for å tilpasse leietakers bruksbehov. Bygget består av lager/verkstedsarealer på bakkeplan og med tilhørende lyse og åpne kontor områder i 2 og 3 etasje. Parkeringsgarasje i kjeller.
Eiendommen ligger ved E18 med unik eksponering og med kort avstand til offentlig transport og Holmensenteret, et nabolagssenter med ulike handels- og servicetjenester.
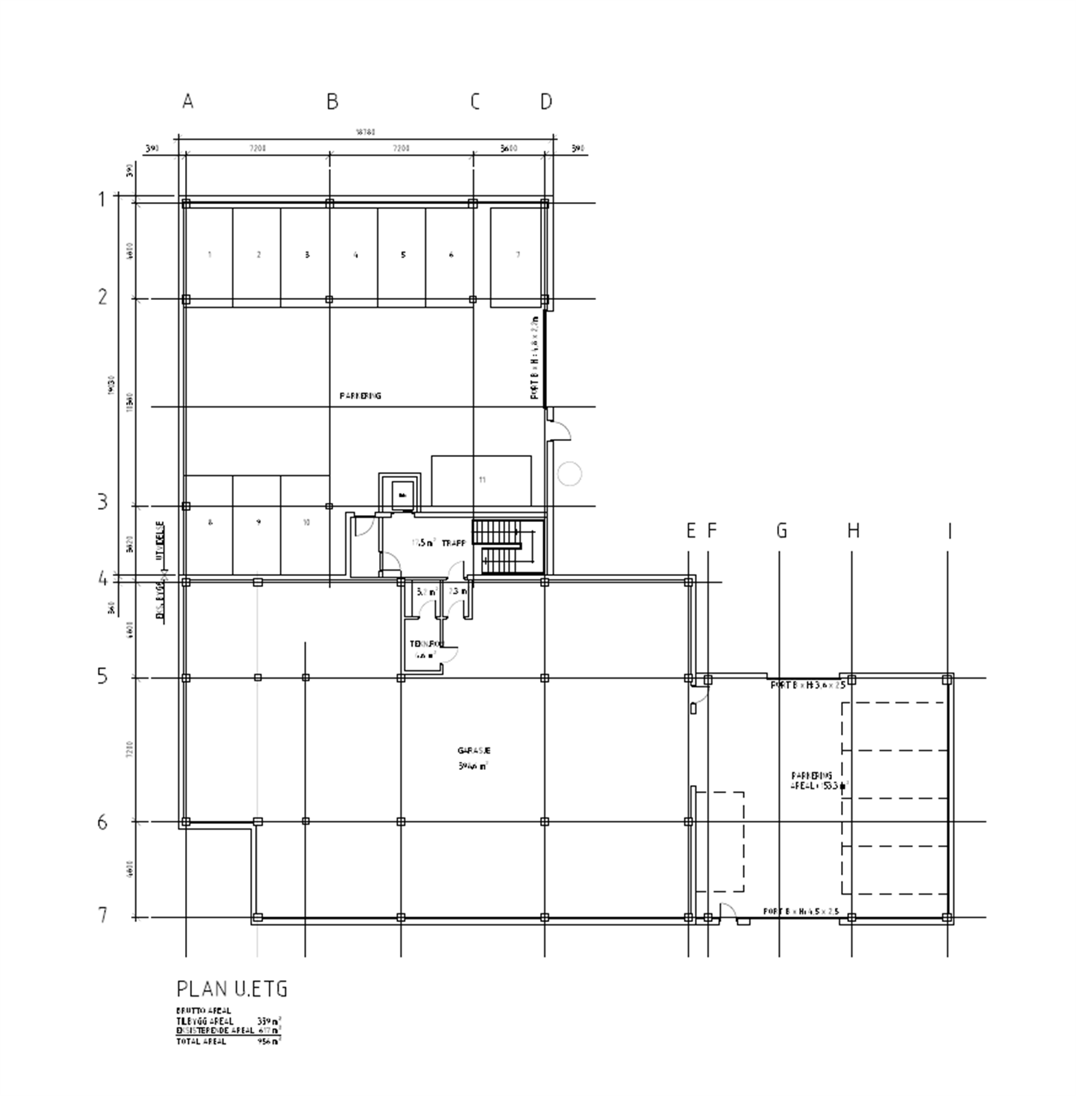
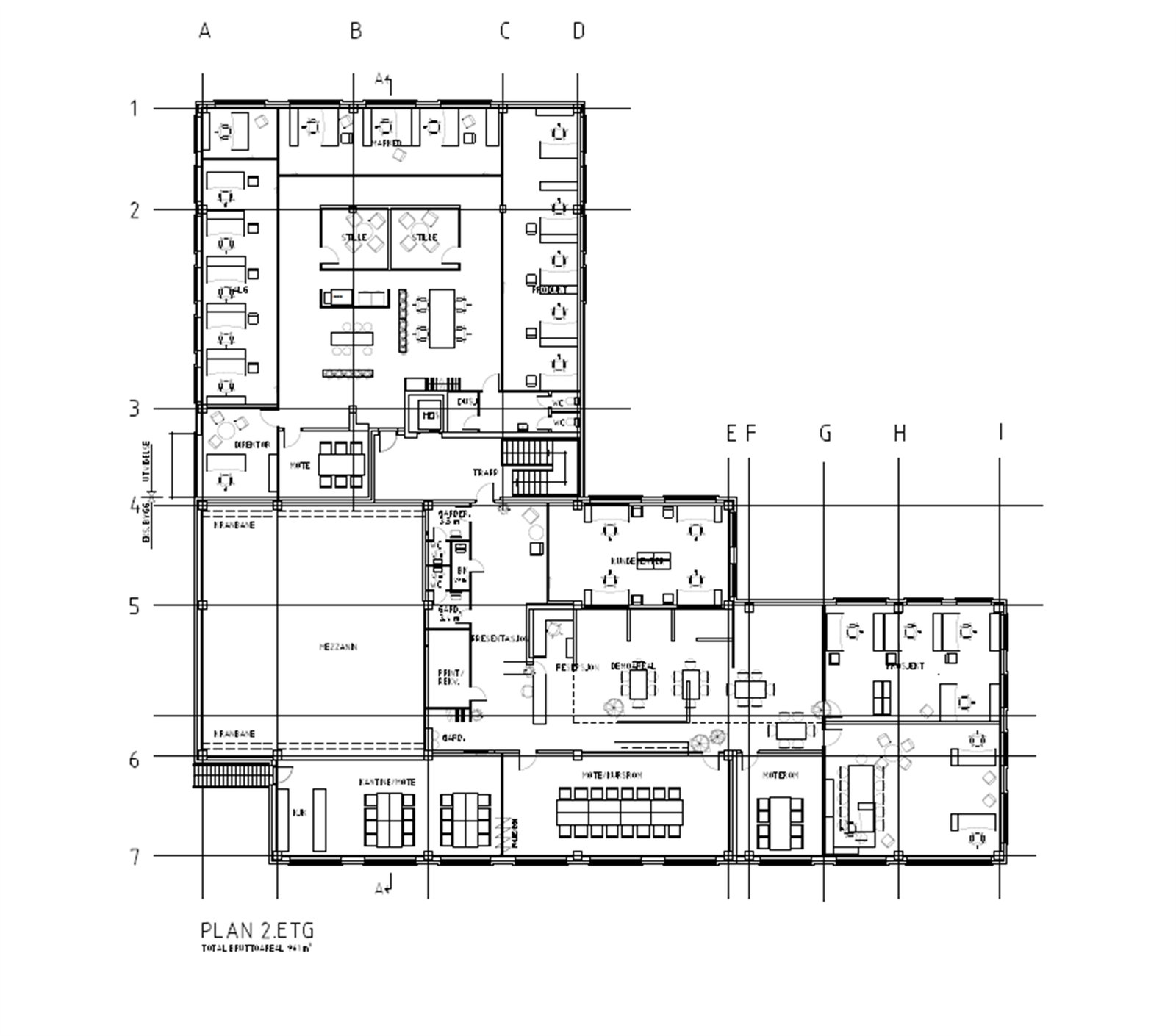
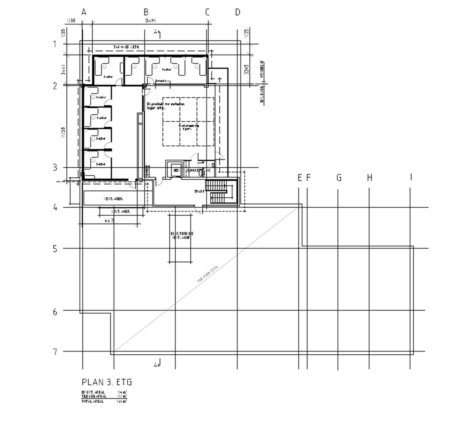
Arealer og innholdsbeskrivelse
Bygget har fire etasjer der hver etasje (bortsett fra 3 etasje) er delt i to fløyer adskilt med trappeløp og heis.
Underetasje har to garasjekjellere på total 956 m2 med plass til ca. 35 biler.
1 etasje inneholder 961 m2 lager inkl. et høytlager på 130m2.Høytlageret har egen kranbane og 7 meters takhøyde. Mål på port: 3,60 x 4,20 meter.
Lager 1 har en takhøyde på 3,5 meter. Mål på port: 3 x 3 meter.
Lager 2 har en takhøyde på 3,5 meter. Mål på port: 3 x 6 meter.
Denne etasjen har tidligere vært kombinasjon av kontorer og lager, og kan eventuelt tilpasses ny leietaker etter nærmere avtale.
2 etasje inneholder 961 m2 kontorer inklusiv spiserom.
Den ene fløyen består av 3 separate soner med kontorlandskap med ca. 7 arbeidsplasser i hver sone, samt 2 kontorceller og 2 møterom i midtpartiet.
Luftig område ved inngangspartiet med hyggelig plass for mottakelser.
Den andre fløyen har et stort spiserom/kjøkken og tilhørende møterom, to andre områder med kontorlandskap og i tillegg to mindre møterom/teamrom.
Området i midten kan tilpasses ny leietakers behov for showroom eller annet.
3 etasje inneholder 248 m2 med- kontorer og landskap i fin miks. Det er også en utgang til hyggelig takveranda.
Totalt 3126 m2
Forøvrig er det god ventilasjon med kjøling tilstrekkelig til hele bygget.
God tilkomst for vareleveranser med kort vei fra E18.
Utendørs parkering rundt deler av bygget.
Bygget i sin helhet er ledig fra årsskiftet 2025/26
Matrikkelinformasjon
Nyttige lenker
Krogsveen avd. Næring/ Link Næringsmegling AS
Nærområdet
Annonseinformasjon
| FINN-kode | 415310529 |
|---|---|
| Sist endret | 03. juli 2025 07:49 |
| Referanse | KR25.2424 |
Annonsene kan være mangelfulle i forhold til lovpålagt opplysningsplikt. Før bindende avtale inngås oppfordres interessenter til å innhente komplett informasjon fra meglerforetaket, selger eller utleier.




































