Bildegalleri

Grorud: Kombinasjonslokale med mye uteareal i ettertraktet område
Nøkkelinfo
- Areal
- 3 000 - 4 000 m²
Type lokale
Om eiendommen
I Haavard Martinsens Vei 26 er en av Groruds mest attraktive eiendommer, med lagerareal med god adkomst og på Ca 6 meters takhøyde. Det er god adkomst for lastebiler med to innkjøringer til eiendommen, og mye uteareal for utelagring eller parkeringsplasser. Eiendommen helt ledigstilt fra Q1 2026. Eiendommen passer bra for aktører som trenger lokaler for lager, produksjon, verksted og industriell virksomhet, og som ikke trenger å ha alt av materiell lagret inne. Det er også en perfekt beliggenhet for utlevering til proffkunder, og også tilgang for privatkunder til service eller lignende
Lokalet har porter med direkte innkjøring på begge sider av bygget. Bygget har 3 etasjer, hvor Plan U og 1 passer bra for lager/verksted/produksjon. Plan 2 har ca 600 kvm kontor, men det kan også ses på alternativ bruk for kontorlokalene. Utleier er åpen for å diskutere tilpasninger etter behov. Det kan også være mulig å diskutere oppdelinger av arealene.
Kort oppsummert:
- Attraktivt kombinasjonsbygg ledig fra Q1 2026.
- Godt med uteareal for parkering eller utelagring
- God takhøyde og flere porter med direkte innkjøring
U etasje:
- Ca 1057 kvm lager
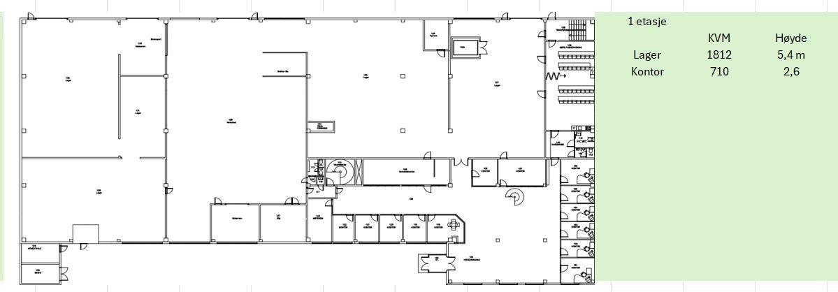
1 etg:
- Ca 1800 kvm høytlager og 700 kvm kontor/lager
2 etasje:
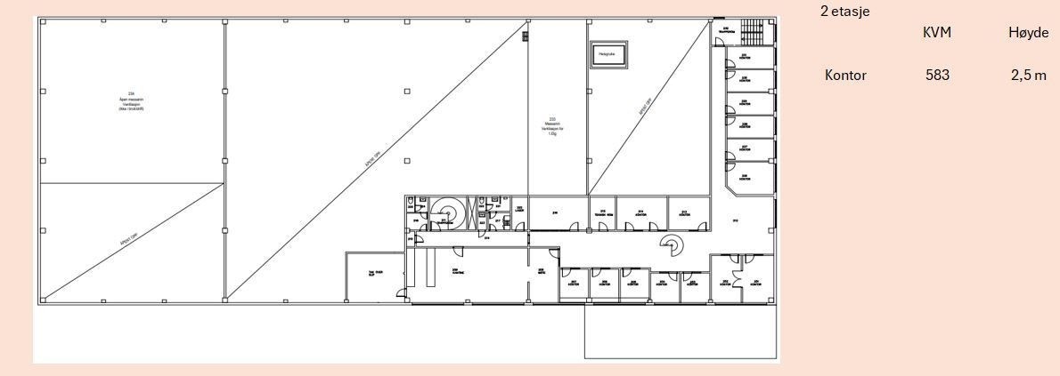
- Ca 600 kvm kontor.
Beliggenhet
Grorud/Alna er en av Oslos mest sentrumsnære industriområder, med enkel adkomst til E6, Østre Aker vei og Riksvei 4. Med en liten gangavstand, så finner man også både tog- og t-bane muligheter for kollektivt. Områdets attraktivitet har gjort at mange store, veletablerte virksomheter som bl.a. Norges Gruppen, Tine og Asko har etablert seg i nærheten.
- Beliggenhet: Oslo
Visning
Ta kontakt for å avtale visning.Malling & Co Næringsmegling AS
Nærområdet
Annonseinformasjon
| FINN-kode | 413336260 |
|---|---|
| Sist endret | 16. des. 2025 02:50 |
| Referanse | 6852a8a32f88714f68af2da8 |
Annonsene kan være mangelfulle i forhold til lovpålagt opplysningsplikt. Før bindende avtale inngås oppfordres interessenter til å innhente komplett informasjon fra meglerforetaket, selger eller utleier.













