Bildegalleri

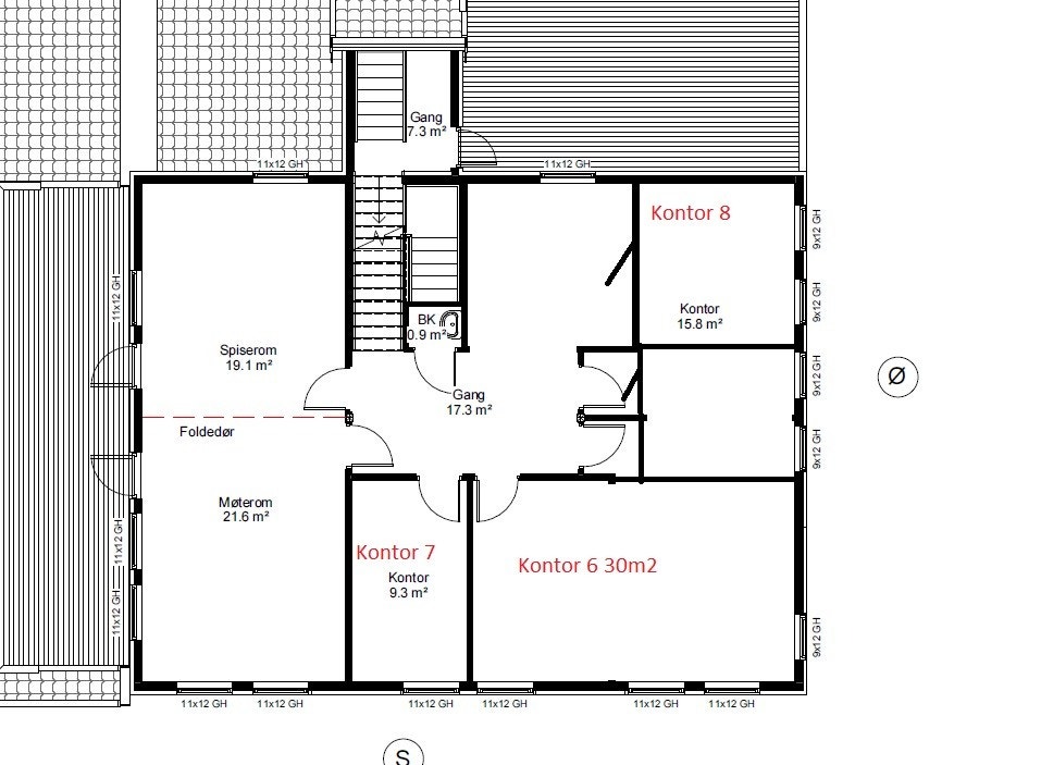
Bodø: 3 flotte kontorer til leie på Bertnes, rett ved RV80. Leies ut enkeltvis eller samlet
Nøkkelinfo
- Areal
- 6 - 15 m²
- Balkong/Terrasse
- 20 m² (TBA)
- Etasje
- 12.
- Kontorplasser
- 4
- P-plasser
- 10
- Byggeår
- 1950
- Renovert år
- 2016
- Overtakelse
- Nå
Type lokale
Fasiliteter
Om eiendommen
Eiendommen (renovert 2016) har enkel adkomst fra RV80. Ledige kontorplasser fordelt over to etasjer. Uteområdet er nyasfaltert, og det er satt opp ladere for el-bil utendørs. Kjøkken, oppholdsrom og møterom deles med de andre leietakerne (Bygg og anlegg). Det er romslig parkering, og gode bussforbindelser. Mulighet for lagring i lagerbåser, men også andre lagrinsgmuligheter. God beliggenhet med hensyn på profilering, adkomst og nærhet til butikk.
Om lag 10 km øst for Bodø sentrum og i umiddelbar nærhet finner du dagligvarebutikk, Salten Dekksenter og Nordic Last og Buss.
Ring for å avtale visning: 41 65 95 49
Beliggenhet
Adkomst
Standard
Innervegger:
Plassbygde innervegger og systemvegger. Bygningen ble strippet ned og reetablert i 2016 med nye konstruksjoner tilpasset dagens standard.
Ventilasjon:
Tilpasset dagens bruk. Det er et eget ventilasjonsrom med anlegg med kapasitet 2500 m3/h. VGJ og forvarming av luft.
Tekniske installasjoner:
El.anlegg med automatsikringer, spredernett for data og tilpasset dagens bruk.
200 liter VVB og brannmeldere.
Matrikkelinformasjon
Visning
Nyttige lenker
Linka As
Nærområdet
Annonseinformasjon
| FINN-kode | 412314638 |
|---|---|
| Sist endret | 19. jan. 2026 07:55 |
| Referanse | Linka Eiendom |
Annonsene kan være mangelfulle i forhold til lovpålagt opplysningsplikt. Før bindende avtale inngås oppfordres interessenter til å innhente komplett informasjon fra meglerforetaket, selger eller utleier.






















