Bildegalleri

Velkommen til Leirvikåsen 43b presentert av Stephane B. Trotta og EiendomsMegler1 Næringseiendom
Sentralt beliggende kombinasjonsbygg i Leirvikåsen. Muligheter for tilpassing av areal til leietaker.
Nøkkelinfo
- Areal
- 95 - 1 559 m²
- Tomteareal
- 2 235 m² (eiet)
- Byggeår
- 1989
Type lokale
Fasiliteter
Arealspesifikasjon
1. etg: 95 kvm Lager
1. etg: 104 kvm Lager
2. etg: 174 kvm Kontor
2. etg: 206 kvm Kontor
2. etg: 300 kvm Kontor
3. etg: 680 kvm Kontor
Kort om eiendommen
Kombinasjons eiendom hvor det er lagermuligheter på grunnplan samt kontorareal i byggets andre etasje.
Kontorene vil bli modernisert og tilpasset leietakers behov.
Beliggenhet
Fin kombinasjonseiendommen med sentral beliggenhet i Leirvikåsen, et populært næringsområde i Bergen Vest. Område er spesielt attraktivt for industri- og håndverksbedrifter med behov for lager og produksjonslager. Enkelt adkomst til veisystem for alle deler av regionen. Ca 10-15 minutters kjøring til Bergen Sentrum og Kokstadområdet. Kort avstand til næringsområde på Straume, Askøy og godt veinett utover til Åsane og Bergen Nord.
Innhold
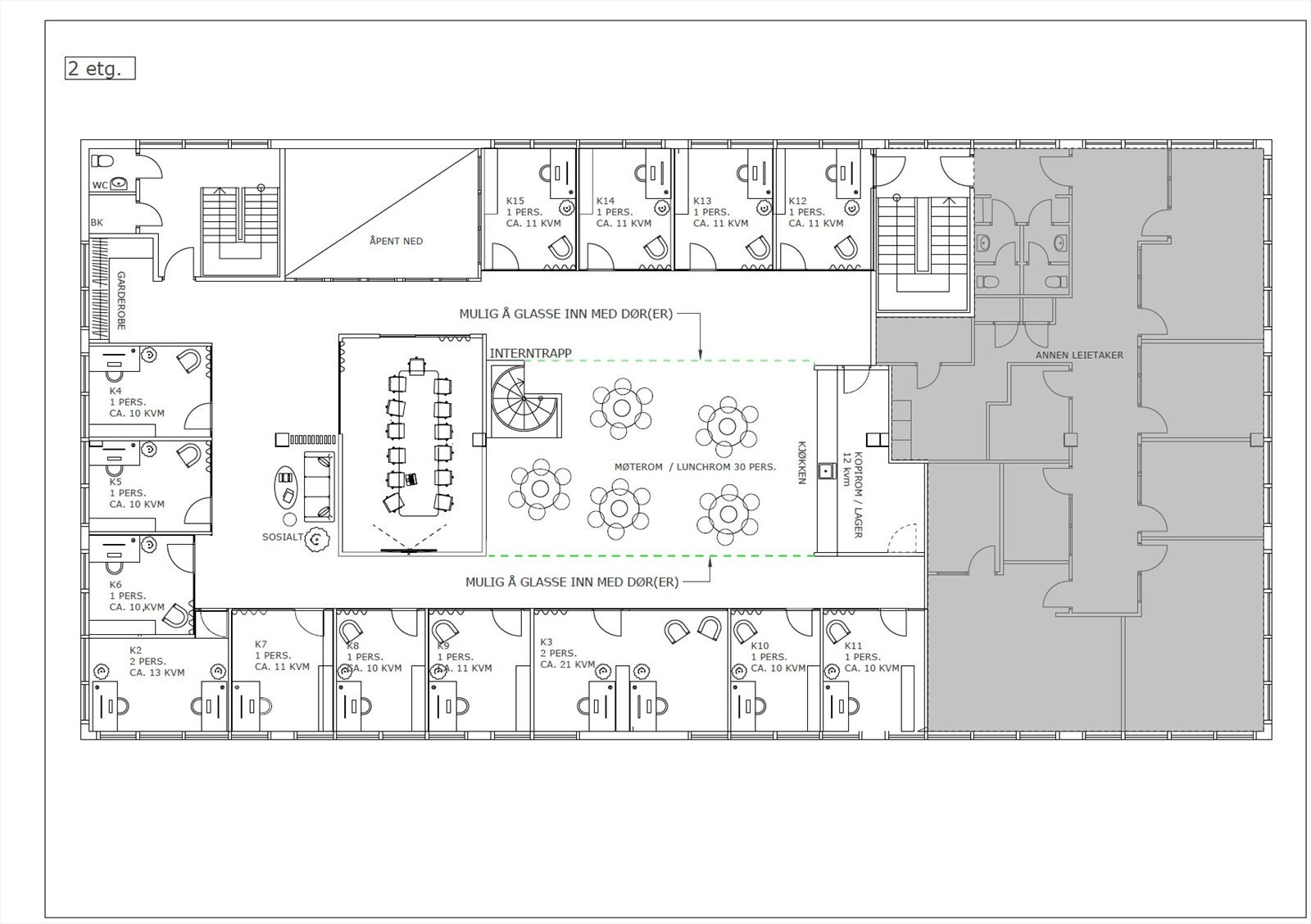
De ledige lokalene ligger i byggets 1. og 2. etasje.
1. etg. Lager. Her er det tilrettelagt 4 lagerboder, hver på ca. 26 m². Bodene kan leies samlet eller hvor for seg.
2. etg. Kontor. BTA ca. 474 m². Dette kontorarealet kan deles mellom to leietakere, eller leies i sin helhet. Arealet vil bli innredet i samarbeid med ny leietaker.
I tillegg blir det ledige lokaler fra 1.1.2027.
1. etg. Lager. BTA 90 m² tilgjengelig via rulleport. Ca. 3 meter takhøyde.
2. etg. Kontor. BTA 206 m² kontor innredet med kombinasjon mellom celle- og teamkontor, møterom og lite kjøkken.
3. etg. Kontor. BTA 680 m² kontor innredet med kombinasjon mellom celle- og teamkontor, møterom og lite kjøkken.
Samtlige lokaler kan tilpasses etter ønske fra ny leietaker.
Tomt
Flat, opparbeidet og asfaltert tomt.
Bebyggelse
Arealene som kan leies ut er 578kvm, hvorav ca. 104 m² er lager på grunnplan og ca. 474 m² er kontorer i byggets andre etasje. I byggets andre etasje vil det bli bygget nye kontorer etter leietakers ønsker og behov. Det er vindusflater på både kortside og langside, og her vil leietaker få attraktive og lyse kontorer.
Bygget har en sentral plassering i Fagerdalen, som er attraktiv for virksomheter i Bergen Vest. God kommunikasjon og ca. 10 minutter fra bygget til Bergen sentrum. Det er også god kommunikasjon til Askøy og Sotra.
Parkering på eiendommen
Standard
I dag er det åpne arealer slik at man står fritt til å inndele kontorene i soner som er ønskelig for leietaker. Her får en muligheten for å tilpasse arealene med cellekontorer, åpne landskap, møterom, sosiale soner med mer. Samtidig vil standard kunne tilpasses leietakers ønsker.
Oppvarming
Elektrisk oppvarming.
Adkomst
Innkjøring fra Rv. 555. Følg Godviksvingene inn til Fagerdalen og ta inn i Leirvikåsen. Følg veien frem til bygget som ligger godt eksponert mot veien.
Parkering
Parkering like ved bygget. Muligheter for ladestasjoner.
Offentlig kommunikasjon
God offentlig kommunikasjon like ved eiendommen.
Overtakelse
Etter nærmere avtale.
Sentrale lover
Oppdraget reguleres i henhold til Lov om eiendomsmegling av 29.06.2007 nr. 73. Fravikeligheten som framgår av lovens § 1-3 og forskriftens § 1-2 er anvendt for dette oppdraget.
Dersom det avtales påkostninger/vedlikehold av leieobjektet som dekkes av utleier eller leietaker må partene selv avklare skattemessige konsekvenser, herunder avskrivningsregler og eventuelle justeringsregler for merverdiavgift med sine respektive revisorer eller advokater. Megler er uten ansvar for konsekvenser reglene påfører partene.
Leietaker er ansvarlig overfor alle offentlige myndigheter for at hans benyttelse av leieobjektet tilfredsstiller de til enhver tid gjeldende offentligrettslige krav i leieperioden.
Offentligrettslige krav knyttet til universell utforming skal besørges og bekostes av leietaker, når kravet i hovedsak kan tilbakeføres til leietakers særlige bruksformål eller den bransje leietaker driver i leieobjektet. Offentligrettslige krav knyttet til universell utforming, som ville blitt pålagt uavhengig av de alternative bruksformål som leieobjektet lovlig kan benyttes til, skal besørges og bekostes av utleier.
Utleie av eiendommen vil skje på alminnelige betingelser for leie av næringslokaler.
Ansvaret mellom partene foreslås regulert i tråd med etablert praksis i Meglerstandard utarbeidet av FFN.
Hvitvaskingsregelverk
I henhold til Lov av 6. mars 2009 nr. 11 om tiltak mot hvitvasking og terrorfinansiering (Hvitvaskingsloven) er megler pliktig å gjennomføre kundetiltak av både oppdragsgiver og leietaker.
Dette innebærer blant annet plikt for meglerforetaket til å bekrefte identiteten til leietaker på grunnlag av gyldig legitimasjon. Samt plikt til å foreta kontroll av eventuelle reelle rettighetshavere. Der leietaker opptrer i henhold til fullmakt må også fullmaktsgivers identitet bekreftes på grunnlag av gyldig legitimasjon. Kundetiltak av leietaker skal senest skje på kontraktsmøtet.
Dersom leietaker opptrer i henhold til fullmakt, må fullmakten fremlegges samtidig som kontrakt inngås. Dersom leietaker er en juridisk person (AS mv.) plikter leietaker å fylle ut og returnere egne kundekontrollskjemaer før kontraktsmøtet i tillegg til å fremlegge firmaattest.
Dersom kundetiltak ikke kan gjennomføres kan ikke meglerforetaket bistå med gjennomføring av oppdraget. Meglerforetaket er videre forpliktet til å rapportere mistenkelige avtaleinngåelser til Økokrim. Med mistenkelig avtaleinngåelse menes en avtale som mistenkes å involvere utbytte fra straffbar handling eller som skjer som ledd i terrorfinansiering. Manglende mulighet for kundetiltak kan også være et forhold som gjør oppdraget mistenkelig. Det kan ikke gjøres ansvar gjeldende mot meglerforetaket som følge av at meglerforetaket overholder sine plikter etter Hvitvaskingsloven.
Matrikkelinformasjon
Nyttige lenker
EiendomsMegler 1 Næring Bergen
Nærområdet
Annonseinformasjon
| FINN-kode | 408114734 |
|---|---|
| Sist endret | 09. apr. 2026 12:29 |
| Referanse | 2902250035 |
Annonsene kan være mangelfulle i forhold til lovpålagt opplysningsplikt. Før bindende avtale inngås oppfordres interessenter til å innhente komplett informasjon fra meglerforetaket, selger eller utleier.


























