Bildegalleri

Fleksibelt solid bygg i betong som tilpasses leietaker. Illustrasjon
Moderne næringslokaler for leie, Sandnesvegen 42A, Kontor, produksjon, lager og mer!
Nøkkelinfo
- Areal
- 72 - 1 800 m²
- Kontorplasser
- 100
Type lokale
Om eiendommen
NYTT MODERNE NÆRINGSBYGG – SKREDDERSYDD FOR DEG!
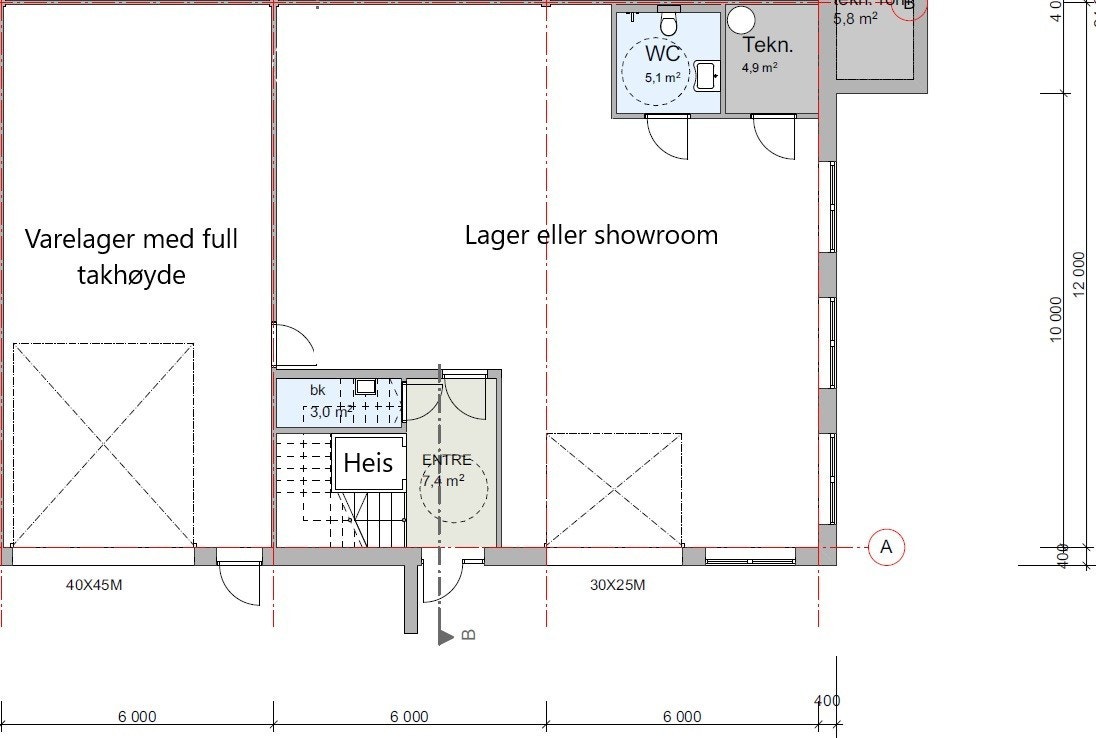
Vi bygger et nytt næringsbygg med fleksible lokaler for leie.
Areal fra 72 m² til 2 300 m² – tilpasset dine behov!
Kontorlokaler – Moderne og lyse, med mulighet for cellekontor eller åpent landskap.
Næringslokale / showroom – Perfekt for handel, lager eller kundemottak.
Produksjonslokaler – Tilrettelagt for både små og store produksjonsbedrifter.
Kantine – Mulighet for felles kantineløsning eller egen bedriftskantine.
Uteområde – God parkering og tilrettelagt for varelevering.
- Fleksible løsninger – vi tilpasser etter leietakers behov!
- Nytt og energieffektivt bygg med moderne fasiliteter.
- Gode transportforbindelser og lett tilgjengelighet.
- Mulighet for kjøp – Ønsker du å eie din egen del eller hele bygget? Vi finner gode løsninger tilpasset dine behov!
Grip muligheten til å sikre deg en plass i et moderne og tilpasset næringsbygg!
Interessert? Ta kontakt for mer informasjon eller en uforpliktende prat!
Beliggenhet
Sandnesvegen 42A
Adkomst
Eiendommen har en attraktiv plassering med enkel adkomst til E39,
Sola lufthavn ligger kun ca. 10 minutter unna med bil, mens Sandnes sentrum nås på ca. 7 minutters kjøring.
Dette gir en svært god tilgjengelighet for både ansatte, kunder og leverandører.
Standard
Matrikkelinformasjon
Visning
OVEA AS
Johannes Bøe
Magnus Skretting
Nærområdet
Annonseinformasjon
| FINN-kode | 405439393 |
|---|---|
| Sist endret | 13. mai 2025 13:46 |
| Referanse | X Lager og Kontor Vardheia X |
Annonsene kan være mangelfulle i forhold til lovpålagt opplysningsplikt. Før bindende avtale inngås oppfordres interessenter til å innhente komplett informasjon fra meglerforetaket, selger eller utleier.






