Bildegalleri

Oversiktsbildet
Effektiv lagerhall med god logistikk og bra beliggenhet - leies ut på gunstige vilkår!
Nøkkelinfo
- Areal
- 2 000 m²
- Bruksareal
- 2 000 m²
- Tomteareal
- 3 987 m² (eiet)
- Overtakelse
- Overtagelsesdato skal fastsettes før aksept av bud. Ved spesielle ønsker skal dette fremkomme som forbehold i evt. bud.
Type lokale
Fasiliteter
Beliggenhet
Sentral plassert i Barstølveien. Rask adkomst fra E18 (ca. 2 min) og transportknutepunkt
Tomt
Arealeffektivt uteområdet på ca. 2.000 kvm i front og på sørsiden av bygget.
Bebyggelse
Industri/lager-bygg
Standard
Eldre standard, men fremstår som godt vedlikehold og godt tilpasset de fleste lager/industriaktørers bruk
Oppvarming
Elektrisk oppvarming. Faktureres etter forbruk
Parkering
Godt med parkeringdekning rundt bygningsmassen
Offentlig kommunikasjon
Ca. 10 minutter gang til metrolinjen i Barstølveien
Overtakelse
Overtagelsesdato skal fastsettes før aksept av bud. Ved spesielle ønsker skal dette fremkomme som forbehold i evt. bud.
Hvitvaskingsregelverk
Eiendomsmeglere er underlagt lov om hvitvasking og er forpliktet til å rapportere til Økokrim om mistenkelige transaksjoner. Lov om hvitvasking innehar også strenge regler om gjennomføring av nødvendige kundetiltak fra alle parter i handelen, herunder, selger, kjøper og fullmektiger for disse. Dersom eiendomsmegler ikke får utført slik kontroll, plikter eiendomsmegler å avstå fra å gjennomføre oppdraget/handelen.
Om enheten
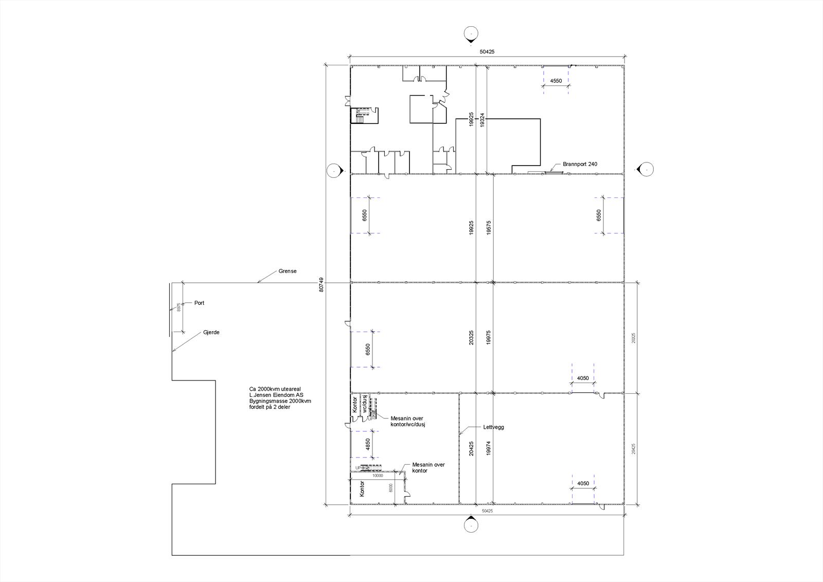
Eiendommen er på totalt på ca.2.000 kvm fordelt på 3 seksjoner. Her kan man enkelt gjøre tilpasninger så man har ca. 2 like store løp som er knyttet sammen med kjøreporter. Tomt på i underkant rundt 4.000 kvm. Noe som gir ca. 2.000 kvm med uteareal. Eiendommen ligger fint til og er noe tilbaketrukket i forhold til andre bygninger i området.
Innhold
Første seksjon er en ren lager/industrihall på ca. 1.000 kvm 6 meter til under drager. Med 4,8x6 meters elektrisk kjøreport i front og intern kjøreport inn til tredje seksjon (se vedlagt arealoversikt).
Andre seksjon er foreløpig satt opp som kombinert lager/kontor-seksjon på ca. 400 kvm. 6 meter til drager Med 4x4 meter elektrisk kjøreport i front. Skille mellom andre og tredje seksjon er kun en lettvegg, som etter behov kan fjernes.
Tredje seksjon er også ren ren lager/industrihall på ca. 600 kvm også her 6 meter til drager. Her det, som nevnt over, en intern kjøreport i tillegg til en elektrisk kjøreport i yttervegg på 4x4.
Ny LED-belysning i hele bygget. Montert 2025.
Det er vann og avløps muligheter flere plasser i bygget. Dette til muligheten for plass bygde kontorer og toalett\dusj.
Matrikkelinformasjon
Nyttige lenker
Eiendomsmegler Norge, avd. Næring
Nærområdet
Annonseinformasjon
| FINN-kode | 404450246 |
|---|---|
| Sist endret | 17. nov. 2025 13:14 |
| Referanse | 68250050 |
Annonsene kan være mangelfulle i forhold til lovpålagt opplysningsplikt. Før bindende avtale inngås oppfordres interessenter til å innhente komplett informasjon fra meglerforetaket, selger eller utleier.












